Ovako će izgledati novi muzej u Majdanpeku: Staklena kupola i 1.100 kvadrata izložbenog prostora
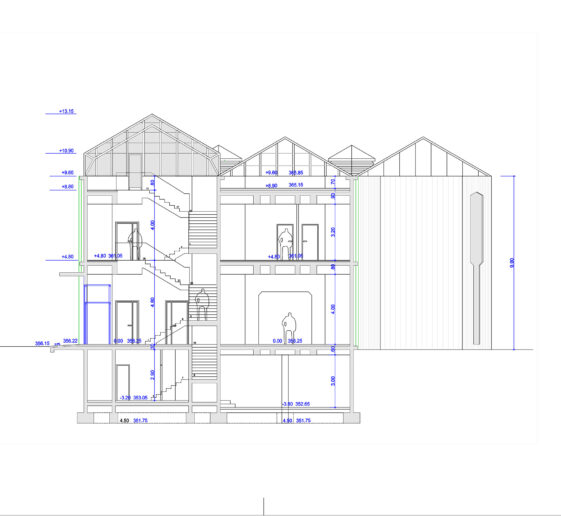
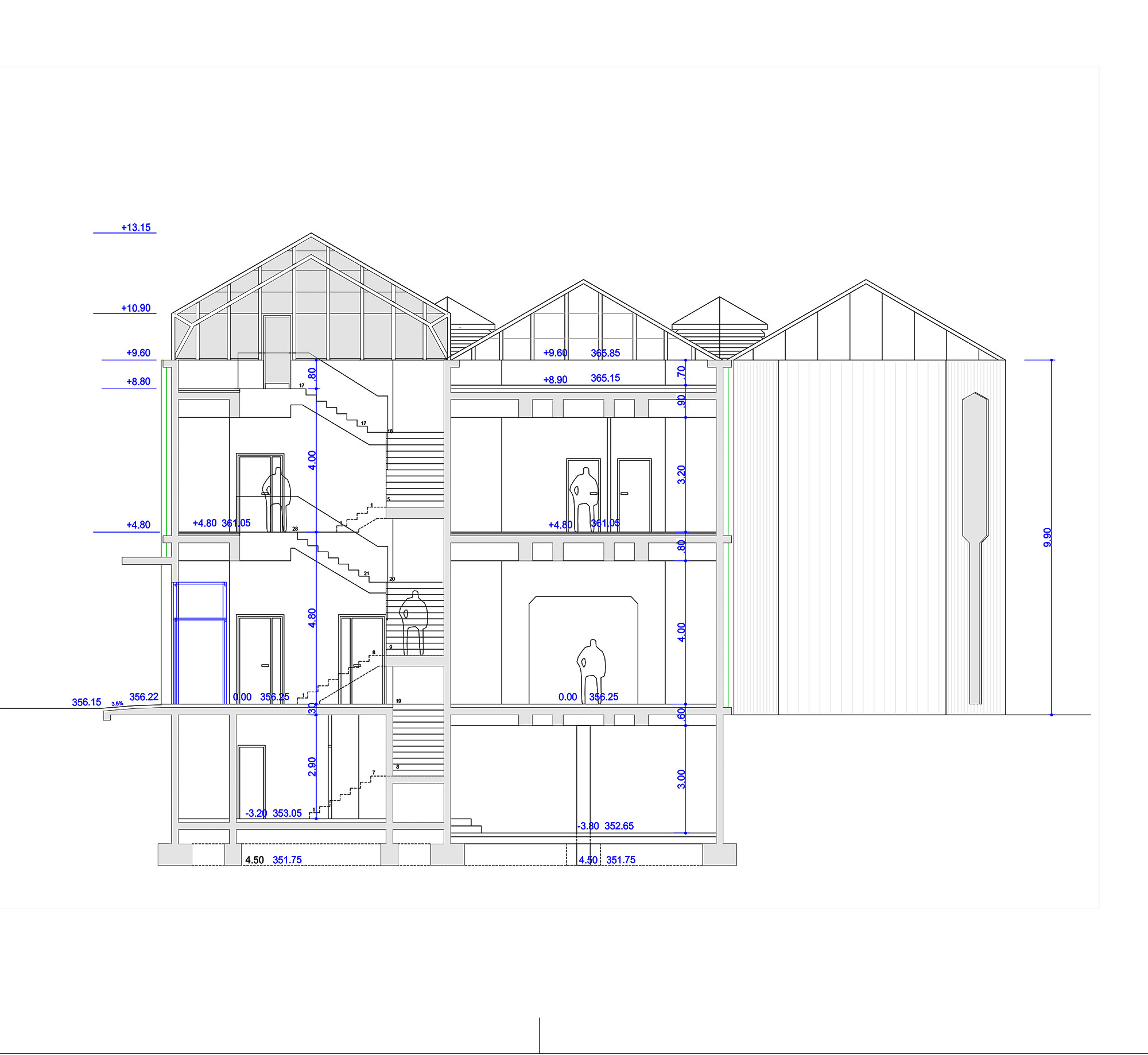
U centru Majdanpeka planirana je izgradnja muzeja sastavljenog od šest kubusa visine 13 metara, a autor rešenja je arhitekta Siniša Temerinski.
Opština Majdanpek je još u martu prošle godine oglasila javnu prezentaciju Urbanističkog projekta za izgradnju muzeja na Trgu oslobođenja, čime je načinjen prvi formalni korak ka realizaciji novog objekta kulture u centru grada. Tada smo saznali da je predviđena je izgradnja objekta spratnosti Po+P+1, visine 13 metara i površine od oko 1.100 kvadrata.
Urbanistički projekat izradio je projektantski atelje ARHIART na čelu sa arhitektom Sinišom Temerinski koji je bio angažovan kao stručni konsultant na obnovi Golubačke tvrđave zajedno sa arheologom dr Miomirom Koraćem.
Srodni članci na portalu Gradnja:

Objekat se sastoji od šest kubusa sa uskim i visokim fasadnim otvorima, dok se čeoni kubus završava staklenom kupolom.
Prema onome što se vidi iz rendera, objekat se sastoji od šest kubusa sa uskim i visokim fasadnim otvorima, dok se čeoni kubus završava staklenom kupolom koja osvetljava ulazni hol i dominira celim arhitektonskim rešenjem. Prema podacima iz javnog uvida, otvori su projektovani kao takvi zbog orijentacije, dok unutrašnji kapci omogućavaju potpunu kontrolu dnevnog svetla. Zidne površine predviđene su za vitrine i različite oblike prezentacije.
Na renderima budućeg objekta, iznad glavnog ulaza uočava se natpis MUMA ispisan ćirilicom. Iako za sada nema zvanične potvrde o punom nazivu muzeja, moguće je da natpis predstavlja akronim buduće ustanove (na primer Muzej Majdanpeka), ali i da je reč o radnom nazivu projekta – kratkom i lako pamtljivom, po uzoru na skraćenice poput MoMA.

Na renderima budućeg objekta, iznad glavnog ulaza uočava se natpis MUMA ispisan ćirilicom.
Što se tiče sadržaja objekta, u dokumentaciji se navodi da je podrum muzeja namenjen je tehničkim prostorijama i depoima za materijal koji nije deo postavke. Prizemlje je u potpunosti prilagođeno posetiocima, sa pristupom svim izložbenim prostorima na istom nivou. Kako se navodi, posebna pažnja posvećena je režimu osvetljenja: primarna rasveta biće usmerena na eksponate, dok će prirodno osvetljenje biti svedeno na minimum.
Ulazni hol kao centralna tačka
Prostor za privremene izložbe, predavanja i prezentacije projektovan je sa identičnim uslovima osvetljenja, prilagođenim i video-projekcijama.
Ulazni hol zamišljen je kao centralna tačka muzeja, sa prijemnim pultom, prodajom ulaznica i distribucijom ka izložbenim salama. Stepenište povezuje sve etaže, dok svetlost u hol dolazi kroz staklenu kupolu koja se prostire duž čitave njegove površine, navodi su u urbanističkom projektu.
Na spratu su planirane kancelarije zaposlenih, prostorije za proučavanje muzejske građe, radionica za konzervaciju, biblioteka i pomoćni sadržaji, koji zauzimaju celu spratnu površinu.

Tender najavljuje realizaciju
U međuvremenu je načinjen i naredni proceduralni korak: Opština Majdanpek raspisala je tender za izradu tehničke dokumentacije za izgradnju muzeja, čime se projekat pomera iz faze urbanističkog razmatranja ka konkretnoj pripremi za realizaciju. Procenjena vrednost tendera je 5.287.500 dinara, a rok za konkurisanje je 9. mart.
Tačan početak gradnje za sada nije poznat, ali raspisivanje tendera ukazuje da lokalna samouprava nastavlja sa planovima za izgradnju novog muzeja na Trgu oslobođenja.







Uzas…
Boze, kakav kiceraj. Ovo kao da je radjeno u Skecapu od strane nekog iz srednje skole. Ima taj 90e kic momenat
Neuspeli omaž Ivanu Antiću. Moglo se i očekivati, nakon katastrofe sa novim objektom u zidinama Golubačke tvrđave.