Širenje Sunnyvilla: Novi urbanistički plan predviđa 1.340 stanova u Višnjičkom polju
Na prostoru nekadašnjeg eksploatacionog polja planirano je gotovo 3.900 stanovnika i 21.400 m² komercijalnih sadržaja.
U avgustu 2025. godine, objavljen je rani javni uvid u Plan detaljne regulacije blokova u Višnjičkom polju. Sada, šest meseci kasnije, Grad Beograd objavio je javni uvid koji podiže kapacitete usvojenog plana.
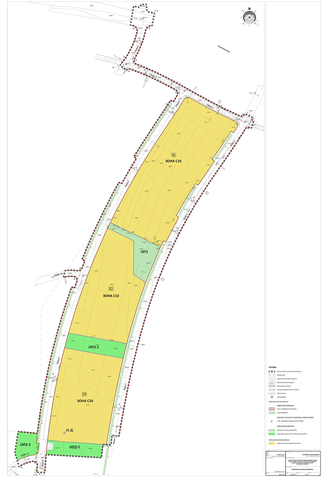
Na površini od 8,5 hektara planirano je 1.340 stanova (ranije 1.072 stana) u kojima bi moglo da živi oko 3.886 stanovnika (pre 2.895 stanovnika), dok je procenjeni broj zaposlenih i dalje 215. Za planirani broj stanovnika očekuje se oko 156 dece predškolskog uzrasta.
Plan predviđa ukupnu bruto razvijenu građevinsku površinu od 128.650 kvadrata – od čega je 107.250 m² namenjeno stanovanju, a 21.400 m² komercijalnim sadržajima.
Srodni članci na portalu Gradnja:

Plan predviđa ukupnu bruto razvijenu građevinsku površinu od 128.650 kvadrata – od čega je 107.250 m² namenjeno stanovanju, a 21.40 m² komercijalnim sadržajima.
U okviru dugoročnog plana razvoja kulturne infrastrukture planirana je izgradnja biblioteke površine 300 m². Objekat će imati višenamensku salu od 100 m² za sastanke stanara, radionice, izložbe i druge javne programe, dok je preostalih 200 kvadrata namenjeno centralnoj biblioteci.
Šta obuhvata Plan
Javni uvid u Plan detaljne regulacije blokova obuhvata područje između ulica Nova 1, Nova 2, Nova 4 i javne zelene površine naselja Višnjičko polje, opština Palilula.
Područje u okviru planske teritorije nekada je bilo deo eksploatacionog polja IGM Trudbenik sa kojih su uzimane sirovine za proizvodnju opečnih proizvoda. Denivelacija i degradacija područja posledica su iskopavanja i odlaganja materijala.
U kontaktnoj zoni predmetnog Plana, započeta je urbanizacija u vidu izgradnje stambenih naselja, navodi se u dokumentaciji.

Ko stoji iza plana
Investitor Plana je preduzeće Sunnyville d.o.o. Beograd, obrađivač plana je firma PC Art, dok je kao odgovorni urbanista potpisana Dušica Mihovski, dia.
Rokovi za primedbe
Javni uvid u plan biće organizovan do 3. aprila 2026. godine, do kada zainteresovana lica mogu podneti svoje primedbe. Javna sednica Komisije za planove Skupštine grada Beograda zakazana je za 21. april 2026. godine u 13 časova, u zgradi Gradske uprave grada Beograda.

Bice katastrofaaaa….
I još kad bi se zeznuli i angažovali stručne urbaniste i arhitekte, ili malo pogledali u komšiluku kako izgleda naselje koje poštuje prirodan oblik terena, pogled, ne daj bože udaljenost objekata…. pa da ne prave i dalje urbanistički zločin, sa nepromišljenim banalnim kubusima koje su samo natakli bez ikakvog smisla. Da ne pričamo o slobodnim i javnim prostorima, zelenilu, sadržajima. Tužno naselje za mlade porodice.
Odvratno.
Da li je moguće da se dozvoljava betonizacija te padine. Leti će u „modernom “ naselju biti 80 stepeni. Odvratno,uništiše grad