Rekonstruisana zgrada ZGOP-a u Novom Sadu poštuje železničko nasleđe
Radionica u objektu izgrađenom šezdesetih godina prošlog veka bila je veoma očuvana i reprezentativna, što je iskorišćeno kao lajtmotiv čitavog projekta.
Zgrada preduzeća ZGOP a.d. u Novom Sadu rekonstruisana je tokom ove godine prema projektu koji potpisuju master inženjeri arhitekture Jovana Đorđević i Đorđe Jović iz lokalnog arhitektonskog biroa Modena Art Studio.
Zahtev klijenta bio je dinamičan prostor savremenog dizajna koji poštuje identitet postojećeg objekta privrednog društva za građenje, remont i održavanje pruga, a kako su na ovaj zadatak odgovorile arhitekte, saznajte u redovima koji slede.
Pročitajte još na Gradnja.rs:
- Ovako će izgledati rekonstruisana zgrada Politike na Bulevaru Despota Stefana
- Medprostoru nagrada Piranesi za inovativnu obnovu crkve dodavanjem pokretnog krova
Rasterećeniji i dinamičniji prostor
Kako za Gradnju objašnjava Jovana Đorđević, vlasnica studija, predloženim idejnim rešenjem transparentne pregrade i kombinacija pojedinačnih i open-space kancelarija rasteretile su prostor i učinile ga dinamičnijim.
Dinamika se postiže i intenzivnim bojama ili kontrastima, težeći kreiranju upečatljivih kadrova.
„Ostvarena je i vizuelna veza sa proizvodnom halom, a konstruktivni elementi u enterijeru su vidljivi“ – navodi naša sagovornica.

Ka radionici su otvorene vizure iz svih segmenata gde je konstrukcija to dozvoljavala.
Specifičnost zgrade ZGOP-a u tome što je, iako izgrađena 1960-ih godina, njena radionica kao ključan segment veoma očuvana i reprezentativna, što je iskorišćeno kao ‘’lajtmotiv’’ čitavog projekta.
„Ka njoj su otvorene vizure iz svih segmenata gde je konstrukcija to dozvoljavala“ – kaže za Gradnju Jovana Đorđević.
Time se stvorila interakcija svih zaposlenih, kao i klijenata koji posećuju zgradu sa proizvodnim prostorom, ali je sačuvan i koncept industrijskog stila koji je ispraćen u novom dizajnu enterijera.
Bez suvišnih elemenata i vizuelnih prepreka
U originalnom stanju, konstruktivni elementi vidljivi u enterijeru bili sakriveni nameštajem i lamperijom, zbog čega je prostor bio mračan i delovao usko.
„Naša ideja bila je da ga oslobodimo svih suvišnih elemenata i vizuelnih prepreka, da ostvarimo vezu između fasade i radionice i kroz njega materijalima, bojama i detaljima izrazimo svog klijenta“.

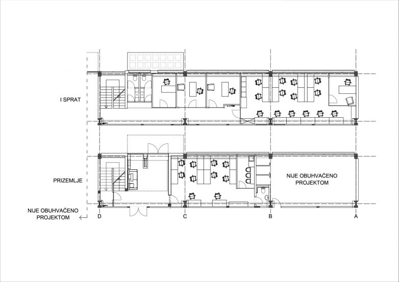
Postojeća konstrukcija, kao i kod većine objekata ove namene s polovine prethodnog veka, montažnog tipa.
Postojeća konstrukcija, kao i kod većine objekata ove namene s polovine prethodnog veka, montažnog tipa.
„Međuspratnu konstrukciju čine ’TT’ nosači sa vidljivim rebrima, preko koje je nabijeni beton, dok je zatečena Vinflex podna obloga zamenjena keramikom u celom objektu“ – kaže Đorđević.
Objekat je spolja obložen kamenom vunom koja je i zaštita za instalacije grejanja i klimatizacije. Unutrašnji pregradni zidovi su sa puno staklenih površina.
Dodatni prostor koji je formiran unutar proizvodne hale stoji na čeličnoj konstrukciji, a zvučno je izolovan i ka proizvodnoj hali.
Revitalizacija fasade uz zadržavanje postojećeg koncepta
„Što se tiče fasade, zadržani su forma i položaji otvora koji su postojali i ranije, ali je njihova podela usaglašena sa novom unutrašnjom prostornom organizacijom“ – kaže novosadska arhitektinja, dodajući da se na revitalizaciji fasade radilo uz zadržavanje postojećeg koncepta.

Odabir boja, kao i podela staklenih površina prave paralelu sa industrijskom arhitekturom zapadnih industrijskih gradova.
„Praktično, površine koje su bile pod opekom su ostale pod opekom, ali drugog dezena, dok su površine betona prešle u antracit sivu boju, te je i fasadna stolarija u istoj boji“ – kaže Đorđević.
Odabir boja fasade, kao i podela većih staklenih površina prave paralelu sa industrijskom arhitekturom zapadnih industrijskih gradova.
Bez problema uprkos izazovima
U konstruktivnom smislu, najveći izazov bilo je osmisliti i izvesti čeličnu konstrukciju novoprojektovanog dela unutar radionice, kako bi ona nastavila da funkcioniše nesmetano, uz ispunjenje novih prostornih zahteva klijenta.
„To je podrazumevalo zahvate na originalnoj konstrukciji, ali problema tokom izvođenja nije bilo“ – kaže Đorđević.

Modularnost zgrade se kroz proces projektovanja povremeno javljala kao smernica i olakšica, ali i kao ograničavajući faktor.
U projektantskom smislu bilo je neophodno formirati prostor dovoljnog kapaciteta za radnu organizaciju složene strukture u okvirima koje montažna zgrada nameće.
„Njena modularnost se kroz proces projektovanja povremeno javljala kao smernica i olakšica, ali i kao ograničavajući faktor“ – navodi naša sagovornica.
Takođe, montažni konstruktivni elementi, naročito njihovi spojevi, nameću potrebu za pažljivijim promišljanjem kako bi se prostor oko njih najbolje iskoristio.

Snažan utisak već od ulaska
Želja klijenta bila da prostor na posetioca ostavi snažan utisak već od ulaska u objekat.
„Postojeći ulazni hol je proširen pripajanjem vetrobrana i portirnice, te sada u njemu preovlađuju crna, zagasita crvena i bela“ – objašnjava Đorđević.
Zid ka radionici je obložen keramikom velikog formata i visoke refleksije, a beli zid ka open-space kancelariji je oslikan i simbolično predstavlja svako od preduzeća pod istim krovom.

Zagasitocrven zid i braon kožna sofa greju zid iza koga je stepenište bogato prirodnom svetlošću.
„Zagasitocrven zid i braon kožna sofa greju zid iza koga je stepenište bogato prirodnom svetlošću“ – kaže za Gradnju arhitektkinja iz Novog Sada.
Koridori su pak svetlih boja i dobro osvetljeni, kako bi se prostor rasteretio i delovao komfornije, čemu doprinose i prozori ka radionici koji kretanje čine zanimljivijim.
„Vodeći se brendingom preduzeća klijenta, triangulaciju smo usvojili kao repetitivni element prisutan na zidnim tehnikama i oblogama, vratima kabineta, folijama na staklenim pregradama i slično“ – naglašava Đorđević.

Ulazni zidovi dominantne boje
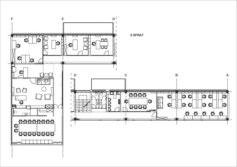
Kako kaže, pojedinačne kancelarije su povezane odabirom nameštaja ili tapeta, dok open-space kancelarije imaju ulazni zid dominantne boje, kao i visoke pregrade između grupa stolova koje svojim dizajnom podržavaju industrijsko okruženje, omogućavaju rad u sektorima, a zbog rešetkaste strukture ne opterećuju mnogo prostor.
Kancelarije na uglu drugog sprata, vezi sa novim delom, dugim staklenim frontom proširuju prilaz kabinetu direktora. Prostor sa pultom sekretarice i hodnik koji iz njega vodi oko kabineta do konferencijske sale imaju pogled na radionicu.

Posebno je dinamičan zid ručno oslikan skicama starih patenata za potrebe železnice.
Kabinet, kao i ceo novi deo, ima veću svetlu visinu od postojećeg kancelarijskog prostora, svetao je, sa dominantnom kompozicijom nameštaja duž prostora za sedenje i radnog stola direktora, u kombinaciji antracit sive i oraha.
„Ista kombinacija preovladava i prostranom konferencijskom salom, u kojoj je svaki zid dinamičan na svoj način, posebno zid ručno oslikan skicama starih patenata za potrebe železnice“ – kaže na kraju za Gradnju Jovana Đorđević.
Grafički prilozi
Foto-galerija
Faktografija
ZGOP
Novi Sad
Extra Group
Đorđe Jović, mast.inž.arh. i Jovana Đorđević, mast.inž.arh.
2021.
2022.
707 m2
P+3



