Stari Monopol u novom ruhu: Kako je niški „Centar“ ponovo zaživeo
Revitalizacijom nekadašnjeg industrijskog objekta iz 60-ih, niški studio Garage group Architects stvorio je savremeni poslovni prostor koji zadržava tragove prošlosti i otvara vrata novim mogućnostima.
Nekadašnji kompleks za obradu i skladištenje duvana u okviru Starog Monopola u Nišu, izgrađen još krajem 19. veka, decenijama je bio tiho svedočanstvo industrijske prošlosti grada. Danas, međutim, ovaj prostor dobija novo značenje.
Zahvaljujući projektu niškog studija Garage group Architects, jedan od objekata iz sastava kompleksa – poslovni objekat „Centar“ – prošao je kroz temeljnu arhitektonsku rekonstrukciju i postao primer kako se stari industrijski objekti mogu osavremeniti i ponovo aktivirati za današnje potrebe.
Reč je o objektima čija je izgradnja započeta još 1885. godine i koji su više od 100 godina služili za skladištenje i obradu duvana. Nakon privatizacije i naknadne prodaje većeg dela objekata, njihova današnja namena ne uzima u obzir originalnu funkciju, već služe za poslovanje (delom proizvodnju), a veći deo je u vlasništvu kompanije DMV d.o.o. Niš.
Iako su neki od objekata u vrlo lošem stanju, određeni delovi pojedinih objekata su u izvesnoj meri izmenjeni, posebno njihova unutrašnjost. Ipak, može se reći da se na lokaciji nije značajnije intervenisalo – sve do projekta s kojim ćemo vas opširnije upoznati u redovima koji slede.
Pročitajte još na Gradnja.rs:

Mogućnosti za prenamenu i revitalizaciju
Nekada na obodu, kompleks Starog Monopola danas se nalazi u širem centru grada, okružen stambenim četvrtima, a očekivana dislokacija železničkog koridora dodatno povećava vrednost i značaj lokacije na kojoj se, PGR-om područja gradske opštine Medijana u Nišu, kao dominantna namena predviđa poslovanje i trgovina, uz brojne moguće dopunske namene.
Kako objašnjava arhitekta Aleksandar Milojković, usled nezavršenih procesa u vezi sa vlasništvom nad zemljištem, nije bilo dovoljno preciznih podataka za sagledavanje i predlog rešenja čitave parcele, odnosno izradu urbanističke dokumentacije, projekta preparcelacije, izdvajanja površine za javnu namenu i sl.
„U datim okolnostima, izradom idejnog arhitektonskog rešenja rekonstrukcije i nadogradnje postojećih objekata, u skladu sa pravilima izgradnje utvrđenim u važećoj planskoj dokumentaciji, ispitane su mogućnosti za njihovu prenamenu i revitalizaciju“, navodi Milojković.

Budući da objekti nisu u režimu zaštite, autori su predložili distinktivne pristupe u revitalizaciji svakog pojedinačnog objekta.
Pored par manjih slobodnostojećih korpusa, na parceli dominira linearna asocijacija, „niz“ dužine od blizu 240 metara, formiran od objekata građenih u periodu od više od 60 godina, različitih spratnosti, konstruktivnih sistema, arhitektonskih izraza i različite materijalizacije.
Budući da objekti nisu u režimu zaštite, autori su predložili distinktivne pristupe u revitalizaciji svakog pojedinačnog objekta u smislu stepena očuvanja izvornog tkiva – kako u pogledu prostorno-funkcionalne organizacije, tako i u vezi sa tretmanom fasadnih omotača – i strategije intervenisanja novim arhitektonskim dodacima, detaljno razmatrajući samo objekte u vlasništvu kompanije „DMV“ – objekte „1“ i „2“ na nivou idejnog rešenja, objekat „Centar“ i kroz izradu PZI čija je I faza realizovana.

Postojeći objekat tretiran je poput palimpsesta – materijala za pisanje sa kojeg je sastrugan ili opran prvobitni tekst, kako bi se ponovo mogao koristiti za nove zapise.
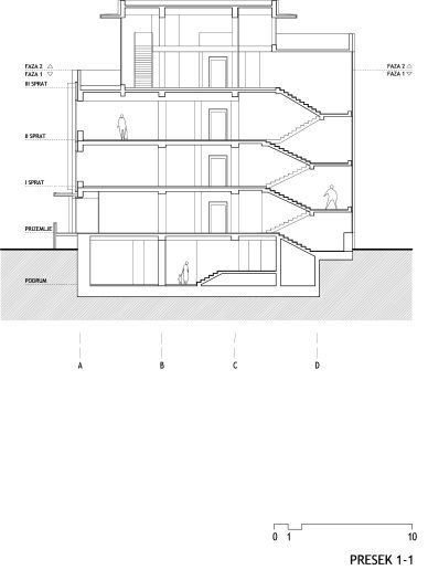
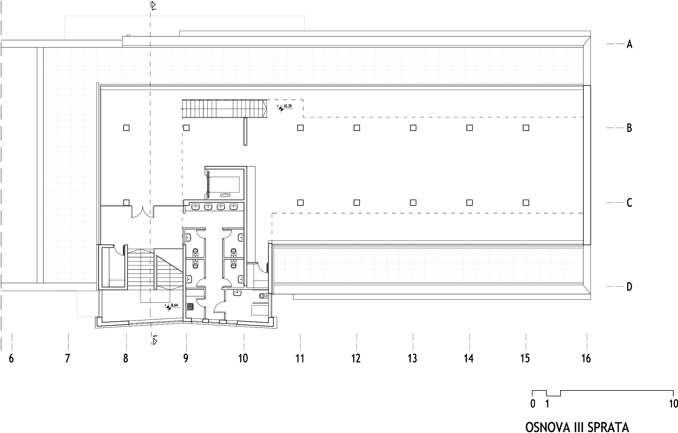
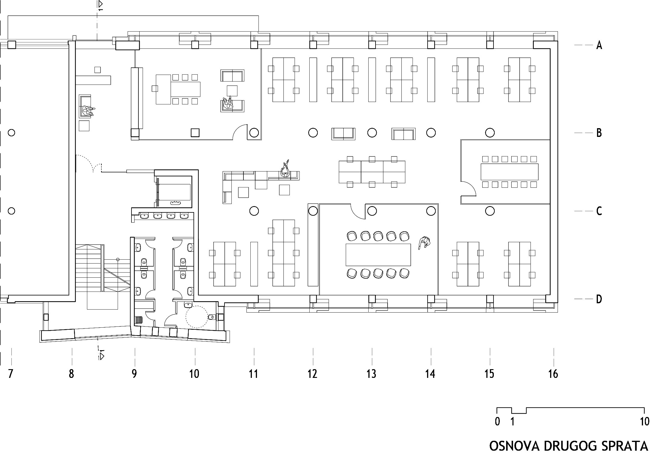
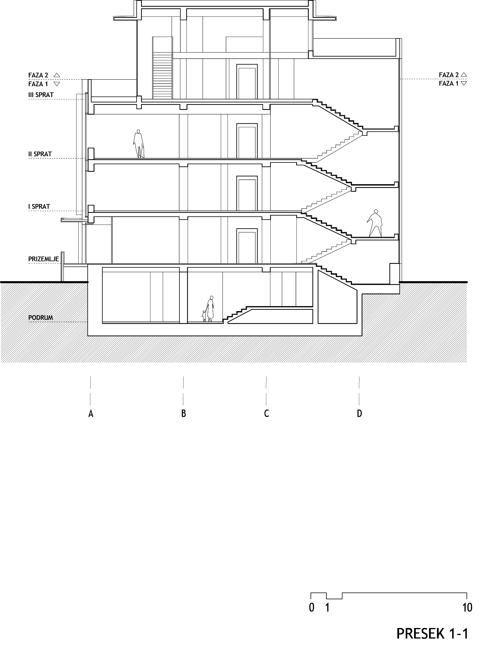
Objekat „Centar“, izgrađen 60-ih godina prošlog veka, nalazi se u središtu pomenutog niza, spratnosti je Po+P+2. Izrađen je u skeletnom konstruktivnom sistemu, sa AB stubovima, gredama i sitnorebrastim tavanicama, sa rasponima od 4,0 m u podužnom pravcu, i tri polja u poprečnom, raspona 5,30, 6,00 i 5,30 m, različitih visina nadzemnih etaža – 3,40, odnosno 3,80 m, verovatno u skladu sa potrebama tehnološkog procesa koji se u objektu odvijao.
„U skladu sa funkcionalističkom doktrinom, dominantnom u periodu izgradnje, oblikovanje objekta je nepretenciozno i skromno, uz naglašavanje konstruktivnih elemenata sekundarnom plastikom. U procesu revitalizacije, nasuprot uobičajenom konzervatorskom pristupu, postojeći objekat tretiran je poput palimpsesta – materijala za pisanje sa kojeg je sastrugan ili opran prvobitni tekst, kako bi se ponovo mogao koristiti za nove zapise“ – kaže Milojković i nastavlja:
„Ovo je posebno dosledno sprovedeno u enterijeru, u kome su otklonjeni svi vremenom nagomilani ‘viškovi’ i pokazani koncesivni slojevi, originalni materijali – vidljivi beton stubova i tavanica, liveni teraco na podovima vertikalnih i horizontalnih komunikacija i sl, što korisniku ostavlja mogućnost naknadnog novog ‘pisanja’ savremenim jezikom, parcijalnog ili celovitog, u skladu sa potrebama programa ili afinitetima“.

Fasada nije ni projekcija unutrašnjosti ni njena maska, već njena dopuna koja naglašava novu ulogu i značaj objekta u kompleksu.
Kako dalje objašnava Milojković, u pogledu oblikovanja, u traganju za odgovarajućim izrazom, primenjen je koncept „fasadizma“, ali ne u tradicionalnom tumačenju očuvanja istorijskih fasada i izgradnje novih funkcionalnih enterijera „iza njih“, već u smislu nepotpadanja pod modernističku dogmu da fasada treba da predstavlja neposredan i „iskren“ izraz unutrašnjosti objekta.
„Projektovana kao komponenta šireg konteksta, izgrađena na dihotomiji enterijera i eksterijera, predstavlja takođe jednu vrstu palimpsesta u kojem različiti slojevi služe različitim funkcijama. Na taj način ‘fasadizam’ je iskorišćen kao strategija za poboljšanje funkcionalnosti, estetike, energetskih i urbanih performansi zgrade, a fasada kao javna površina zgrade, nije ni projekcija unutrašnjosti ni njena maska, već njena dopuna koja naglašava novu ulogu i značaj objekta u kompleksu“ – kaže niški arhitekta.
U drugoj fazi predviđena i nadogradnja
Projektom rekonstrukcije predviđena je i nadogradnja postojeće zgrade (predviđena za realizaciju u II fazi). Na njenom vrhu pojavljuje se novi, dodati dvovisinski volumen, transparentan i fluidan, poput intervencije na objektu „1“, povučen u odnosu na fasadne ravni donjih spratova čime se na poslednjoj etaži dobijaju prohodne krovne terase.
Poboljšanje energetskih performansi objekta ostvareno je izolovanjem postojećih i novoprojektovanih elemenata termičkog omotača kamenom vunom odgovarajuće debljine, kao i ugradnjom fasadne aluminarije sa odgovarajućim staklo-paketima, navodi sagovornik Gradnje.
Fasadni sistem je projektovan kao ventilisana fasada, osim u zoni vertikalnih komunikacija, na spoju sa susednim objektom, gde je realizovana kontaktna fasada. Završna obloga ventilisane fasade izrađena je od fibrocementnih Swisspearl ploča, na aluminijumskoj potkonstrukciji, postavljenih na različitim distancama od osnovnog korpusa postojećeg objekta.

Pokušaj afirmacije postojećih potencijala
Kako na kraju ističe Aleksandar Milojković, različite arhitektonske akcije predložene za intervenisanje na objektima u kompleksu Starog Monopola u Nišu predstavljaju pokušaj afirmacije potencijala postojećih objekata industrijske arhitekture koji su izgubili svoju prvobitnu namenu, u kontekstu primene adaptivne ponovne upotrebe ne samo na zgrade nasleđa, već i na „obične“ zgrade i infrastrukturne objekte.
“Imajući u vidu sve zamagljenije disciplinske granice između adaptivne ponovne upotrebe i nove izgradnje, i adaptivne ponovne upotrebe i zaštite nasleđa, to može dovesti do novih strategija u budućnosti.” – zaključuje Milojković.
Grafički prilozi






3D vizuelizacija
Faktografija
Kompleks Stari Monopol, Objekat “Centar”
Niš
Garage group Architects – Aleksandar Milojković, Isidora Đorđević, Andreja Milojković
2021.
2023–2024.
2.470 m2 (+ 880 m2 u II fazi)
Su+Pr+2+Ps (Ps će se izvesti u II fazi)
DMV d.o.o. Niš




