Socijalno stanovanje u naselju Padina po projektu A3 Architects; foto: Relja Ivanić
Domaći projekti, Izdvojeno

Padina: Socijalni stanovi u Beogradu po privatnoj inicijativi

Pogodno, pristupačno, porodično – osobine su novog klastera višeporodičnog stanovanja u naselju Padina u opštini Zvezdara.

Pristupačno stanovanje (eng. social housing)  jedan je od oblika državne intervencije na tržištu nekretnina. Više decenija odsustva ozbiljnijeg oblika izgradnje pristupačnih stanova rezultovalo je visokim cenama nekretnina – što je možda i bio cilj državne nezainteresovanosti za stambenu problematiku. Nepoželjni poredak stvari stvorio je pogodne uslove za privatni preduzetnički poduhvat. Graditi i prodavati jeftine stanove, ispostavilo se, uspešni je poslovni model.

Kupiti kvalitetnu novogradnju u Beogradu s parkingom po pristupačnoj ceni skoro je nemoguća misija. Slika na tržištu nekretnina je poznata – niski mesečni prihodi, visoka cena kvadrata, oskudna ponuda stanova. Ali, izgradnjom zgrada u naselju Padina pomenuti poredak stvari se promenio. Pažljivim planiranjem, projektovanjem i izvođenjem, kreiran je obrazac racionalizacije troškova, čime je stvoren uravnotežen odnos cene i kvaliteta. Stan veličine 35-50 m2 u ovom zanimljivom komšiluku moguće je kupiti po ceni od oko hiljadu evra po metru kvadratnom. Ovaj iznos skoro je upola niži od prosečne tržišne vrednosti kvadrata novogradnje u Beogradu.

Naselje Padina nudi održivi stambeni model; Foto: Relja Ivanić

Stan veličine 35-50 m2 u ovom zanimljivom komšiluku moguće je kupiti po ceni od oko 1.000 evra po metru kvadratnom.

Namera preduzimača, koji je i sam stanovnik naselja Padina, bila je kreiranje održivog stambenog modela. Preduzetnički model popunjava prazninu na tržištu pristupačnih nekretnina. Model se zasniva na izgradnji manjih višeporodičnih stambenih objekata na više susednih parcela. Kroz prodaju sagrađenih stanova obezbeđuju se novčana sredstva za dalji razvoj projekta, kupovinu susednih parcela i gradnju sledeće etape razvoja. Metod širenja funkcioniše po uobičajenom principu zamene parcele za stan u zgradi. Sklop pristupačnog višeporodičnog stanovanja na ovaj način može se dograđivati i širiti.

Metod širenja funkcioniše po uobičajenom principu zamene parcele za stan u zgradi; Foto: Relja Ivanić

Arhitektonski izazov

Pred timom iz beogradskog A3 Architects bio je zadatak prilagođavanja finansijskoj, akterskoj i tehnološkoj podnormiranosti sredine, ali i izazov uklapanja objekata u okruženje bez jasno određenih ambijentalnih vrednosti. Osnovni projektantski zadatak bilo je uklapanje što većeg broja malih stanova u raspoložive gabarite zgrada.

Neophodno je, takođe, bilo zadovoljiti minimalne prostorne uslove propisane pravilnikom za projektovanje višeporodičnih stambenih zgrada. Gde su ograničenja, tu je i kreativnost. Arhitekte su domišljato osmislile obrazac oblikovanja, organizacije i građenja koji zadovoljava sve postavljene zahteve i skladno se nadovezuje na postojeći kontekst okruženja. Polazna ograničenja pretvorena su u kompetativne prednosti, a čime je ovaj stambeni kompleks pristupačnog stanovanja na periferiji grada postavljen je u centar profesionalne pažnje.

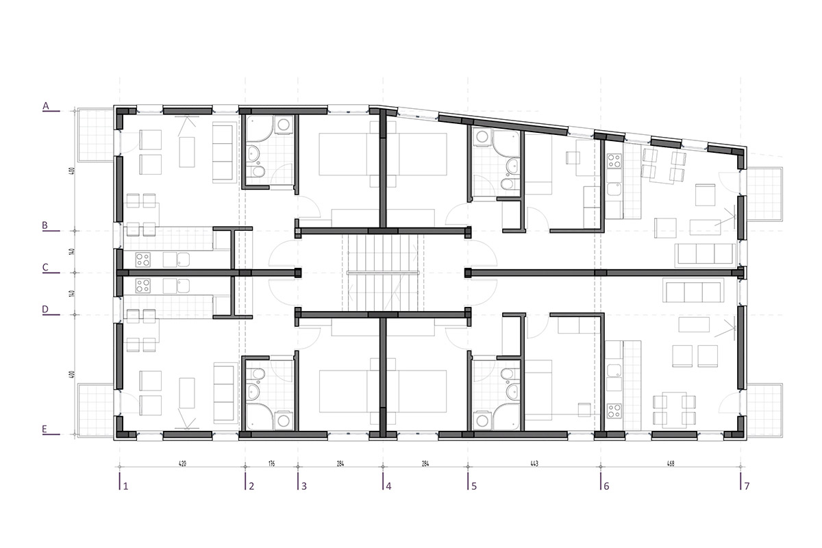
Padina: Tipska etaža objekta
Tipska etaža objekta B
Tipska etaža objekta B
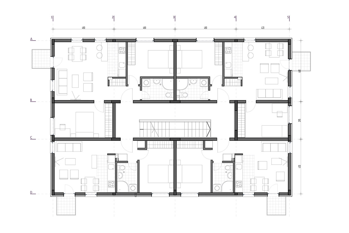
Tipska etaža objekta C
Tipska etaža objekta C
Tipska etaža objekta D
Tipska etaža objekta D
Presek
Presek

Pojednostavljen konstruktivni sklop

Konstruktivni sklop objekta je skeletni armirano-betonski, liven na licu mesta. Rasponi nosećih stubova manji je od pet metara, što ih čini jednostavno izvodljivim primenom bazičnih izvođačkih tehnika. Kako su objekti niske spratnosti, potrebe za liftom nije bilo. Ukrućenje u horizontalnim pravcima izvršeno je vertikalnim amirano-betonskim zidnim platnima oko stapenišnih jezgara i servisnih vertikala. Konstruktivni sklop pojednostavljen je do krajnjih granica ali je zato brzo, lako i pristupačno izvodljiv.

Fasada je izvedena od pristupačnih materijala neutralne obrade; Foto: Relja Ivanić

Konstruktivni sklop pojednostavljen je do krajnjih granica ali je zato brzo, lako i pristupačno izvodljiv.

Objekti se formalno uklapaju u oblikovni kod susedstva. Suprotstavljajući se okruženju bez jasnog identiteta, arhitekte su raznolikim oblikovanjem krovnih ravni postigle da svaki objekat ima jedinstven izgled. U oblikovanju zgrada preovladavaju osnovni arhitektonski elementi ali i motiv dvovodnog krova.

Fasada je izvedena od pristupačnih materijala neutralne obrade. Svi suvišni elementi su uklonjeni, a izgledom zgrada preovlađuju pokrenutost krova, detalji od lima i bravarije, ritam prozorskih otvora, smena lođa i balkona. Skromni ali skladni, objekti pristupačnog stanovanja u naselju Padina, u zbiru i u sadejstvu, stvaraju jedan simpatičan i ugodan ambijent primeren svakodnevnici porodičnog života.

Pogled iz vazduha na naselje Padina; Foto: Relja Ivanić

Prostorna organizacija

Zgrade imaju od 11 do 14 stana ukupno, dvostrane ili trostrane orijentacije, što je velika prednost. Organizacija stambenih jedinica prati podelu na dnevnu i noćnu zonu, s izdvojenim kupatilom. Radi uštede, ulazna zona je pripojena dnevnom boravku. Kuhinja, trpezarija i dnevni boravak u jednom su prostoru, s otvaranjem prema lođi, terasi ili balkonu – zavisno od objekta. Svaka dnevna soba ima više prozorskih otvora što je čini provetrenom i prosvetljenom. Spavaće sobe prostorno su skromnije ali zadovoljavaju osnovne standarde normativa.

Skladan odnos projektovanja i izvođenja, cene i kvaliteta, materijala i oblikovanja; Foto: Relja Ivanić

Promišljeno graditi

Sve aktuelnija tema stambenog zadrugarstva otvara pitanje kako u domaćim uslovima jeftino graditi. „Što više sranja rešite u procesu projektovanja, to manje sranja napravite na gradilištu“ – ističe Bjarke Ingels, poznati danski arhitekta. No, u Srbiji, situacija sa stambenom novogradnjom nešto je drugačija.

Rešavanju prostornih problema, planiranju i organizaciji gradilišta pridodaje se nedovoljno pažnje. Zida se onako kako se i živi – stihijski, hajdučki i ad hoc. Ishodište ovog pristupa su nakaradni urbani predeli izvedeni bez ili mimo projekta. Najviše brljotina ima tamo gde se najviše zida. Pa tako, standardi višeporodičnog stanovanja u Beogradu i Srbiji su na niskom nivou.

Skup zgrada u beogradskom naselju Padina, s druge strane, rezultat je pažljivog i studioznog promišljanja. U saradnji s klijentom, arhitekte iz A3 Architects kreirale su skladan odnos projektovanja i izvođenja, cene i kvaliteta, materijala i oblikovanja. Najvrednije od svega je činjenica da su arhitekte projektovanju zgrada pristupile od realnih mogućnosti sredine i za taj realni okvir finansija, učesnika i tehnologije osmislile atraktivni prostorni oblik. Praktičnost u izvođenju i svedenost arhitektonskih elemenata rezultovali su obrascem oblikovanja, organizacija i građenja koji pruža mnogobrojne primene s različitim ishodima.

Kad ste već ovde…

Postani deo Gradnja zajednice

Najnovije vesti s našeg portala svakog petka u vašem sandučetu.

Dizajn enterijera

Srodni tekstovi

5 komentara

  1. Marinko

    Moze hiljadu evra kada je bogu iza nogu…

  2. ant

    pa nije baš neko okruženje

  3. Arh

    Funkcionalna organizacija stanova, višestrana orjentacija i osvetljenost su bolji nego u svim aktuelnim novogradnjama koje promovišu kao „luksuzne“ po celom Beogradu, nebitno da li užem ili širem. Glavno je da se izmisli pompezno ime kompleksa, uloži više u marketing nego u projekat, a to što si sa vrata u kuhinji i što u istu misle da treba smestiti i cipelarnik, nema veze. Svaka čast za pristup A3.

  4. Vladimir

    Investitore kvadrat kosta do 500eura po m2 sve sa zemljistem, papirima, itd, itb.
    Sve ostalo je zarada

  5. Vladimir

    Zar je i ovde na snazi cenzura pa komentari koji ne odgovaraju ne prolaze??

Ostavite odgovor

Obavezna polja *