U ritmu štafli i tišine: Vikendica na Tari koja diše s prirodom
Odbacujući složene zidne sisteme, beogradske arhitekte su koristile monomaterijalnu strukturu, gde jedan materijal obavlja više funkcija.
Projektovana 2022. godine u Nacionalnom Parku Tara od strane beogradskog studija KAI Architecture, ova vikend kuća od 85 kvadrata od skora je deo izložbe 47. Salona arhitekture, koji se u Muzeju primenjenih umetnosti u Beogradu ove godine održava od 1. do 30. aprila.
Tim povodom – i uz obilje novih fotografija – još jednom ćemo osvrnuti na objekat za čije su oblikovanje autori inspiraciju našli kako u skandinavskoj arhitekturi i njenom savremenom i minimalnom athitektonskom jeziku, tako i u lokalnoj tradicionalnoj arhitekturi, prepoznatljivoj po oštrim krovovima.
Pročitajte još na Gradnja.rs:
Jedan materijal za više funkcija
Kako navode arhitekte, projekat nije imao nameru da bude invazivan, već da poštuje i da se prilagodi okolnom okruženju koje je specifično za Nacionalni Park Tara i lokalitet Kaluđerske Bare, koje se nalaze na nadmorskoj visini od 1.050 metara.
„Jedan od ključnih principa našeg pristupa je odbacivanje složenih zidnih sistema, koji se oslanjaju na kompleksne sklopove materijala sa različitim vekovima trajanja. Takvi sistemi neizbežno propadaju i stvaraju otpad. Umesto toga, koristimo monomaterijalnu strukturu, gde jedan materijal obavlja više funkcija. U našem slučaju strukturalnu – izolacionu – estetsku“, objašnjavaju iz KAI-ja.
Galerija na kojoj se nalazi velika spavaća soba, pomoću staklene ograde i krovnih Velux prozora, ostaje u stalnoj komunikaciji sa ostatkom prostora kao i okolnom prirodom.
Objekat je smešten u blizini puta, ali njegova orijentacija je planirana da sakrije poglede i sačuva privatnost korisnika. „Kuća, jednostavne forme sa dvovodnim krovom, je osmišljena kao vikendica sa idejom savremenog kvaliteta života“ – kažu autori.
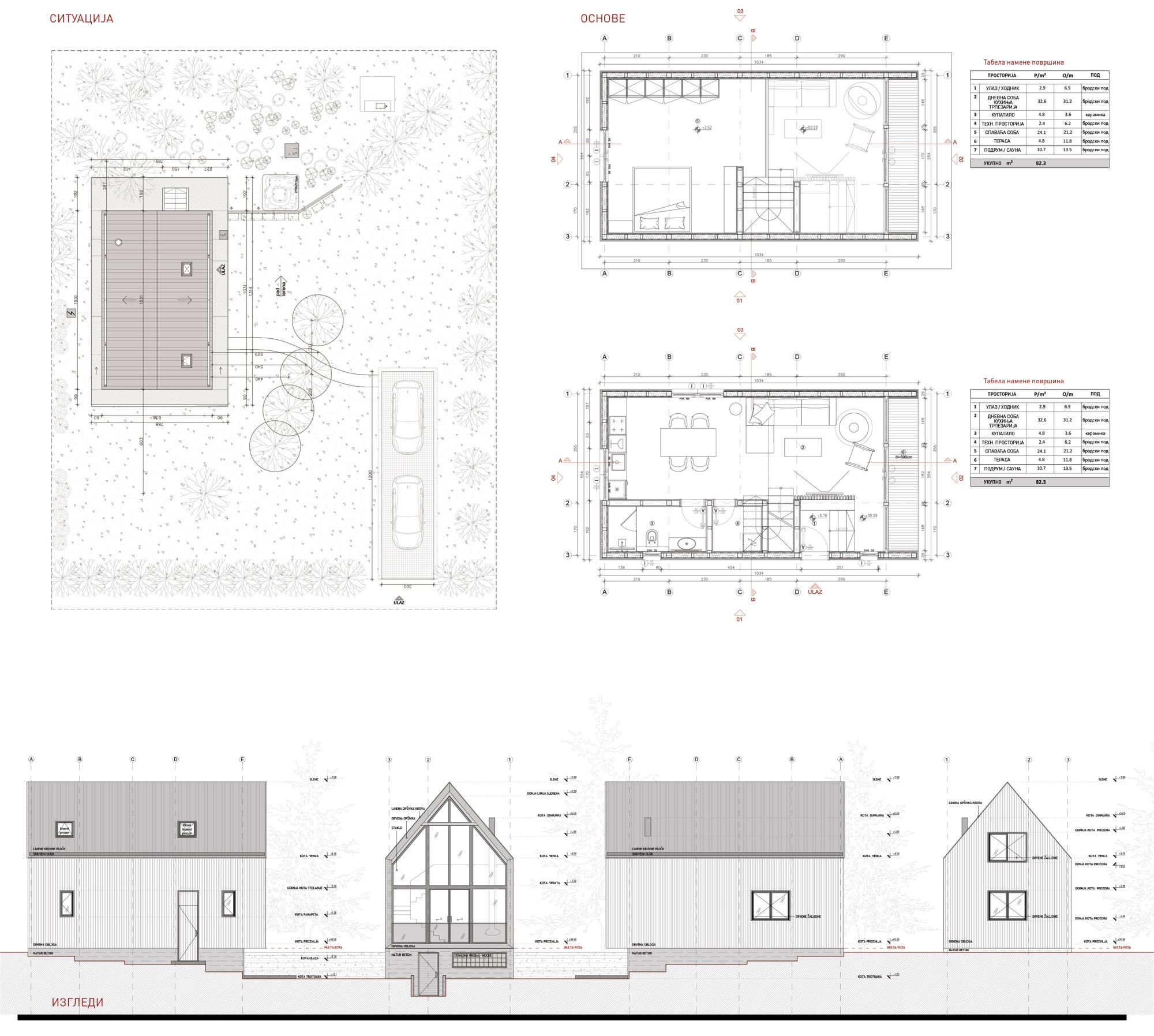
Na zakošenom terenu, dispozicija objekta je takva da ceo stakleni front gleda u netaknutu prirodu u okolini. Ukupne površine od 85 m², galerijskog tipa, objekat je projektovan tako da se prizemlje sastoji od velikog „open spacea“.
„Ovakav način organizacije prostora je oslobodio prizemlje i omogućio kreiranje fleksibilnog prostora za zajedničke aktivnosti. Galerija na kojoj se nalazi velika spavaća soba, pomoću staklene ograde i krovnih Velux prozora, ostaje u stalnoj komunikaciji sa ostatkom prostora kao i okolnom prirodom. Kako bi upotpunili odmor svakog korisnika, ispod kote nula, nalazi se sauna“ – navode iz studija.
Briga o održivosti na prvom mestu
Kako dalje saznajemo, posebna pažnja bila je posvećena materijalizaciji objekta, a na prvom mestu je stavljena briga o održivosti. „Drvo kao materijal ima duboke korene u tradicionalnoj arhitekturi i održava beskrajnu harmoniju sa prirodom“ – ističu iz KAI Architecture.
Odabir materijala nije bio samo od kulturnog ili estetskog značaja, već i kako bi imao minimalan uticaj na životnu sredinu. „Kao obnovljiv resurs nudi svestranost ali i toplinu koju retko koji drugi materijal može da ponudi“, objašnjavaju beogradske arhitekte.

Element koji ostavlja jak utisak jeste svakako „stakleni front“ koji u dijalogu sa prirodom unosi deo okolnog pejzaža.
Svi konstruktivni elementi od punog drveta su pažljivo odabrani i sušeni u okolnim stovarištima. Fasadni mantil je u potpunosti prilagođen velikom klimatskom rasponu u temperaturi, koja čini jednu od glavnih karakteristika za planinu poput Tare.
Fasadu čine naizmenično postavljene vertikalne drvene štafne koje upravo svojim ritmom ostavljaju elegantan izgled, a ispod kojih se nalazi vetreni sloj fasade sa pratećom termoizolacijom kao i strukturalnom drvenom konstrukcijom. Element koji ostavlja jak utisak jeste svakako „stakleni front“ koji u dijalogu sa prirodom unosi deo okolnog pejzaža.
Grafički prilozi
Foto-galerija
Faktografija
KAI Architecture
Vikend kuća Tara
Kaluđerske Bare, Nacionalni park Tara
privatno
stambeni objekat
85 m²
2021–2022.
Lejla Nurković














Ovo nije u stilu srpske tradicionalne arhitekture. Ne uklapa mi se ovo u ambijent nijedne naše planine.
Svaki građevinski objekat može da se posmatra iz različitih arhitektonskih uglova, prijatnost i udobnost korišćenja i održavanja, „statement“ objekta, oblikovanje i sveukupna estetika,racionalnost i funkcionalnost, uticaj na okolinu , odnos iznutra/spolja, primena materijala boja tekstura itd.
Ova kućica mi ne izgleda najprijatnije za boravak, ta strogost gotskih katedrala, nepotrebne nategnute simetrije i sva ta šiljkovitost koliko god izlegala dobro na fotografijama se uživo pretvara u jedan neprijateljski nastrojen objekat u kome je teško opustiti se za vikend. Isuviše spomenička arhitektura zahvatila je ogroman volumen prostora koji je gurnut u taj tesnac u vrhu. Ni sama priroda planine na kojoj se nalazi nije toliko surova. „Statement“ je može mi se, i naravno moći će se sve dok se hiljade borovih iglica ne sakriju u skrivenim olucima.
Po ko zna koji put ponavljam, nemojte da plagirate vaše projekte s raznih strana sveta.
Skuvajte čaj ili kafu, pustite neku lofi muziku, pripremite dovoljno papira i drugog potrošnog materijala i crtajte slobodnom rukom, promišljajte, a ukoliko vam se pojavi klijent s slikom s Pinterest-a recite mu da mu vi niste potrebni nego samo izvođači.
Svaka stara brvnara ili koliba na ovoj planini je kvalitetnija od ove i zdravija,tako da ovo je samo reklamno predstavljanje nimalo autentičnog objekta sa ovih područija,ne uklapa se u ovo podneblje,tj nije tradicionalna.
Mnogo je betona i nategnutosti da bi ova vikendica ‘disala’ sa prirodom. Da je jeftina a nije imalo bi smisla. +Treba zagrejati sav onaj slobodan prostor.