U Pariskoj ulici planirana nadgradnja sa vertikalnom baštom za uzgoj povrća
Preko puta Kalemegdanskog parka, firma IoNet d. o. o. planira nadgradnju dve etaže na zgradi podignutoj sredinom dvadesetih godina prošlog veka.
Gradsкa uprava Grada Beograda oglasila je javnu prezentaciju Urbanističkog projekta nadogradnje, dogradnje u dvorišnom delu, rekonstrukcije, adaptacije i prenamene stambenog u ugostiteljsko-smeštajni objekat spratnosti Po2+Po1+P+G+4 u Pariskoj ulici broj 12, na opštini Stari grad.
Idejno rešenje potpisuje Vladislav Matić & sinovi, nosilac izrade urbanističkog projekta je beogradski VMS d.o.o, a zahtev za njegovo potvrđivanje podnelo je firma IoNet d.o.o. iz Beograda.
Predmet projekta je postojeći stambeni objekat u nizu, izgrađen polovinom dvadesetih godina prošlog veka, koji se nalazi u prostornoj kulturno-istorijskoj celini „Područje Knez Mihajlove ulice“ koja je kategorisana od izuzetnog značaja za Republiku Srbiju.
Pročitajte još na Gradnja.rs:
- U Šumatovačkoj na Vračaru planiran vrtić za 140 mališana
- Hotel Indigo Belgrade: Atmosfera starog Dorćola prenesena u sadašnjost

Zeleni krov za uzgoj začinskog bilja i povrća
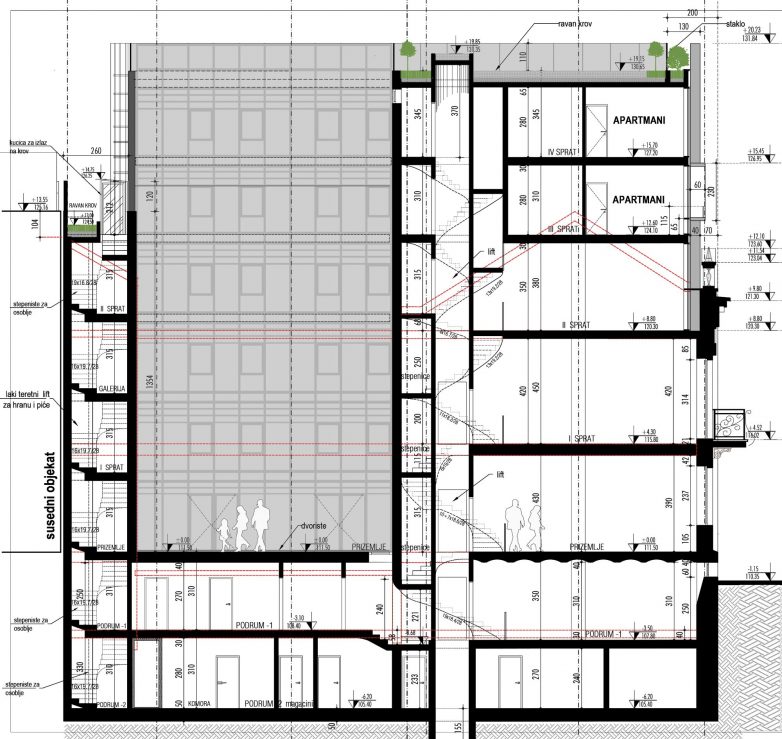
Svrha izrade projektne dokumentacije je nadogradnja i dogradnja u dvorišnom delu, kao i rekonstrukcija, adaptacija, sanacija i prenamena stambenog u stambeno-komercijalni, odnosno smeštajno-ugostiteljski objekat – lokal u kojem je predviđen restoran na više nivoa i poslovni apartmani (ukupno 4) na dve poslednje etaže, sa planiranom ukupnom BGRP 1.173 m2.
Generalno je predviđeno da se objekat ukupne bruto površine 781 m2 rekonstruiše i nadogradi tako da se dobije racionalna veća korisna površina, čime se ekonomski opravdava celokupna investicija, navodi se u dokumentaciji.
Postojeći kosi krov se ukida i potkrovlje postaje sprat, a predviđa se nadogradnja dve etaže tako da objekat postaje Po2+Po1+P+G+4 sa zelenim krovom iznad poslednjeg sprata, koji će se koristiti za uzgoj začinskog bilja i povrća u zelenim lejama za potrebe restoranske kuhinje.

Poslednja dva nadograđena sprata su predviđena za poslovne apartmane, dok su svi ostali nivoi u funkciji ekskluzivnog restorana.
Na dvorišnom delu objekta, velike postojeće spratne visine postojećih etaža u objektu daju mogućnost preraspodele spratnih visina i uvođenja nove etaže-galerije.
Na taj način se po dubini trakta dobija spratnost od podzemna dva nivoa podruma, prizemlja, galerije i četiri sprata. Tako se u dvorišnom delu dobija spratnost Po2+Po1 +P+G+4.
Poslednja dva nadograđena sprata su predviđena za poslovne apartmane visoke kategorije, dok su svi ostali nivoi u funkciji ekskluzivnog restorana – ispod postojećeg podruma Po-1, dodaje se još jedan podrumski nivo Po-2 za potrebe ostava restorana.
Predviđeno je proširenje postojećeg gabarita unutrašnjeg krila – koje je sada prilično male širine trakta cca 3,30 m – formiranjem zastakljene terase-zid zavese na račun unutrašnjeg dvorišta, a to proširenje se prostire kroz sve nivoe, da bi se dobila najveća moguća širina trakta cca 6,10 m, radi boljeg funkcionisanja restorana, odnosno poslovnih apartmana.

Kružni panoramski lift za goste
Unutrašnje dvorište je planiranom intervencijom suženo i pripojeno prizemlju, a otvaranjem staklenih zidova leti funkcioniše kao natkriven otvoren prostor, dok se preostali smanjeni otvoreni deo dvorišta, koji je natkriven platnenom tendom kao zaštitom od sunca, takođe koristi kao bašta restorana.
Prema dokumentaciji, postoje dva stepeništa sa pripadajućim liftovima u objektu – jedno je zavojito, na mestu postojećeg, sa kružnim panoramskim liftom i služi za goste restorana i poslovnih apartmana, dok je drugo stepenište sporedno i služi za kretanje osoblja restorana i eventualnu evakuaciju.
Predviđeno je da se kuhinjski prostor i ostave povežu lakim teretnim liftom na elektropogon za vertikalni transport hrane i pića.

Na javnom uvidu do 21. februara
Javna prezentacija obaviće se u zgradi Gradske uprave grada Beograda od 9. do 21. februara 2022. godine, svakog radnog dana od 9 do 15 časova.
Zainteresovana lica mogu tokom javne prezentacije da izvrše uvid u urbanistički projekat, kao i da svoje primedbe i sugestije na planirana rešenja u pisanoj formi dostave Sekretarijatu za urbanizam i građevinske poslove, najkasnije do 21. februara 2022. godine.







Plač majke božije. Ovo je toliko loše da je teško prevodivo u reči.
Čak i projektanti znaju da je njihov projekat nije za pokazivanje, pa su ga prekrili zelenilom – da se ne vidi.
Idejno rešenje ove zgrade su svojevremeno radili Dejan Miljković i Jovan Mitrović dok su još bili u slozi i ljubavi.
Cemu ovo?
Ovo je predobro. Hrabro i majstorski.