Ovo zatvoreno naselje kraj Sofije jedna je od najpoželjnijih lokacija za život u Bugarskoj
Fasade nisu raznovrsnih boja samo zbog estetike, već imaju i funkcionalnu svrhu pomažući stanarima da se orijentišu unutar kompleksa… u kojem je skoro svaka kuća ista.
Rezidencijalni park Lozen jedna je od najambicioznijih i najekspanzivnijih stambenih inicijativa u Bugarskoj. Razvijen od strane bugarskog ogranka nemačke kompanije Lindner Group u saradnji sa sofijskim studijom IPA – Architecture and more, projekat je postao jedna od najpoželjnijih lokacija za život u toj zemlji.
Osnovna ideja oko koje je razvijen koncept je podržavanje nezavisnosti svake stambene jedinice uz negovanje osećaja zajednice i promovisanje mirne koegzistencije među stanovnicima. Sa lokacijom u neposrednoj blizini sela Lozen i sa lakim pristupom glavnom gradu, kompleks nudi zatvoren tip zajednice, kažu arhitekte.
Pročitajte još na Gradnja.rs:

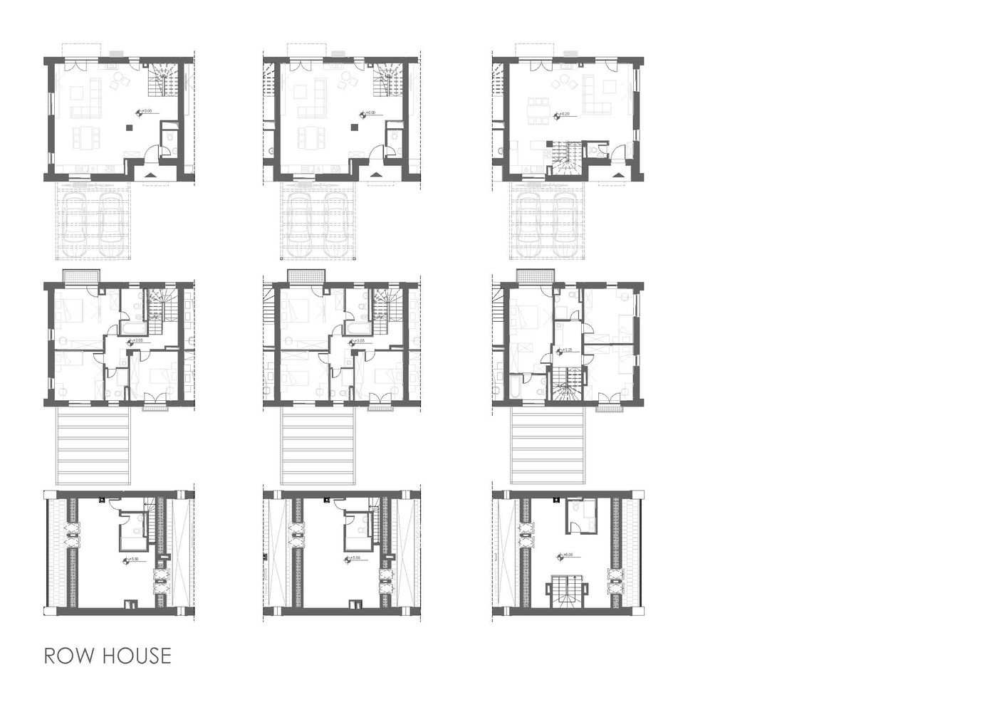
Postoje tri glavna tipa stambenih struktura, gde je svaka sa karakterističnim rasporedima i kvadraturom.
Ovo prigradsko naselje je planirano na način da ponudi stanarima raznovrsne opcije stambenih jedinica. Postoje tri glavna tipa stambenih struktura, gde je svaka sa karakterističnim rasporedima i kvadraturom, kako bi se zadovoljili različiti zahtevi i očekivanja budućih stanara.
Dizajn rezidencijalnog parka Lozen je takođe usmeren i na njegov bujni prirodni ambijent. Projekat integriše urbanističko planiranje sa okolnim pejzažom kako bi stvorio harmoničan životni prostor, navode arhitekte.

20 posto pod objektima
Stanovi zauzimaju samo oko 20% predmetnog zemljišta, dok je ostatak pod otvorenim prostorima koji su osmišljeni na način da ponude stanarima kako privatna dvorišta za intimnija okupljanja, tako i prostrane javne površine za razvoj duha zajedništva.
Zajednički prostori su dizajnirani na način da podsećaju na uređene parkove, te se mogu videti i prostori za sport, rekreaciju i dečije igre.
Interni putevi su takođe uključeni u projekat kako bi se obezbedilo neometano kretanje za automobile, bicikliste i pešake.

Osim estetskog aspekta, boje imaju i funkcionalnu svrhu pomažući stanarima da se orijentišu unutar kompleksa.
Kako objašnjavaju arhitekte, eksterijer kuća karakteriše primena raznovrsnih boja na fasadama, koje se harmonično uklapaju sa okolnom prirodom.
Ove boje, inspirisane tonovima prirode, stapaju se sa okruženjem bez narušavanja opšteg vizuelnog balansa. Osim estetskog aspekta, boje imaju i funkcionalnu svrhu pomažući stanarima da se orijentišu unutar kompleksa.
Buduće faze projekta podrazumevaju izgradnju dodatnih objekata za raznovrsne usluge, uključujući školu, vrtić, sportski kompleks, restorane, prodavnice i različite druge pogodnosti.

Završetak do kraja 2024. godine
Kompleks kraj Sofije zadovoljava potrebe modernih urbanih stanovnika, pružajući harmoničan i ispunjavajući način života, uz održavanje praktičnog pristupa gradskim sadržajima, navode arhitekte.
Trenutno je operativna Faza 1 projekta, koja obuhvata 135 kuća u nizu, koje su u funkciji kuća za jednu ili dve porodice. U toku je izgradnja dodatnih 27 kuća za Fazu 1 i 59 kuća za Fazu 2, sa očekivanjem da će se celokupan projekat završiti do kraja 2024. godine.
Grafički prilozi
Foto-galerija
Faktografija
Residential Park Lozen
periferija Sofije, Bugarska
IPA – Architecture and more
6.3970 m²
2023.













