Novi kulturni centar u bugarskom selu Karpačevu; Foto: Todor Todorov
Svetski projekti

Kako je stari mlin transformisan u živahan javni prostor

Trospratna drvena konstrukcija strukturalno je ojačana, dok je dodavanje novih elemenata u enterijeru samo poboljšalo njen prirodan izgled.

U bugarskom selu Karpačevu objekat starog mlina nije samo važno lokalno obeležje, već i mesto susreta različitih kultura, nacionalnosti i ideja koje su se razvijale kroz generacije.

Ovaj objekat je početkom 2022. godine pretvoren u kulturni centar koji bi trebalo dodatno da poboljša društveni i kulturni centar u selu, ali i u regionu.

Zgrada mlina tako je prošla kroz dramatičnu tranziciju iz napuštene ruševine u živahan javni prostor vraćen zajednici i kojoj pripada, a za njen novi izgled zaslužan je arhitektonski biro Studio Nada.

Pročitajte još na Gradnja.rs:

Projekat rekonstrukcije potpisuje bugarski Studio Nada; Foto: Todor Todorov

Reciklaža raspoloživih materijala

Mlin je prvobitno bio podignut u obližnjem selu, da bi zatim kasnije bio premešten sve do Karpačeva, u kom se i danas nalazi, piše ArchDaily.

Nakon prestanka sa radom objekat je potpuno napušten i pretrpeo je znatna oštećenja, da bi tokom 2019. godine udruženje Devetaški plato odlučilo da vrati život u stari mlin.

Osnovni cilj projekta je bila adaptacija i prenamena napuštene zgrade korišćenjem lokalnih prirodnih materijala, kao i reciklažom raspoloživih materijala, poput drvenih daski, crepa, cigli, gipsa, kamena i sl.

Nakon prestanka sa radom objekat je potpuno napušten i pretrpeo je znatna oštećenja; Foto: Todor Todorov

Novododati elementi ne samo da poboljšavaju prirodan izgled stare strukture, već unose i svetlost u unutrašnji prostor.

Suštinski koncept je bio očuvanje sirove, ruralne estetike originalnih materijala, kao i da se istovremeno integriše nova funkcija na holistički i razuman način, kako bi se zadovoljile nove potrebe.

Polazna tačka dizajna za novu intervenciju bio je usvajanje principa kontrasta i ravnoteže. Sledeći ovu ideju metalni elementi u beloj boji uvedeni su u enterijer kao kontradiktornost rustikalnoj gruboj staroj drvenoj strukturi.

Novododati elementi ne samo da poboljšavaju prirodan izgled stare strukture, već unose i svetlost u unutrašnji prostor.

Da bi se obezbedio pristup drugom spratu bilo je potrebno dodati novo stepenište i ograde; Foto: Todor Todorov

Atmosfera harmonije i ravnoteže

Nežna metalna „čipka“ je korišćena kako bi se dogradio izgled ograda i asketskog nameštaja. Objekat nudi sigurnost i funkcionalnost, a istovremeno posetiocu omogućava da i dalje vidi autentične elemente.

Igra starog i novog, tamnog i svetlog, „čistog“ i „prljavog“ stvara posebnu atmosferu harmonije i ravnoteže u odnosu na autentični duh mesta.

Kao konačan rezultat dobijen je hibridni prostor koji je uspeo da zadrži svoj jedinstveni i originalni karakter, ali i da zadovolji sve savremene potrebe novododate funkcije.

Metalni elementi u beloj boji kao kontradiktornost rustikalnoj drvenoj strukturi; Foto: Todor Todorov

Trospratnoj drvenoj konstrukciji bilo je potrebno strukturalno ojačanje kako bi se obezbedila sigurnost za posetioce.

Trospratnoj drvenoj konstrukciji, koja je zadržana u svom prvobitnom stanju, bilo je potrebno strukturalno ojačanje kako bi se obezbedila sigurnost za posetioce.

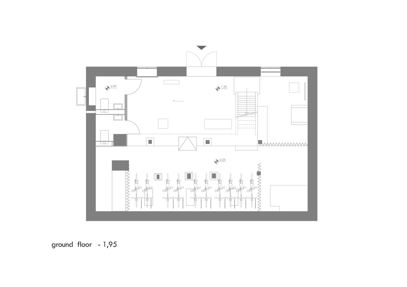
Nakon preuređenja zgrade mlina, u prizemlje su smešteni toaleti za posetioce, skladišni i rent-a-bajk prostor.

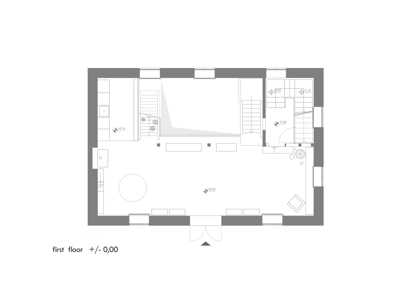
Na prvom spratu se, osim glavnog ulaza na jugu, nalaze i informativni pult, čajna kuhinja i zajednički prostor, koji je sastajalište za sve generacije.

Prostori su ojačani iznutra sa aluminijumskim prozorima sa duplim staklom; Foto: Todor Todorov

Dodatno ojačanje aluminijumskim prozorima

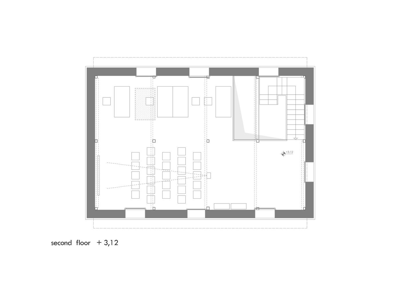
Na drugom spratu prostor je organizovan kao multifunkcionalan, služeći za različite vrste kulturnih događaja, poput prezentacija, obuka, radionica, predavanja, javnih diskusija, ali i kao kovorking prostor.

Da bi se obezbedio pristup drugom spratu bilo je potrebno dodati novo stepenište i ograde.

Takođe, bilo je potrebno obnoviti stare drvene prostore u njihovom originalnom rasporedu, a oni su dodatno ojačani iznutra sa aluminijumskim prozorima sa duplim staklom.

Drugi sprat organizovan je kao multifunkcionalni prostor; Foto: Todor Todorov

Grafički prilozi

Foto-galerija

Novi kulturni centar u bugarskom selu Karpačevu; Foto: Todor Todorov
Novi kulturni centar u bugarskom selu Karpačevu; Foto: Todor Todorov

Faktografija

  • naziv objekta: Kulturni centar
  • mesto: Karpačevo, Bugarska
  • autori projekta: Studio Nada
  • godina projektovanja: 2019.
  • godina izgradnje: 2022.
  • površina: 285 m2
  • spratnost: P+2
  • fotografije: Todor Todorov

Izabrali smo za vas…

Postani deo Gradnja zajednice

Najnovije vesti s našeg portala svakog petka u vašem sandučetu.

Dizajn enterijera

Srodni tekstovi

1 komentar

  1. miki

    fantastično!

Ostavite odgovor

Obavezna polja *