Na prostoru bivše industrije na Voždovcu planirana izgradnja stambenog kompleksa
Kompanija „Grabo gradnja“ iz Novog Sada planira u Beranskoj ulici izgradnju kompleksa sa 110 stambenih jedinica, ukupne BGRP od skoro 10.000 kvadrata.
Nakon najave izgradnje stambeno-poslovnog objekta od 10.000 m2 između ulica Vojvode Stepe i Druge Srpske armije, kao i sedmospratnice sa 73 stana u Ustaničkoj ulici, Opština Voždovac mogla bi u narednom periodu da dobije još novih kvadrata namenjenih stanovanju.
Tako je Sekretarijat za urbanizam i građevinske poslove Grada Beograda oglasio javnu prezentaciju Urbanističkog projekta za izgradnju stambenog kompleksa u ulici Beranska broj 60, odnosno na prostoru bivše mesne industrije pored voždovačke toplane.
Nosilac izrade projekta je Privredno društvo „Urban Hub” d.o.o. iz Aranđelovca, koje je zahtev za potvrđivanje Urbanističkog projekta podnelo u ime investitora „Grabo gradnja” d.o.o. iz Novog Sada, dok je projektantski posao poveren firmi “Giotto” d.o.o. iz Beograda.
Pročitajte još na Gradnja.rs:
- Na Zvezdari planirana ugaona zgrada sa 24 stana i 31 parking mestom
- Velika građevinska aktivnost u Bloku 64: Planirana nova zgrada sa 158 stanova

Uklanjaju se zapušteni objekti
Na KP br.7976/2 (slika gore) izgrađeni su objekti u službi prethodne poslovne delatnosti, odnosno klanice, koja je prestala sa radom pre oko 20 godina. Objekti su napušteni, zapušteni i planira se njihovo uklanjanje.
Teren je zaravnjen u okruženju postojećih objekata, dok je na ostalim delovima parcele neuređen, sa promenljivim nagibom.
Na prostoru predmetne lokacije nema zaštićenih prirodnih dobara, flore i faune, kao ni nepokretnih kulturnih dobara.

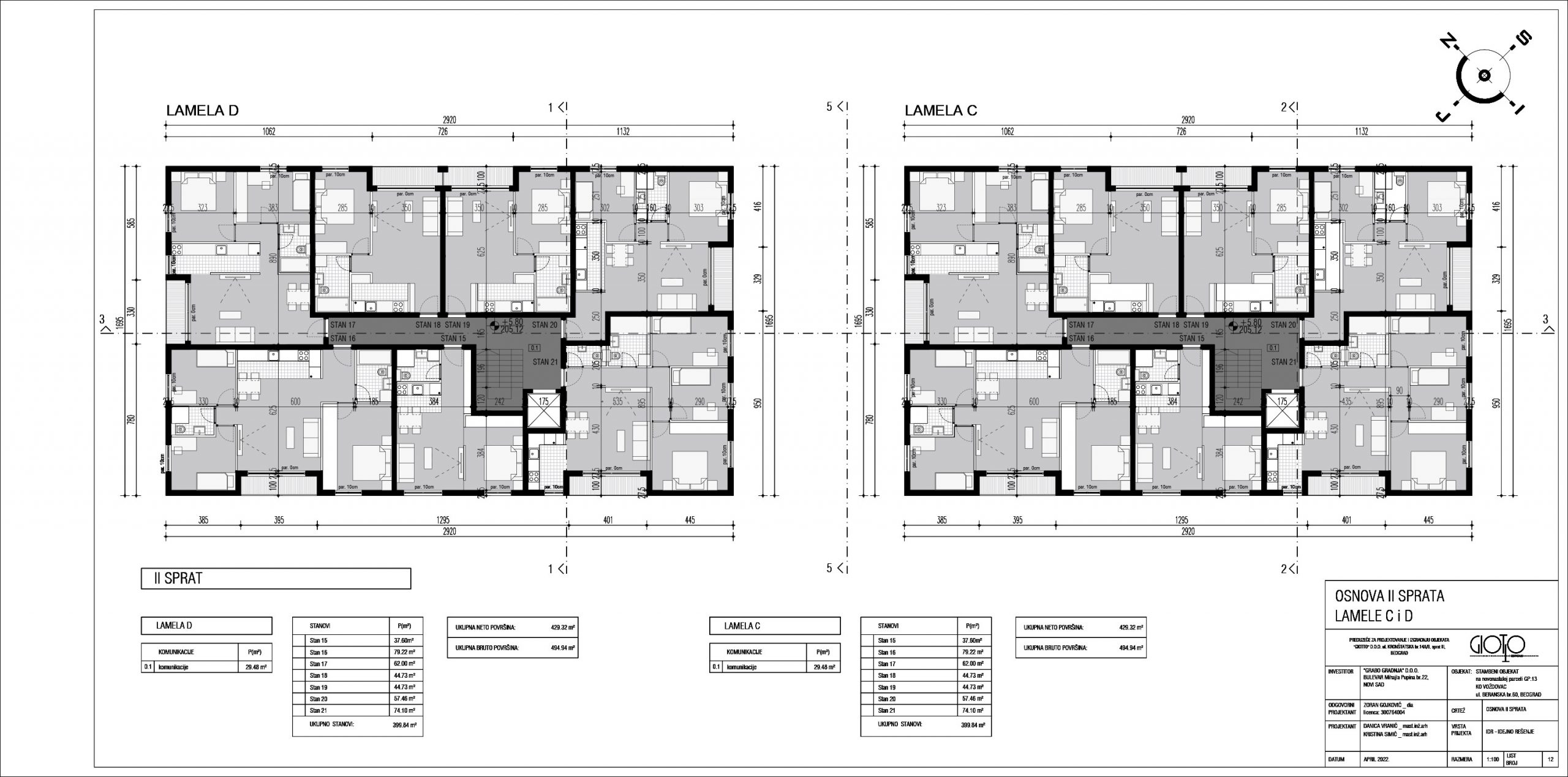
Ukupna bruto površina podzemnih i nadzemnih etaža lamela A, B, C i D iznosi 9.886,02 kvadratna metra.
Prema projektnoj dokumentaciji, na parceli povšine 5.645 m2 predviđena su tri stambena objekta spratnosti Po(Su)+P+2+Pk.
Ukupna bruto površina podzemnih i nadzemnih etaža lamela A, B, C i D iznosi 9.886,02 kvadratna metra, od čega na nadzemni deo otpada 7.901,52 m2, a na podzemni 1.984,50 m2.
Objekat sa ulazima A i B je konstruktivno jedinstven, a funkcionalno podeljen na dva ulaza – ulaz A sa 28 stanova i ulaz B sa 26 stanova. U podrumu je formirana garaža srednje veličine sa ukupno 38 parking mesta.
Objekti lamela C i lamela D su zasebni sa po 28 stanova i srednjom garažom sa po 20 garažnih mesta, dok je pristup garažama omogućen preko rampi.

Formiranje novih zelenih površina
Na samoj parceli planirano je parkiranje za 43 vozila, a omogućen je i pristup vatrogasnog vozila unutar parcele.
Unutar parcele između objekata formirane su interne kolsko-pešačke saobraćajnice, slobodne i zelene površine u javnom korišćenju. Stambeni ulazi u lamele A, B, C i D su iz unutrašnjeg dela parcele formiranog u osovini između objekata.
Pešački pristup objektima omogućen je sa Beranske ulice, kao i sa unutrašnje pristupne saobraćajnice, a projektom je planirano i reprezentativno uređenje slobodnih i zelenih površina.
„U tom smislu, planirano je formiranje novih zelenih površina i kvalitetnih višespratnih zasada uz očuvanje postojeće kvalitetne vegetacije kroz novoplanirano rešenje gde god je to moguće“ – navodi se u projektnoj dokumentaciji.

Na javnom uvidu do 7. jula
Javna prezentacija obaviće se u zgradi Gradske uprave Grada Beograda, u Ulici 27. marta br. 43-45, od 29. juna do 7. jula 2022. godine, svakog radnog dana od 9 do 15 časova.
Zainteresovana lica mogu tokom javne prezentacije da izvrše uvid u urbanistički projekat, kao i da svoje primedbe i sugestije na planirana rešenja u pisanoj formi dostave Sekretarijatu za urbanizam i građevinske poslove, najkasnije do 7. jula 2022. godine.






