Brick Box u Zrenjaninu: Kuća ušuškana u recikliranu švapsku opeku
Želja investitora kuće od 400 kvadrata bila je da se koristi autohtoni materijal, opeka, i to stara „švapska“ opeka koja je sačuvana sa rušenja starog objekta.
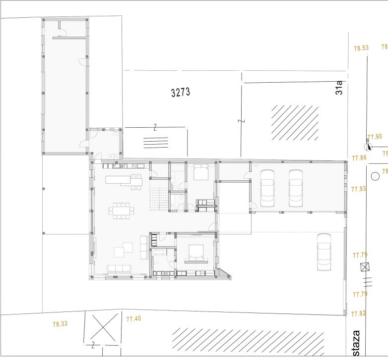
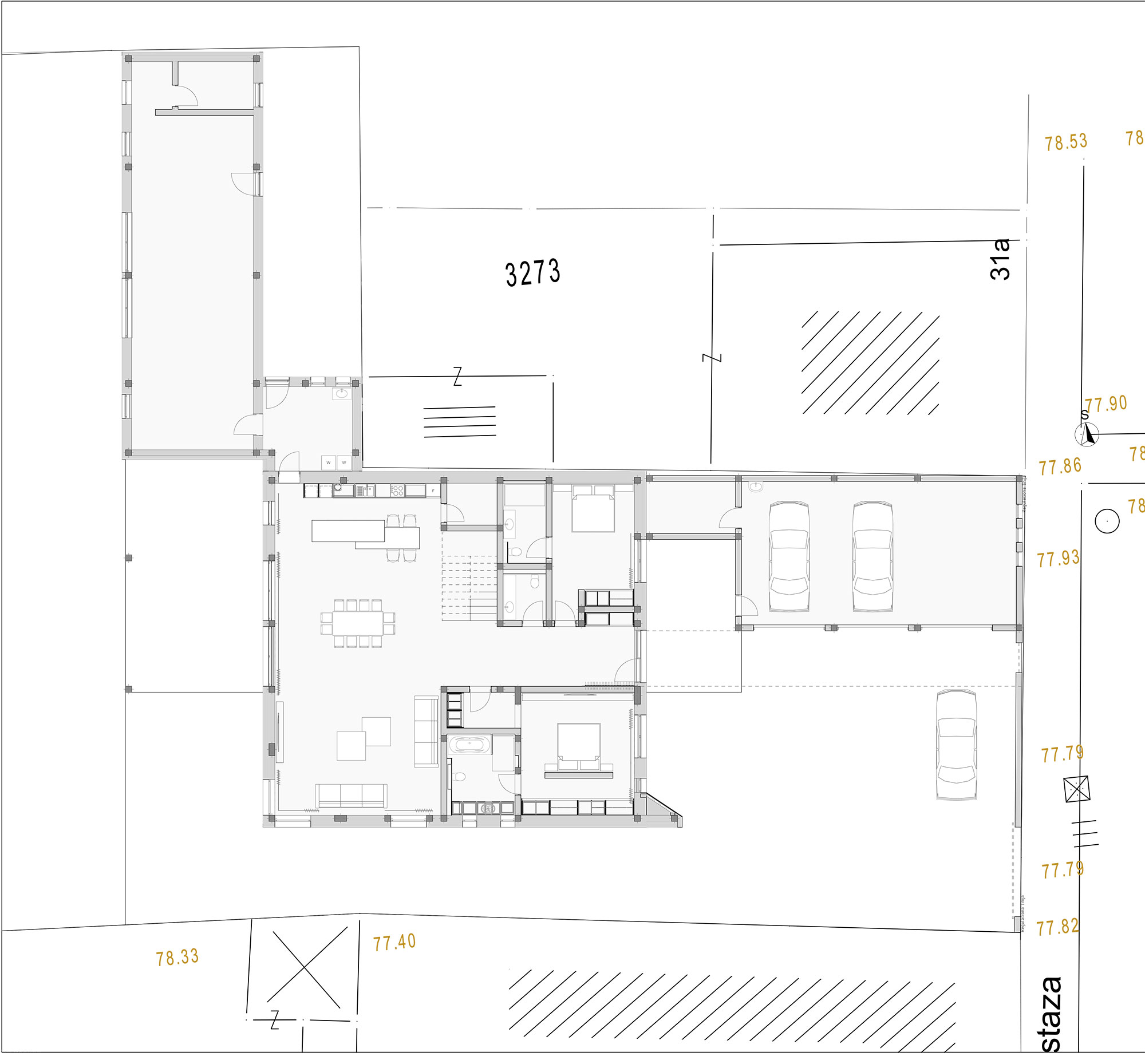
U samom srcu Banata, kraj starog korita reke Begej, ove godine nikla je kuća od nazvana Brick Box, koja svojim imenom, ali i materijalizacijom odaje počast jednom od najkorišćenijih građevinskih materijala.
Projektovan od strane tima arhitekata koji čine Milica Kovač, Igor Kovač i Aleksandra Jevtić, novi objekat tako integriše i autentičnu „švapsku“ opeku koja je sačuvana od prethodnog objekta.
Pročitajte još na Gradnja.rs:
- Klupa na šoru i uramljena fasada za porodičnu vilu u Bačkoj Palanci
- Kuća na litici u Novim Banovcima s pogledom na Dunav i banatske ravnice

Dnevni boravak kao srce objekta
Projektni zadatak investitora je bio isprojektovati objekat koji slavi porodicu, koji na prvo mesto stavlja svoje korisnike, pruža im kako individualni prostor, tako i zajednički prostor sa mogućnošću okupljanja velikog broja korisnika.
S obzirom na to da se lokacija nalazi na dosta prometnom mestu, jedan od zahteva je bio i da se obezbede intima i mir.
“Kako je parcela na kojoj je objekat građen velika, ove zahteve nije bilo teško ispuniti” – kažu za Gradnju zrenjaninski arhitekti.

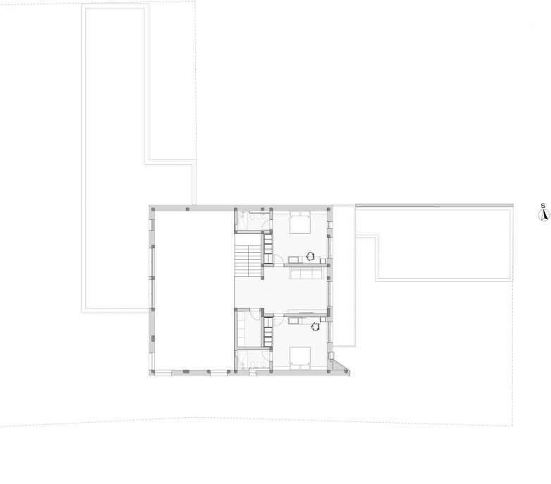
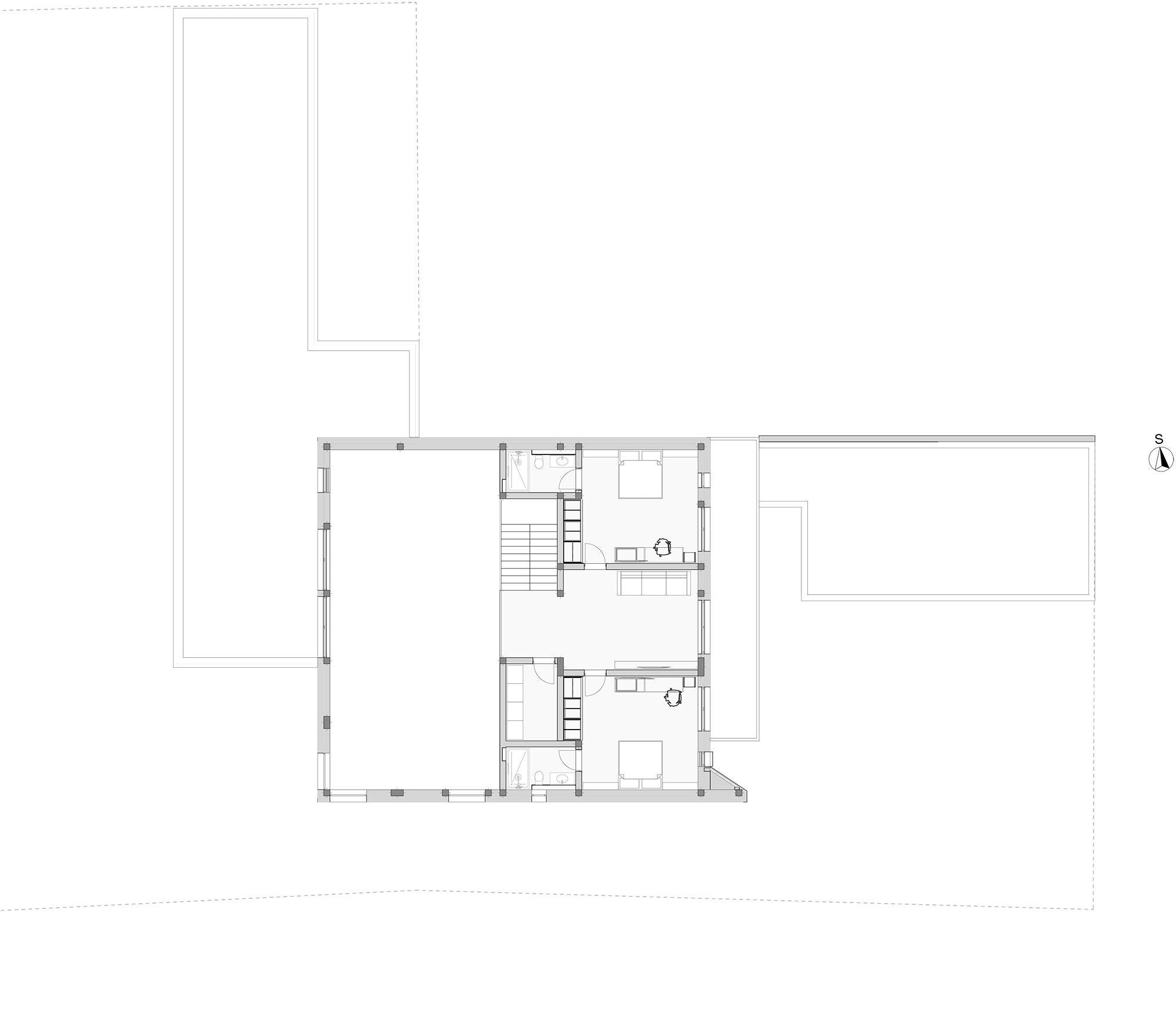
Dnevni boravak se proteže kroz dve spratne visine i čini “srce” objekta, ognjište koje okuplja celu porodicu.
Upravo prostor koji je primeren svojim korisnicima je nešto što, prema mišljenju autora, izdvaja ovu kuću od 400 kvadrata u odnosu na uobičajene projekte u današnje vreme, gde se uglavnom gleda da se u što manjem prostoru smesti veliki broj sadržaja.
Iako su funkcionalni sadržaji jasno odvojeni i nezavisni, sve je povezano sa centralnim dnevnim boravkom koji se proteže kroz dve spratne visine i čini “srce” objekta, ognjište koje okuplja celu porodicu.

Opeka u frontalnom delu svojom formom i uklapanjem daje karakteristični oblikovni element i tako postaje glavni vizuelni motiv.
Forma, a samim tim i konstrukcija objekta je vrlo jednostavna. Tri kubične forme, jednostavnih ravnih linija, sa jasno izraženom fenestracijom, koje se međusobno uklapaju i spajaju različite funkcionalne celine u jedinstvenu strukturu, odredile su formu objekta.
“Na ovaj način se gradacijom prelazi iz jednog haotičnog i dimaničnog urbanog prostora u zeleni, mirni prostor porodične kuće” – kažu naši sagovornici.
Osim funkcionalnog koncepta, koji je odredio formu objekta, akcenat je stavljen i na materijalizaciju. Želja investitora bila je da se koristi autohtoni materijal, opeka, i to stara „švapska“ opeka koja je sačuvana sa rušenja starog objekta.
“Specifična je primena te opeke u frontalnom delu objekta, koja svojom formom i uklapanjem daje karakteristični oblikovni element i tako postaje glavni vizuelni motiv” – navode autori.
Odustajanje od prvobitne ideje
Objekat koji se nalazio na parceli je bio objekat u nizu, sa ujednačenim uličnim vencem.
“Prva ideja je bila da se objekat ponovi na istom mestu, međutim kako je ulica u kojoj se nalazi izuzetno frekventna i objekat se nalazi u neposrednoj blizini velike raskrsnice, odustalo se od te ideje, jer ne bi mogli da ispunimo osnovni projektni zadatak investitora” – kažu arhitekte.
Veličina parcele je nametnula povlačenje stambenog dela objekta sa regulacije, ali je zadržana fasadna ravan objekta postavljanjem garaža i ulične ograde na regulaciju ulice, čime se ne stiče utisak da je postojeći niz prekinut.
“Na taj način je formirana tampon zona prema spavaćim sobama, a preko dnevnog boravka i velike terase prema zelenoj oazi dvorišta je ostvarena korespodencija unutrašnjeg i spoljašnjeg prostora, brišući jasnu granicu među njima” – dodaju oni.

Švapska opeka za dodatnu vezu s lokacijom
Kuća je građena kao kombinacija masivnog i skeletnog sistema. Fasadni sendvič zidovi su formirani primenom Ytong blokova, kamene vune i autentične „švapske cigle“ koja je sačuvana od prethodnog objekta, što dodatno doprinosi povezivanju sa postojećom lokacijom.
Stolarija je aluminijumska sa troslojnim staklom sa ispunom argonom. Kuća je opremljena sistemom grejanja, hlađenja putem toplotne pumpe, a zagrevanje tople vode je preko solarnih kolektora. Grejanje je podno, a hlađenje putem plafonskih jedinica.
Grejanje, hlađenje, rasveta, roletne, zavese i alarm su objedinjeni centralnim automatizovanim sistemom, čime je dodatno podignut komfor, a troškovi eksploatacije smanjeni na minimum.
“Trenutno je u procesu postavljanje sistema solarnih fotonaponskih kolektora, koji treba da obezbede potpunu energetsku nezavisnost objekta” – kažu arhitekti.

Mirenje kontrastnih materijala
Kada je pak reč o fasadi, fasadna opeka kao prirodni, topli završni materijal kombinovana je sa hladnom i „sterilnom“ demit fasadom.
“Povezivanje ova dva materijala je karakteristično u frontalnom, fasadnom delu objekta, gde je izbačen jedan bočni zid i atika, koji se zatim utapaju u fasadu i mire ova dva kontrastna materijala” – objašnjavaju projektanti.
Na taj način dobijena je neobična, karakteristična forma objekta, koja formira dijagonalnu liniju na fasadi, podržanu kosinom krovne kućice za izlaz na ravnu krovnu terasu, odakle se pruža prelep pogled na karakterističnu panoramu banatskog grada, odakle se vide sve crkve i ostali reperi koji daju karakter gradu.
Što se tiče izvođenja, arhitekti napominju da je postojala problematika oko izrade tavanice na visini od 7,00 m gabarita 7,00 x 14,00 m.
“Sve vreme izvođenja je korišćena dupla oplata, odnosno formirana je ravan u nivou tavanice sprata sa koje su se vršili radovi u gornjoj zoni ovog prostora” – kažu naši sagovornici.

Sve vreme izvođenja je korišćena dupla oplata, odnosno formirana je ravan u nivou tavanice sprata sa koje su se vršili radovi u gornjoj zoni prostora.
U nekim momentima je ta konstrukcija morala biti uklanjana pa ponovo vraćana, što je dodatno produžavalo rokove i komplikovalo izvođenje radova. Takođe, veliki izazov je bio izrada fasadnog sendvič zida od starog formata opeke.
“Osim tehničkih izazova, sve ostalo je išlo glatko, naročito što je investitor imao puno poverenje, prihvatajući predloge i sugestije” – kažu autori arhitekture.
Nenametljiv enterijer
Enterijer kuće, koji je još uvek u izradi, veoma je jednostavan, bez nepotrebnih ukrasa, dekoracija i maskiranja. Nameštaj je minimalistički sa akcentom na dnevnoj zoni, gde je smeštena velika garnitura, prostran trpezarijski sto za 12 osoba i kuhinja koja je se ostrvom distancira od ostatka prostora, a u isto vreme čini njegov sastavni deo.
Lepota ovog prostora je, kako objašnavaju iz projektantskog tima, u njegovoj prostranosti i jednostavnosti.
“Dobro osvetljenje, ozvučenje i projektor koji ovaj prostor pretvara u bioskopsku salu su ono što daje smisao ovom prostoru” – navode naši sagovornici i dodaju:
“Veličina prostora koji pruža komoditet svojim korisnicima, funkcionalnost i efikasnost je ono što daje lepotu, smisao i identitet ovoj kući, bez bespotrebnog dodatnog maskiranja trendovskim detaljima”.

Travnjak koji nema kraj
Dvorište je u prednjem delu objekta u potpunosti popločano, kako bi se omogućio pristup garažama, dok je zadnji deo dvorišta u potpunosti ozelenjen.
Veliki travnjak, koji kao da nema kraj, jer se iza parcele nalazi staro korito reke Begej, pruža osećaj kao da se nalazite van naseljenog mesta.
Trenutno je u izradi projekat ozelenjavanja, ali i dalje će, naglašavaju na kraju arhitekte, primarno ostati zastupljen koncept čistoće i jednostavnosti prostora.
Grafički prilozi
Foto-galerija















Faktografija
Brick Box
Zrenjanin
privatno lice
Milica Kovač, dia, Igor Kovač, dia i Aleksandra Jevtić, dia
2021.
2022.
400 m2
P+1
Igor Ripak



Strasno ruzan objekat. Ko to moze ohladiti i zagrejati? Boje se ne slazu. Izgleda kao kutija.
Kuca je prelepa, projekat je savrsen, upotreba stare cigle je apsolutno fantasticna… Ali enterijer je ocajan, klupski stocici su za sobu od 15 kvadrata a ne za ovoliki prostor. Enterijer hladan i prazan poput zatvora. Ne, ovo nije sofisticirani i elegantni minimalizam vec sterilna praznina sa komadima namestaja cija velicina nije u proporciji sa prostorom… A tek ona jedna usamljena saksija sa biljkom izgubljenom u praznini…izaziva neprijatan osecaj
I moj prvi utisak je bio da izgleda kao salon nameštaja koji još treba da se popuni…
Zaista neshvatljivo.
Kuća spolja deluje kao hotel a ni unutra nije ništa „kućevnija“. Enterijer nepostojeći…nedovršen, nabacan, bez ideje. Svašta objavljujete u poslednje vreme
Ovo bi mogla biti odlična biblioteka.