Iglo za 21. vek: Ručno pravljena drvena kućica nudi luksuz u samo 20 kvadrata
Bungalov ima spavaću sobu, kuhinju, dnevni boravak i potpuno funkcionalno kupatilo, a teži ukupno 3,3 tone. Cena nije mala ali je opravdana za ovaj nivo opreme.
Ako ne želite da se odreknete luksuza, a voleli biste da provodite odmore u bunglaovu onda je ovo savršeno rešenje za vas.
Naime, u asortimanu Iglucrafta, kompanije iz Litvanije koja se bavi proizvodnjom ručno izrađenih luksuznih sauna i drvenih kućica, nalazi se Model 4 koji je privukao našu pažnju svojim dizajnom i opremljenošću.
Pročitajte još na Gradnja.rs:

Svaka kućica je pažljivo izrađena od strane stručnih majstora, koji koriste tradicionalne tehnike izrade koje se prenose s generacije na generaciju.
Kompanija Iglucraft je osnovana 2013. godine i od tada je stekla reputaciju u industriji luksuznih drvenih kućica, te se njihovi proizvodi danas mogu naći širom sveta, od Skandinavije do Sjedinjenih Američkih Država.
Oni koriste visokokvalitetno drvo, mahom borovo, koje je izuzetno izdržljivo i otporno na vremenske uslove. Svaka kućica je pažljivo izrađena od strane stručnih majstora, koji koriste tradicionalne tehnike izrade koje se prenose s generacije na generaciju.
Osim toga, Iglucraft se ponosi i svojim ekološkim pristupom. Sve kućice su energetski efikasne i koriste prirodne materijale kako bi smanjile negativan uticaj na životnu sredinu. Drvo koje se koristi za njihovu izradu dolazi iz održivih izvora i pažljivo se odabira kako bi se osigurali dugotrajnost i kvalitet.

Mogućnost prilagođavanja individualnim potrebama
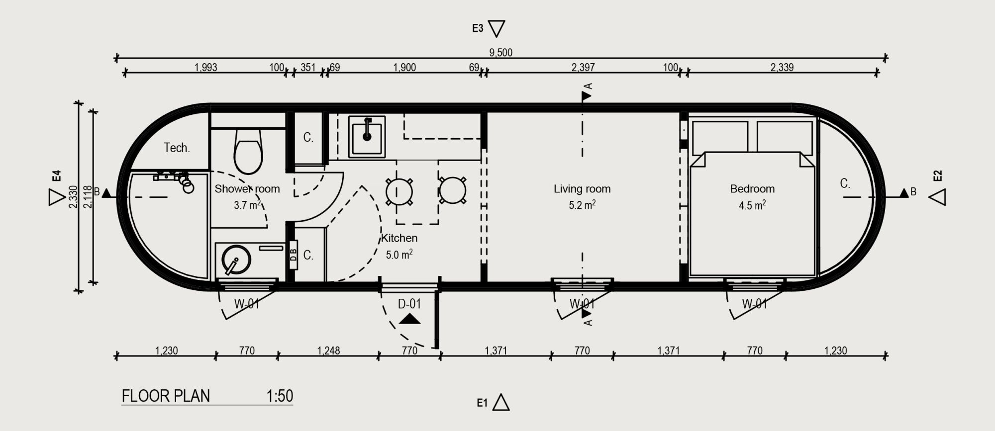
Model 4 nudi udobnu spavaću sobu sa pogledom direktno iz bračnog kreveta, gde mogu da spavaju do 2 odrasle osobe i mala deca, kuhinju sa pametnim korišćenjem prostora, dnevni boravak i potpuno moderno kupatilo, a teži 3.300 kilograma.
Kuća zauzima bruto građevinsku površinu od 21,1 m², dok je u unutrašnjosti korisnicima na raspolaganju 9,29 metara dužine, 2,14 m visine i 2,1 m širine, sa korisnom površinom poda od 18,4 kvadratnih metara.
Kućice se mogu prilagoditi individualnim potrebama i željama kupaca, a u standardnu ponudu ulaze konstrukcija drvenog okvira, 3 sloja šindre od smrče u spoljašnjosti, 1 sloj aspen šindre u unutrašnjosti, potpuna izolacija i zidne drvene obloge od smreke.

Model 4 opremljen je ventilacijom, bojlerom za vodu od 45 litara, električnim podnim grejanjem, LED osvetljenjem…
U osnovnu ponudu ulaze i prozori i vrata sa duplim staklom i drvenim okvirima, laminat na podu, tende za prozor u kupatilu i spavaćem delu, kao i ostava.
Od nameštaja tu su kuhinjski plakari, kuhinjski sto i stolice na izvlačenje, kupatilo sa sanitarnom opremom, ormar sa ogledalom i ugrađeni krevet (za dušek dimenzija 160 x 200 cm).
Što se tiče tehničkih standarda, Model 4 opremljen je ventilacijom, bojlerom za vodu od 45 litara, električnim podnim grejanjem, LED osvetljenjem koje se može zatamniti i multisenzorskim požarnim alarmom.

4 različite boje u eksterijeru
Kao deo ekstra ponude, u bunglalov se mogu ugraditi radijator, klima uređaj, prirodne unutrašnje šindre, drveni parket, zavese, mreža za komarce, mini-frižider, kao i dodatna izolacija.
U eksterijeru, Model 4 dolazi u 4 različite standardne boje – kesten, lešnik, ebonovina i siva, dok standardni enterijer dolazi u beloj završnoj obradi.
Na kraju, sigurno će vas zanimati i cena ove kućice, a ona za standardni model iznosi 57.900 evra – bez PDV-a i troškova transporta.













Hoće i milijarderi živjeti u ovakvim kućicama?
stvarno je i preluksuzna ova kucica, a tek komotna