K3 – Green Escape: Nova poslovna oaza na Novom Beogradu
Arhitektonsko obličje zgrade K3 predstavlja savremenu reinterpretaciju rane moderne i Bauhaus stila, čime se nova intervencija skladno nadovezuje na bogato modernističko nasleđe Novog Beograda.
U poslednjih par godina Novi Beograd prolazi kroz fazu radikalne transformacije svog oblika i sadržaja. Novi poslovni kompleks Green Escape biće izgrađen u Bloku 51 na Bežanijskoj kosi, na tri parcele namenjene poslovnim i komercijalnim sadržajima.
Naručilac projekta je beogradski Imel Group, a autori projektnog rešenja su Anja Ivana Milić i Miloš Petrović iz kompanije Arhi.pro.
Projektantska zamisao je da zelenilo postane deo svakodnevne vizure kako samih korisnika tako i prolaznika.
Green Escape se nalazi na zapadnom ulazu u Novi Beograd, neposredno u zoni prvog gradskog izlaza na auto-put. Lokacija je naslonjena na stambeno naselje od 40.000 stanovnika u širem okruženju Novog Beograda, na udaljenosti od 5,5 km od centra starog dela Beograda. Prema Planu detaljne regulacije, u ovoj zoni predviđena je izgradnja višenamenskih poslovnih objekata ukupne površine od 65.000 kvadratnih metara.
Različiti programski sadržaji
Sva tri objekta u sklopu Green Escape kompleksa projektovana su kao savremeni, tehnološki napredni i oblikovno atraktivni poslovni prostori. Objekti u okviru svojih kapaciteta mogu fleksibilno prihvatiti različiti programski sadržaj u okviru komercijalne delatnosti, te sve specifične zahteve budućih korisnika.

Uklapanje u nasleđe internacionalne moderne
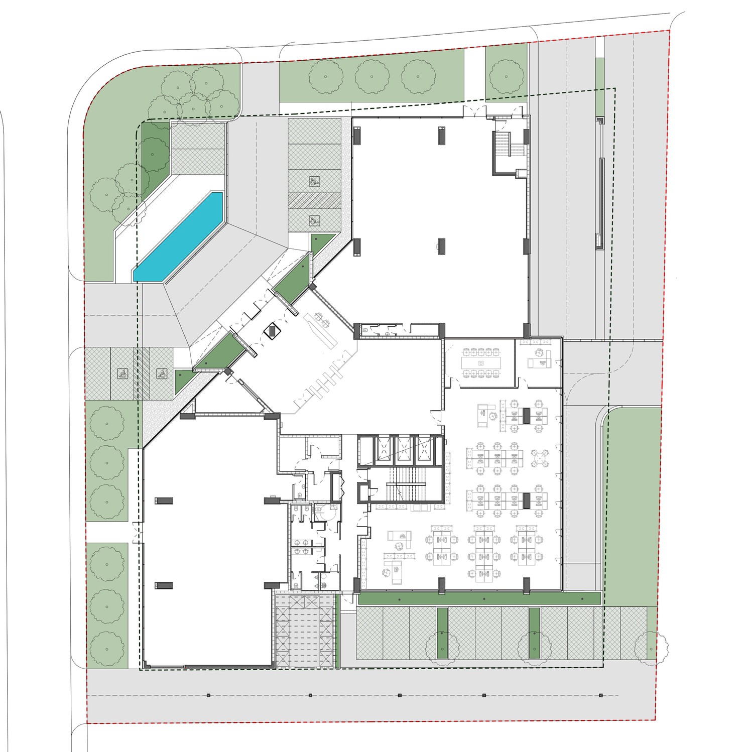
Prva zgrada koja niče u Green Escape poslovnom kompleksu je na Parceli K3. Arhitektonsko obličje zgrade K3 predstavlja savremenu reinterpretaciju rane moderne i Bauhaus stila, čime se nova intervencija skladno nadovezuje na bogato modernističko nasleđe Novog Beograda.
Zgradu K3 karakteriše prepoznatljivi vizuelni identitet u vidu smene punih belih i staklenih horizontala sa tamnom bojom prozora i bravarskih elemenata. Iskorak iz uravnoteženog ritma ostvaren je dodatkom naizmeničnih punih belih polja i dekorativnih crnih bravarskih elemenata koji u sebi nose žardinjere sa ukrasnim rastinjem. Projektantska zamisao je da zelenilo postane deo svakodnevne vizure kako samih korisnika tako i prolaznika.
Radno okruženje u zelenilu
Obe bočne prilazne fasade naglašene su preplitanjem belih površina i „zelenog zida“. Ovi elementi prožimaju bazičnu formu i povezuju bele horizontale dajući savremeni izgled objektu. Paralelno sa tim, naglašava se „zeleni“ aspekt objekta i budućeg planiranog kompleksa u okruženju. Na nivou kompleksa, korekcija nedostataka modernističkog urbanizma vrši se kroz povratak alternativnim modelima urbanog razvoja utemeljenim u obrascima tradicionalnog grada.
Izlomljenim oblikom objekta formira se pjaceta kao centralni prostorni motiv bloka ali i šireg okruženja.
Princip povratka morfologiji tradicionalnog grada primenjen je na izlomljeni oblik objekta koji formira pjacetu kao centralni prostorni motiv bloka ali i šireg okruženja. Pjaceta kao težište događaja stvara prostornu dinamiku uređene forme i oslikava savremeni duh poslovnih objekata koje treba da karakteriše uređenost i sigurnost sa jedne i dinamika, čovekomernost i prilagodljivost sa druge strane.
Primena BIM softverskih alata
Kompanija Arhi.pro razradu objekta K3 sprovodi u potpunosti primenom BIM radnih procedura, a kroz integraciju svih inžinjerskih struka u digitalnom okruženju. Postmoderan po svom obliku i sadržaju, objekat K3 savremen je ne samo po naprednim tehnologijama svoje opreme, već i po načinu po kome je projektovan i po kom će biti sagrađen.
Presek

Faktografija
- autori: Anja Ivana Milić i Miloš Petrović, Arhi.pro
- klijent: Imel Group
- godina: 2019.
- lokacija: Blok 51 (Novi Beograd)
- površina: 14.623 m2
- spratnost: P+4+Pe
- parking: 130 parking mesta







Zainteresovan sam za prostor od 140 do 193m2 ako da , molim vas za obracun cene sa add- faktor, Services , charges, parking,…