Poslovna zgrada umesto parkinga: U Bloku 41 planiran objekat od 13.500 kvadrata
Firma iz Čačka planira na Novom Beogradu izgradnju osmospratnice sa open space poslovnim prostorom na spratovima i 104 parking mesta u podzemnoj garaži.
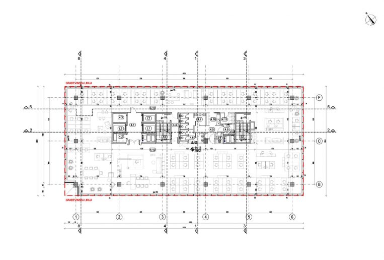
Na sajtu Grada Beograda javnosti je ove sedmice predstavljen urbanistički projekat za izgradnju poslovnog objekta, spratnosti 4Po+P+8, u Ulici Milutina Milankovića na Novom Beogradu, koja se prostire od ulice Tošin bunar do raskrsnice sa ulicom Milentija Popovića.
Nosilac izrade projekta je „MN group” d.o.o. iz Beograda, investitor je firma „Export-Import Auto Čačak” iz Čačka, dok idejno rešenje potpisuje „Structura Concept“ d.o.o. iz Beograda, sa Jelenom Đuričić, dia, kao odgovornim projektantom.
Pročitajte još na Gradnja.rs:
- Intenziviranje stanogradnje u Zemunu: Zgrada sa 24 stana planirana u Ugrinovačkoj ulici
- Na Novom Beogradu planiran kompleks Newport od 50.000 m2

Na parceli trenutno parking prostor
Lokacija se nalazi u južnom delu Bloka 41 na teritoriji KO Novi Beograd. Parcela je približnih je dimenzija 60 x 32 m, površine 1.908 kvadratnih metara.
Na predmetnoj parceli se trenutno nalazi parking prostor namenjen poslovnom objektu na susednoj katastarskoj parceli.
Lokacija je na jugozapadu orijentisana ka trasi železničke pruge Beograd – Novi Sad i Bulevaru heroja sa Košara.
U neposrednom okruženju planiranog objekta, u Bloku 41, nalaze se moderni poslovni kompleksi.

Planirana BGRP 13.470 kvadrata
Planirana ukupna bruto razvijena građevinska površina objekta iznosi 13.470, m², od čega na nadzemni deo otpada 8.230 m², a na podzemni preostalih 5.240 kvadratnih metara.
U prizemlju je planiran hol sa info-pultom, glavni ulaz u objekat i dve nezavisne poslovne jedinice.
Ulazi se ostvaruju direktno spolja, dok se preko glavnog ulaza i hola ostvaruje veza sa ostalim etažama poslovanja.

Na spratovima je predviđen poslovni prostor koji je projektovan po principu „open space“.
Na spratovima je predviđen poslovni prostor koji je projektovan po principu „open space“ i fleksibilan je za podelu prema potrebama korisnika. Vertikalne komunikacije čine 3 lifta.
Oko funkcionalnog jezgra u unutrašnjosti moguća je kružna veza, a iz koridora se direktno pristupa poslovnom prostoru.
Na ovaj način je omogućena orijentacija kancelarija duž cele staklene fasade sa svih strana, navedeno je u urbanističkoj dokumentaciji.

104 parking mesta u garaži
Objekat ima karakterističan oblik dobijen izrezom fasadnih ravni čime je naglašen ulaz u objekat.
Iznad osmog sprata, na krovu objekta planiran je manji zatvoren deo prostora za smeštaj tehnike, a ostalu površinu čini neprohodan krov.
U četiri podzemna nivoa projektovana je garaža sa 7 polunivoa i 104 parking mesta.
Grafički prilozi















Imate li vi imalo kritičkog pogleda na izgradnju i urbanizam ili služite kao portal podrške za pranje novca poreklom iz kriminalnih aktivnosti? Na primer, na NBG-u je već pakao za parkiranje, a ova zgrada ne doprinosi rešenju tog problema, već ga uvećava. Da li svaki kvadrat mora da bude u svrhu profita ili postoji nešto što se zove kvalitet stanovanja? Jeste li vi to učili u školama?
+1
Ili ne daj boze drvo da posade. Dno.
Projekat je na javnom uvidu. Baš ga zato i objavljujemo. Zašto ne iskoristite pravo da date svoje predloge za ovaj projekat?
Ozbiljne države su i uz trku za profitom očuvale neka građevinska pravila za minimalno normalan život.
A ironično baš mi živimo onaj najgori surovi kapitalizam kojeg je komunizam upravo i kritikovao.
Potpuno se slažem sa prethodnim komentarima. Parking prostor i parkovi su nam potrebniji nego ikad. A na ovom portalu sam više puta pročitao slične vesti o više nego kontraverznim projektima. Zato što nam je struka tako bez integriteta zato nam je ovako“ dobro“
Projekat je na javnom uvidu. Zato ga i objavljujemo. Zašto ne iskoristite pravo da date svoje predloge za ovaj projekat?
Pa upravo sam dao predlog. Ovom gradu je sve potrebnije od poslovnih i stambenih objekata. Parkinzi , šire ulice, kanalizacija, slobodan prostor između zgrada , zelene površine itd. Znate valjda osnovne principe urbanistike
I da. Lepo od vas što objavljujete komentare koji vam ne idu na ruku
ne dirajte mi conića, ruku u vatru za njega! ovo je najbolji portal u zemlji, toliko su ljudi sjajni da sve objavljuju! živela arhitektura i kritika!
jedinstven čačak style… ingenijalno! … podseča me na fenomenalnu house of dior u seoul-u, samo za siromašne