Na Čukarici u planu stambeno-poslovni kompleks od 12.500 kvadrata
Tehnicom Construction iz Beograda planira izgradnju objekta spratnosti 3Po+Pr+7+Ps, sa 80 stanova, petnaest poslovnih apartmana i osam lokala.
Sekretarijat za urbanizam i građevinske poslove grada Beograda oglasio je javnu prezentaciju urbanističkog projekta za izgradnju stambeno-poslovnog objekta u Paštrovićevoj ulici na Čukarici.
Nosilac izrade projekta je beogradska firma Bureau Cube Partners, koja je zahtev za potvrđivanje podnela u ime investitora PD Tehnicom Construction d.o.o. takođe iz Beograda.
Pročitajte još na Gradnja.rs:
- Na Vračaru planirana podzemna garaža od 11.660 kvadrata
- Evo kako će izgledati stambeni kompleks BIG Residences na Karaburmi

Javne funkcije u neposrednoj blizini
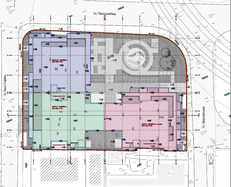
Granicom Urbanističkog projekta obuhvaćen je deo bloka između ulica Paštrovićeve, Miroslavljeve, Vase Stajića i Zrmanjske na teritoriji GO Čukarica, na regulaciji prema ulicama Paštrovićeva, Miroslavljeva i Vase Stajića u površini od 1.737,23 m2.
U kontekstu neposrednih programskih sadržaja značajnu karakteristiku neposrednog okruženja prostora predstavlja intenzivno prisustvo i kumulirana artikulacija urbane funkcije stanovanja, u kombinaciji sa komercijalnim i poslovnim delatnostima, kao i prisustvo javnih funkcija u neposrednoj blizini, kao što su Beogradski hipodrom, Policijska stanica Opština Čukarica, kao i neposredna blizina unutrašnjeg magistralnog prstena.
U saobraćajnicama koje se pružaju duž granica Urbanističkog projekta – Paštrovićeva, Vase Stajića i Miroslavljeva, ne saobraća ni jedna linija JGP-a, nema autobuskih stajališta javnog gradskog prevoza, niti postoje objekti infrastrukture u funkciji javnog gradskog prevoza.

Kompleks je oformljen kao ugaoni, jednostrano uzidani objekat organizovan kroz tri lamele.
Idejnim arhitektonskim rešenjem novoprojektovani kompleks je oformljen kao ugaoni, jednostrano uzidani objekat spratnosti 3Po+Pr+7+Ps, organizovan kroz tri lamele, sa ukupnom BGRP 12.540,07 m2 – 4.013,89 podzemno i 8.526,18 m2 nadzemno.
Lamela 1 orijentisana je ka Miroslavljevoj ulici odakle je i omogućen kolski i pešački pristup. Lamela 2 orijentisana je ka Ulici Vase Stajića sa pristupom iz iste ulice, a Lamela 3 orijentisana je ka ulicama Vase Stajića i Paštrovićevoj sa pristupom iz Vase Stajića.

Svi poslovni apartmani u Lameli 1
Prema funkcionalnim celinama objekat je organizovan kao stambeno-poslovni kompleks sastavljen od 15 poslovnih apartmana, 8 lokala i 80 stambenih jedinica različitih struktura i površina.
Svi poslovni apartmani predviđeni su u Lameli 1 – sa po 5 jedinica na prvoj, drugoj i trećoj etaži, u prizemlju će se naći tri lokala, dok je od četvrtog do povučenog sprata projektovano 20 stanova – po 5 na etažama 4–6, tri na sedmom i dve na povučenom spratu.
U ostale dve lamele planirano je po 30 stambenih jedinica, po 4 stana na etažama 1–7, kao i po dva na povučenom spratu, dok će se u prizemlju naći dva (Lamela 2), odnosno tri lokala (Lamela 3).
Garaža je projektovana na tri podzemne etaže, od kojih se svaka sastoji od dva polunivoa.
Podzemni deo planiranog objekta projektovan je u tri podzemne etaže sa kolskim pristupima iz ulica Vase Stajića i Miroslavljeve.
Podrumskoj etaži -1 pristupa se iz ulica Vase Stajića i Miroslavljeve, preko dvosmernih grejanih kolskih rampi širine 5,60m, čiji je pad 15%, a kojima se savladava visinska razlika od 1,69 m iz Miroslavljeve ulice, odnosno 2,30 m iz Ulice Vase Stajića.
Garaža je projektovana na tri podzemne etaže, od kojih se svaka sastoji od dva polunivoa i ima obezbeđene neophodne tehničke prostorije.
Parkiranje za 120 vozila
Pored sistema kolskih rampi sa po dve trake, vertikalna komunikacija među podzemnim etažama omogućena je preko 3 jezgra sa nadzemnim etažama do nivoa -3 i četiri jezgra na nivoima -2 i -1.
U okviru podzemnih etaža omogućeno je parkiranje 120 automobila, a u okviru toga je ostvareno je 8 garažnih mesta za potrebe lica sa posebnim potrebama.
Kolski pristupi kompleksu ostvareni su sa jugoistočne strane iz Miroslavljeve ulice i sa severozapadne strane iz Ulice Vase Stajića.
Za ozelenjavanje su predviđeni travnjaci, cvetne i žbunaste vrste prilagodljive na lokalne i stvorene uslove sredine.
Slobodne površine organizovane su kroz sistem krovnih vrtova, zelenih nezastrtih i zelenih zastrtih površina, kao i adekvatnih kolskih i pešačkih popločanih površina, uz primenu eksterijerskog mobilijara visokog kvaliteta, savremenog tehnološkog nivoa opremljenosti i primenjenog dizajna.
Krovni vrt je intenzivnog karaktera i za njegovo formiranje obezbeđena je površina sa plodnim supstratom na krovu podzemnih etaža, na koje je postavljena višeslojna hidro i termo izolacija, geotekstil, drenažnoakumulacioni paneli, sloj ispranog rečnog oblutka uz odvodnjavanje sa krova podzemnih etaža.
Za ozelenjavanje kompleksa su predviđeni travnjaci, cvetne i žbunaste vrste, prilagodljive na lokalne i stvorene uslove sredine, navodi se u dokumentaciji.

Na javnom uvidu od 12. aprila
Javna prezentacija obaviće se u zgradi Gradske uprave grada Beograda od 12. do 20. aprila 2022. godine, svakog radnog dana od 9 do 15 časova.
Zainteresovana lica mogu tokom javne prezentacije da izvrše uvid u Urbanistički projekat, kao i da svoje primedbe i sugestije dostave Sekretarijatu za urbanizam i građevinske poslove, najkasnije do 20. aprila 2022. godine.









Cinjenica da arhitekte nisu dostavile osnove stambenih etaza a prilozili su 3 neka sarena preseka govori da cak ni oni nisu zadovoljni kako su isprojektovani stanovi, a kamoli da ce biti buduci korisnici.
Prvi deo komentara netacan (samo nije objavljeno), dok je drugi delimicno a treci potpuno tacan.
Beograd je PRENASELJEN! Gužva je gde god da kreneš, slobodno parking mesto će 2030. godine verovatno biti povod za građanski rat. A tek kada završe Makiško polje! Zelene površine ni za lek. Ima li nade da se zaustavi stanogradnja?
Svako malo, neko napise ovakav komentar. Da li stvarno mislite da se prostim zaustavljanjem stanogradnje resava problem? Koji je kriterijum na osnovu koga biste nekoga lisili boljeg obrazovanja, zaposlenja, zdravstvene nege?
Beograd jeste prenaseljen, tu se slazemo, ali resenje ne moze biti ono sto vi predlazete. Moze se: 1) raditi na razvijanju unutrasnjosti, gde bi ljudi mogli naci pristojne uslove za rad, obrazovanje i zdravstvenu negu i van velikih centara i time smanjili pritisak doseljavanja (meni licno najbolja opcija)
2) raditi na poboljsavanju infrastrukture grada i njegovom planskom sirenju kako bi mogao da apsorbuje toliki proj pridoslica.
Beograd je grad pridoslica, oduvek je bio i one imaju veliku ulogu u njegovom razvitku. Na kraju, „starosedeoci“ nemaju veca prava na grad ni po jednom osnovu, osim sto imaju dedovinu koju im niko ne moze oduzeti. Ja sam dosao u Beograd na studije, ostao neko vreme, sada sam u inostranstvu, ali mi je oduvek bilo neverovatno to deljenje na starosedeoce i dodjose, koje po pravilu prave samo oni neuspesni starosedeoci, koji traze krivca u nekom drugom a ne u sebi. Svako dobro!
Komentar je na mestu – jeste prenaseljen. Vaši predlozi rešenja su poput želja da bude „mir u svetu“ uz rešenje da ćemo postići tako što će svi biti dobri ljudi. Beskorisno. Beograd i Beograđani „žuljaju“ čak i u tom inostranstvu pa mora da se postavi kakav-takav komentar. Kad može odande da se pravi pametan, može i iz Beograda. Pozdrav.
Beograd zulja vise vas koji u njemu zivite, zato i kukate na prenaseljenost. Mene zulja uskogrudost ljudi poput Vas. Mozda ce vas ovo sokirati, ali iako zivim i inostranstvu, imam potpuno ista prava kao i Vi da komentarisem ( razlika je sto vi samo kukate na prenaseljenost, ja sam bar ponudio neku ideju resenja, bila ona realna ili ne).
Naravno da je ono sto ja pricam izvodljivo, izveli su toliki narodi, nista sposobniji od naseg, nego je lakse okriviti dosljake i ne raditi nista na resenju.
Na kraju, ja nisam negirao da je Beograd prenaseljen, to svako vidi, ali sam prvo pitao da se ponudi resenje a potom izneo moj predlog. Vi ste se nadovezali samo praznom kritikom bez ijednog predloga resenja, a optuzujuci me da imam nesto protiv Beogrda u kome sam proveo lep period zivota.
Sportski pozdrav!
Sada je bar jasno zašto su 2016. smuvali neposrednu primenu PGR, umesto važećeg PDR. Kao i da će se smrad čukaričkog rukavca nastaviti još većim intenzitetom.
Zgradu grade pet godina još 10 ce!Jako loša gradnja,majstori skupljeni s koca i konopca,pijance i urlalju uz preglasnu nazovi muziku!Žali Boze ljudi koji su dali pare,jer oni jedno cose rade 6 meseci