Izdvojeno, Regionalni projekti

Vila u Tivtu: Kada se arhitektura i enterijer spoje u jedno

Dobrim oblikovanjem i materijalizacijom objekta, dobijeno je uspešno rešenje za integraciju u senzibilni pejzaž tivatskog zaliva.

Vila SML po projektu biroa Studio Synthesis izgrađena je na južnoj obali Tivatskog zaliva gde uživa intimnost i nesmetani pogled na zaliv i ostrvo sv. Đorđe. U kontekstu izgrađenog okruženja, ovaj objekat od 1.350 kvadrata predstavlja novi orijentir ovog dela primorja.

Jednostavnom arhitekturom objekta težilo se istaći prisustvo neophodne svesti o kontekstu zatečenog prirodnog ambijenta.

 

I pored relativno gusto izgrađenih i planiranih struktura u okruženju, objekat je distanciran od susednih parcela u rastojanju od 3 do 5 metara, što lokaciji pruža dodatni kvalitet. Prizemlje je u potpunosti prilagođeno konfiguraciji terena, a predviđena namena omogućava maksimalno iskorišćenje parternih površina i dobru povezanost svih sadržaja u prizemlju. Jednostavnom arhitekturom objekta težilo se istaći prisustvo neophodne, jake arhitektonske svesti o kontekstu zatečenog prirodnog ambijenta.

Intergracija sadržaja

Forma objekta generisana je glavnom osom sever-jug koja objedinjuje najvažnije programske celine. Vila je projektovana tako da se integrišu svi sadržaji u prizemlju sa drugim sadržajima u parteru: mediteranski vrt, bazen, atrijum, amfiteatar, ponta i lungo mare.

U oblikovnom smislu, dominiraju dva razdvojena korpusa različitog karaktera: prvi statičan i drugi pokrenuti, lebdeći sa dve etaže, ukupne visine oko devet metara.

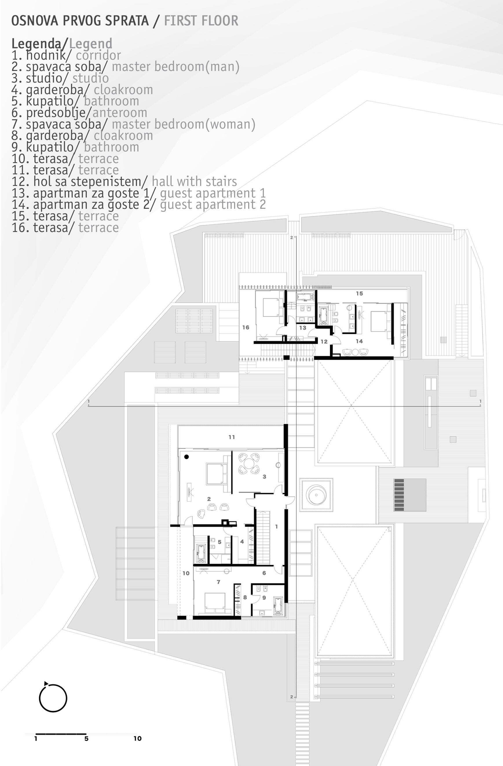
Osnove i situacija

U funkcionalnom smislu, objekat je koncipiran u nekoliko zona. Dnevna zona sa servisnim prostorijama organizovane su na koti ulaza, što je omogućeno adekvatnim savladavanjem terena. Na spratovima su organizovane noćne zone (sobe sa kupatilima i prostranim terasama) dok su u suterenu nalaze proširene dnevne zone namenjene relaksaciji i zabavi.

Za materijalizaciju objekta korišćeni su kvalitetni savremeni materijali sa karakteristikama za uslove primorja, otporni na povećanu vlažnost, insolaciju i salinitet. Fasada je koncipirana kombinacijom dva tipa kamena travertina (noce i classico), sa drvenim oblogama od drvenih talpi tipa “Ipe”.

Dinamična kompozicija zelenila

Pejzažno uređenje formirano je kroz dinamičnu kompoziciju zelenila kako u smislu rasporeda tako u smislu izbora vrsta i oblika sadnica koje doprinose ekskluzivnosti samog ambijenta. Projektom su planirane sadnice kvalitetnih mediteranskih vrsta, palmi, zimzelenog, listopadnog i četinarskog drveća, žbunja, puzavica i sukulenti.

Pejzažno uređenje formirano je kroz dinamičnu kompoziciju zelenila kako u smislu rasporeda tako u smislu izbora vrsta i oblika sadnica.

 

Na lokaciji se izdvaja nekoliko pejzažnih tema i celina koje su pojedinačno imale posebne zahteve u pogledu ozelenjavanja bilo da su u pitanju forma i habitus sadnica, ili uslovi u kojima će se razvijati, a to su: mediteranski vrt, atrijum, amfiteatar, zelenilo uz obalno šetaliste, zeleni krov, zelenilo u žardinjerama i ostale zelene površine.

Uprkos znatnoj izgrađenoj površini objekta, na ovom primeru individualno rezidencijalnog stanovanja, koncept razbijenih formi i tamne materijalizacije osnovnih kubusa, vila SML predstavlja dobar ključ i način uspešne integracije u senzibilni pejzaž tivatskog zaliva.

Foto: Relja Ivanić

Srodni članci na portalu Gradnja.rs:

Postani deo Gradnja zajednice

Najnovije vesti s našeg portala svakog petka u vašem sandučetu.

Dizajn enterijera

Srodni tekstovi

Ostavite odgovor

Obavezna polja *