Kod Dušanovačkog platoa u planu blok stambenih zgrada na mestu kuća
Beogradska Stenemi gradnja planira izgradnju objekta sa 16 stambenih jedinica, 2 poslovna ateljea, 2 dvoetažna lokala i 22 parking mesta u podzemnoj garaži.
Kod Dušanovačkog platoa u planu je izgradnja bloka stambeno-poslovnih zgrada na mestu starih kuća. Prva u nizu je izgradnja u Ulici Milorada Bondžulića broj 4 čiji se urbanistički projekat nalazi na javnom uvidu.
Nosilac izrade projekta je preduzeće IBM Consult iz Beograda, investitor je Stenemi gradnja, takođe iz Beograda dok idejno rešenje potpisuje Studio za projektovanje BAU Arhitektura iz Ivanjice, sa Draganom Perićem kao odgovornim projektantom arhitekture.
Pročitajte još na Gradnja.rs:
- U Ustaničkoj na Voždovcu planirana ugaona zgrada od 3.900 kvadrata
- Na prostoru bivše industrije na Voždovcu planirana izgradnja stambenog kompleksa

Postojeći objekti predviđeni za rušenje
Kako se navodi u dokumentaciji, predmetna lokacija pripada administrativnoj i katastarskoj opštini Voždovac uz neposrednu blizinu Ustaničke ulice.
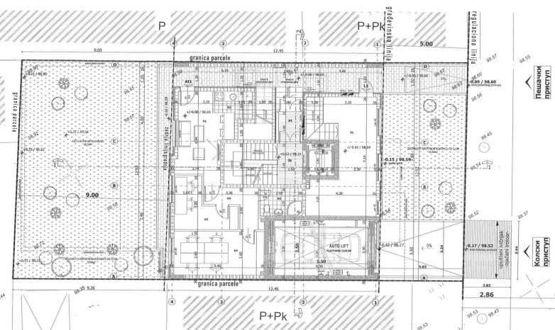
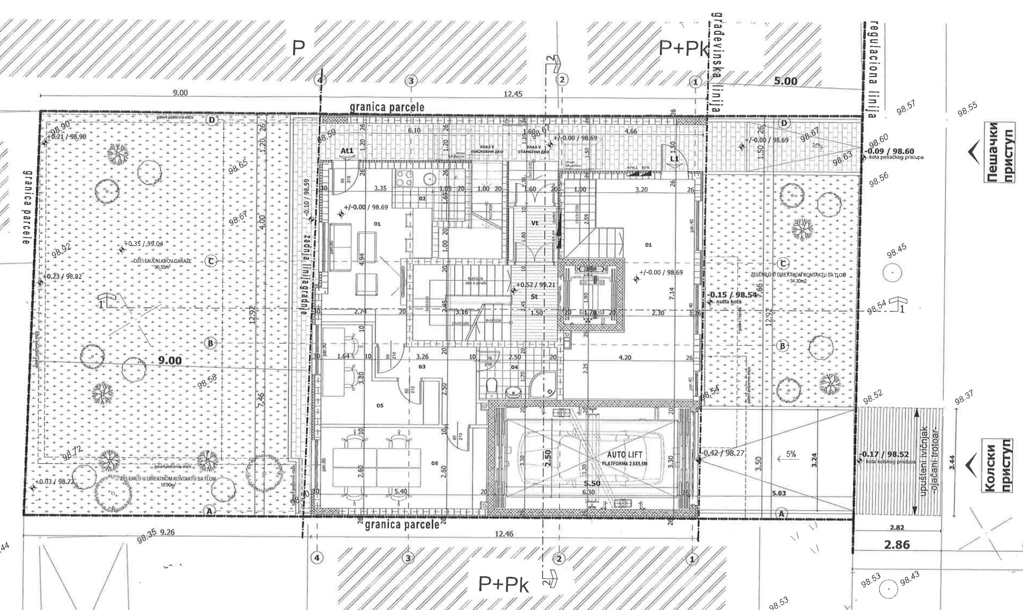
Parcela ima površinu od 339 m2 i izgrađena je stambenim objektima porodičnog stanovanja lošeg boniteta, koji su, kao i dva objekta na susednim parclelama, predviđeni za rušenje.

Udaljenje od regulacione linije je 5 m, odnosno minimalno dozvoljeno radi povezivanja sa budućim objektima u bloku.
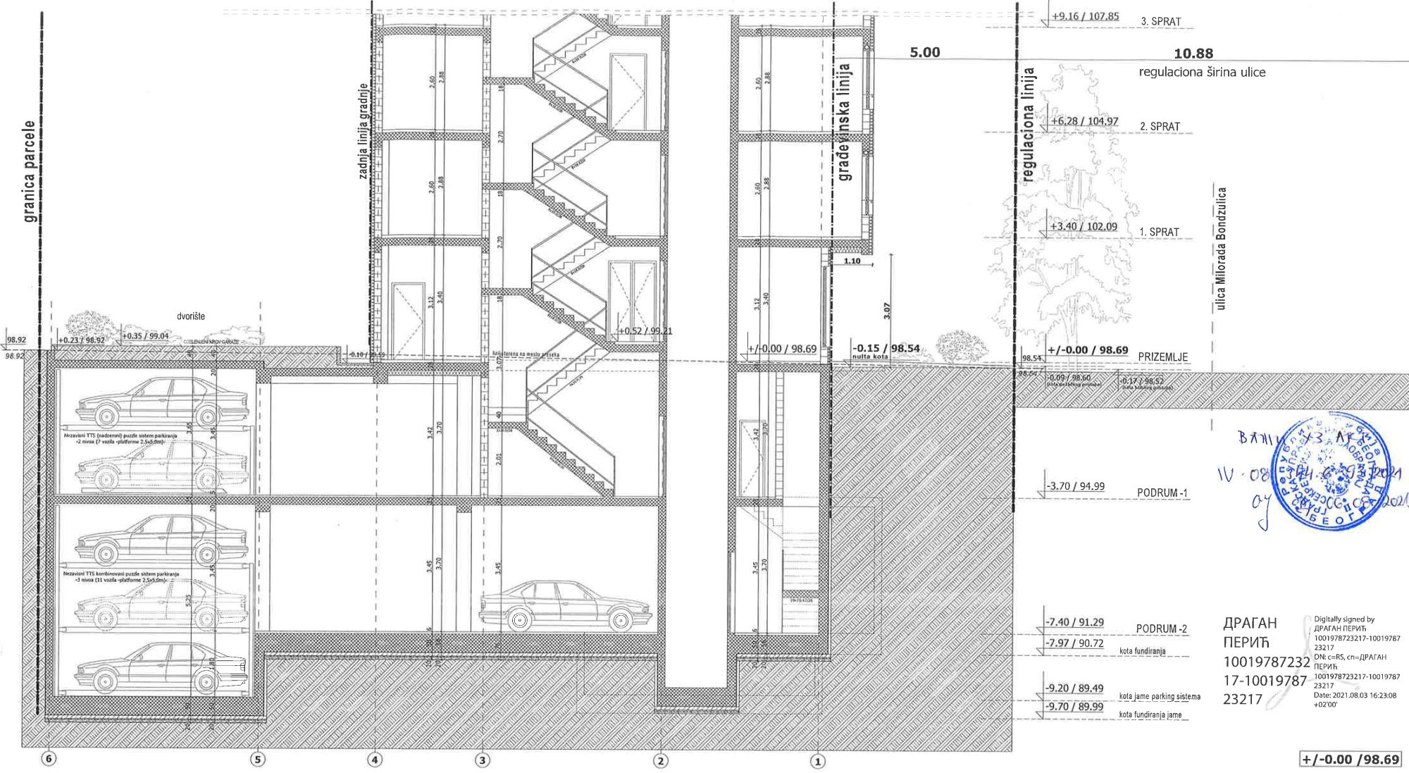
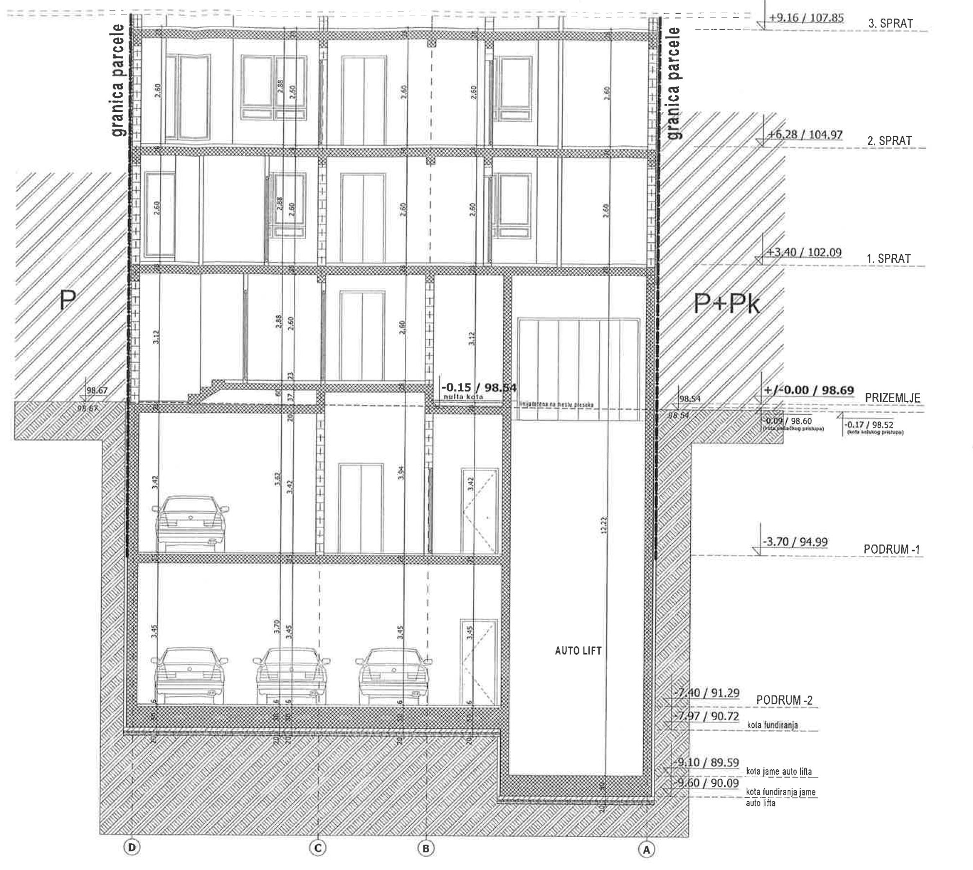
Prema tipologiji, objekat je dvostrano uzidan u odnosu na bočne granice parcele, a prema nameni stambeno-poslovni, spratnosti Po(‐2)+Po(‐1)+Pr+6+Ps.
Na mestu uziđivanja uz postojeći objekat udaljenje od regulacione linije je 5 m, odnosno minimalno dozvoljeno radi skladnog povezivanja sa budućim objektima u bloku.
Objekat je sa dvorišne strane povučen u nivou šestog i povučenog sprata kako bi se ispoštovalo minimalno dozvoljeno udaljenje od zadnje granice parcele, koje je uslovljeno visinom objekta.

Podzemna garaža sa 22 parking mesta
U dve podzemne podrumske garaže, na dva nivoa, obezbeđeno je ukupno 22 parking mesta, od čega je 5% tj. jedno parking mesto predviđeno za osobe sa posebnim potrebama.
Na etaži prizemlja projektovan je jedan lokal, jedan poslovni atelje, ulaz u stambeni deo objekta, ulaz u poslovni deo objekta koji se nalazi na nivou prvog sprata, kao i ulaz u auto-lift.
Na etaži prvog sprata su projektovani jedan poslovni atelje i jedan lokal kojima se pristupa nezavisnim stepeništem i ulazom sa nivoa prizemlja.

U objektu je projektovano ukupno 16 stambenih jedinica, 2 poslovna ateljea, 2 dvoetažna lokala i 22 parking mesta.
Na etažama drugog, trećeg, četvrtog i petog sprata su projektovana po tri stana različite strukture i površine. Na etažama šestog i sedmog sprata su projektovana po dva stana različite strukture i površine.
U objektu je projektovano ukupno 16 stambenih jedinica, 2 poslovna ateljea, 2 dvoetažna lokala i 22 parking mesta u okviru zajedničkih garaža na nivou podruma ‐2 i podruma ‐1.

Na javnom uvidu do 30. decembra
Zainteresovani mogu tokom javne prezentacije da izvrše uvid u urbanistički projekat, kao i da svoje primedbe i sugestije na planirana rešenja u pisanoj formi dostave na pisarnicu Sekretarijatu za urbanizam i građevinske poslove, najkasnije do 30. decembra 2022. godine.








Užas!
Odvratno, nehumano, ta ulica je na nivou sokaka sada a bice i gore kada se napravi ista vece od dvospratne kuce a kamoli ceo red zgrada. A te price garaza parking, pa to vecina nece kupiti uz stan, a zelenilo samo udri seci. Buka od autoputa sa jedne, iz Ustanicke ulice sa druge. Jos jedan u nizu ruznih projekata betoniranja samo zarad profita…
Užasnije mesto za zidanje zgrade nisam mogao da zamislim..!
Nije mi jasno zašto tih 5-6 kuća na placevima do sledećeg sokaka koji “seče“ Ustaničku lepo grad ne raseli i lepo urade jednu zelenu površinu..?!?
Tu ionako zimi ne može da se diše od zagađenja jer je to najniža tačka plus je dosta podvodna i ne bi trebalo ništa sem drveća..!