Ambar u Starim Banovcima transformisan u novo umetničko stecište u Sremu
Sa budžetom od samo 30.000 evra, od čelika i recikliranih materijala napravljena je ekstenzija Muzeja Macura sa prepoznatljivom ružičastom fasadom.
U Starim Banovcima, mestu na desnoj obali Dunava udaljenom samo 12 kilometara uzvodno od Zemuna, nalazi se Magacin Macura – Zenit 4, stari ambar pretvoren u prostor namenjen umetnosti od od 450 kvadrata.
Objekat dopunjava Muzej Macura u obližnjim Novim Banovcima, otvoren 2008. godine za smeštaj jedne od najvećih privatnih kolekcija moderne i savremene umetnosti u istočnoj Evropi kao prvi privatni muzej u Srbiji.
Kolekcija Vladimira Macure obuhvata neke od najboljih primera pokreta ranog 20. veka kao što su zenitizam, dadaizam, nadrealizam, bečki akcionizam i još mnogo toga, a muzej je otvoren svakog vikenda od 12 do 18 časova.
Pročitajte još na Gradnja.rs:
- Neka sile zatezanja budu s tobom: Muzej Džordža Lukasa odignut od tla
- Roze poze: Snøhetta projektuje Muzej seksa u Majamiju

Mesto okupljanja van velikih gradova
Lokacija Magacina Macura je prilično značajna, jer se nalazi u selu čija istorija seže do 16. veka, a možda i duže, udaljenom od većih gradova.
Tako izvođačke umetnosti, koncerti, pozorišne predstave i filmske projekcije često pretvaraju ovu udaljenu lokaciju u mesto okupljanja i iskustva.

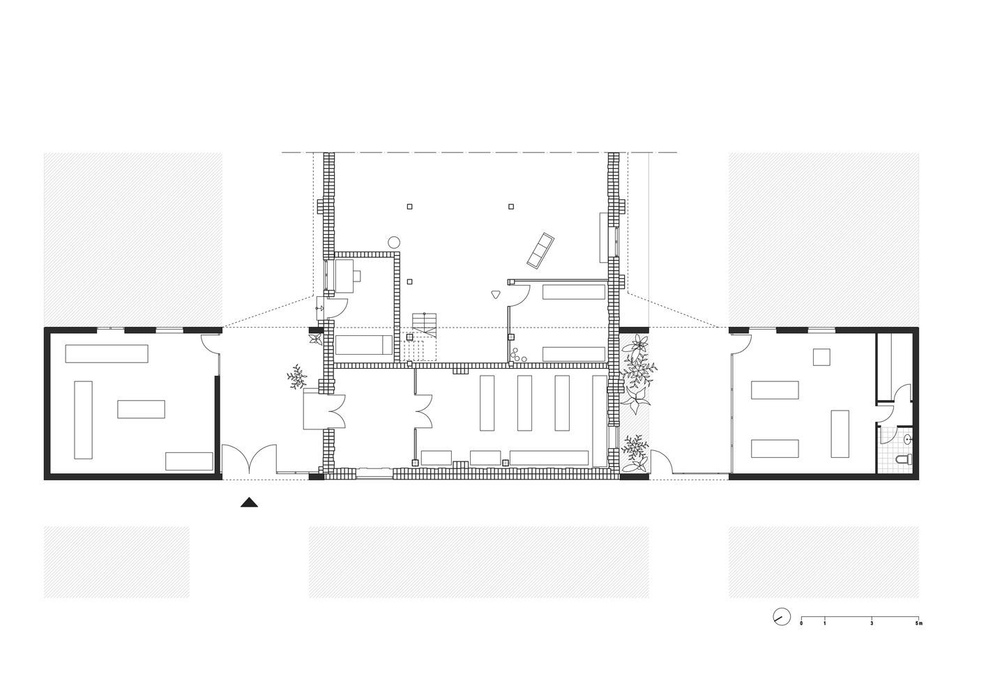
Planirano je značajno proširenje ambara, sa ciljem da se zadrži što je moguće više materijala i posebnih kvaliteta originalnog objekta.
Stari ambar služio je za skladištenje žita, zatim brašna i donedavno hleba. Sastoji se od prelepe jednostavne drvene konstrukcije sa vijčanim spojevima, vidljive krovne rešetke, golih drvenih podova i zidova od opeke.
Od bečkog arhitekte i umetnika Milana Mijalkovića zatraženo je da planira značajno proširenje ambara, sa ciljem da se zadrži što je moguće više materijala i posebnih kvaliteta originalnog objekta.

Vrata, prozori, pa čak i drveni podovi, bili su ponovo korišćeni materijali, spašeni sa lokalnog odlagališta otpada.
Sa budžetom od samo 30.000 evra – što je malo čak i za srpske standarde – Mijalković se odlučio za jednostavne low-cost tehnike koristeći čelični okvir za izgradnju ekstenzije i izolovane metalne obloge za zidove.
Vrata, prozori, pa čak i drveni podovi, bili su iznova korišćeni materijali, spašeni sa lokalnog otpada, objasnio je arhitekta za ArchDaily.
Za novi Magacin, veliki pravougaoni volumen postavljen je duž ulice, okomito na postojeću zgradu, i podignut do linije strehe.

Staro i novo u potpunom kontrastu
Ružičasta fasada naglašava novo prisustvo u selu, dok dve crne kutije, u kojima se nalaze prodavnica i skladišni prostori, čine osnovu volumena.
Između kutija i stare zgrade stvaraju se dva natkrivena ulaza. Njihova vitražna vrata bacaju svetlo u boji na postojeće zidove štale od opeke, gde su oljuštena farba i izloženi malter u potpunom kontrastu sa uredno malterisanim zidovima proširenja.

U velikom otvorenom prostoru smešteni su radni prostori, spavaća soba i kupatilo, a sve se pojavljuje kao deo izložbe.
Ulaskom na levi ulaz stupa se predvorje iz kog vodi vodi staza sa drvoredom koja se spušta do obale Dunava. Iz ove bašte ulazi se u dugački izložbeni prostor originalnog ambara.
Na prednjem kraju prostora, stepenište vodi do okomitog volumena gornjeg sprata. Ovde, opet u velikom otvorenom prostoru, smešteni su radni prostori, spavaća soba i kupatilo, a sve se pojavljuje kao deo izložbe.
U ovom prostoru mogu boraviti gostujući umetnici, a mogu se održavati čitanja, performansi itd.

Toliko mnogo za tako malo
Sa druge strane prvobitne zgrade, druga vrata vode u dvorište koje izgleda kao da se ništa oko njega decenijama nije promenilo, i to je uglavnom tačno.
„Ovaj low-cost razvoj sa svojim ponovo korišćenim materijalima obezbedio je toliko mnogo za tako malo, zadržavajući ono što je već bilo tamo“ – rekao je na kraju arhitekta Mijalković.

Grafički prilozi
Foto-galerija






















Ovo je tužno koliko je ovo ružno.
Meni je genijalno. Bravo za iskorak i samo napred
Krov kome bi i televizija Pink pozavidela…