Monolitna kamena kuća na Visu koja spaja arhaično i savremeno
Brušenim betonskim pločama koje kao mostovi izlaze iz kamenog volumena stvoren je međusoban dijalog različitih materijala i formi.
Kuća Rogač podignuta je prošle godine u gradu Visu na istoimenom hrvatskom ostrvu prema projektu koji potpisuje splitska fima Studio Archaos.
Objekat je izgrađen je na strmoj parceli na severnom obronku iznad viške luke i istorijskog grada, a okružen je brojnim stogodišnjim rogačima po čemu je i dobio ime.
Kuća je vizurama orijentisana prema veličanstvenom pogledu na idiličnu uvalu i more, a zauzima plac površine 495 kvadratnih metara.
Pročitajte još na Gradnja.rs:
- Iz Beograda za Istru: Vila oslonjena na zid od kamena stare kuće
- Planinska kuća od betona suptilno utopljena u okruženje

Kontinuiran i snažan dijalog s okolinom
Arhetipski monolitni volumen kuće, izveden u grubo isklesanom kamenu, uzdiže se iz prirodne topografije strme padine i gustog okolnog zelenila, a svojom formom objekat asocira na odbrambenu višku kulu u neposrednoj blizini.
Igra otvora na kamenoj fasadi kuće rezultat je promišljenog stepenovanja različitih vizura i nivoa privatnosti svih unutrašnjih prostora kuće, te spoljašnjih terasa, lođa i balkona.
Na taj način, navode autori, ostvaren je kontinuiran i snažan dijalog s okolinom u kojoj kuća nastaje, potencirajući kontrapunkte ambijenata introvertnosti i ekstrovertnosti.

Izvorni viški kamen, kao sirovina za gradnju kuće, daje temelj sigurnosti i stabilnosti.
Oblikovanjem manjih razigranih dubinskih otvora prozora na kući pruža se osećaj pećinske zaštite, a veći otvori, na koje se nastavljaju spoljašnji prostori terasa i balkona, kadriraju spektakularne panoramske vizure. Rezultat ovih kombinacija je meditativna smirenost i atmosfera mesta.
Izvorni viški kamen, kao sirovina za gradnju kuće, daje temelj sigurnosti i stabilnosti. U sinergiji je s brušenim betonskim pločama i površinama od kojih su izvedene konzolne terase, balkon, most prema kući, staze, lođa kao i krovna površina.
Ove ravni su koncipirane tako da iz kamenog volumena kompozicije kuće izlaze kao prekinuti mostovi, stvarajući međusoban dijalog različitih materijala i formi, te veze kuće sa spoljašnjim svetom.

Formalne i konstruktivne veze sa istorijskim jezgrom
Kako ističu autori projekta, odabrana materijalnost kuće povezana je memorijom građenja, simbiotički spajajući arhaično (kamen) i savremeno (beton).
„Kuća kao fragment poštuje formalne i konstruktivne veze sa istorijskim jezgrom grada Visa“, napominju splitski arhitekti.

Izrazito strma padina parcele, te odmak linije građenja generisali su projektovanje betonskog mosta do kuće.
S južne strane parcele kuće prolazi prometna viška obilaznica. Izrazito strma padina parcele te odmak linije građenja generisali su projektovanje betonskog mosta do kuće, kao jedinog saobraćajnog pristupa objektu.
Južno pročelje kuće orijentisano je prema ulici, te je zbog toga u potpunosti zatvoreno, oblikovno redukovano samo na dva otvora – glavni ulaz u kuću naglašen mostom, te drugi, sporedni ulaz, naglašen dugim spoljašnjim stepeništem zasečenim u strmom terenu.

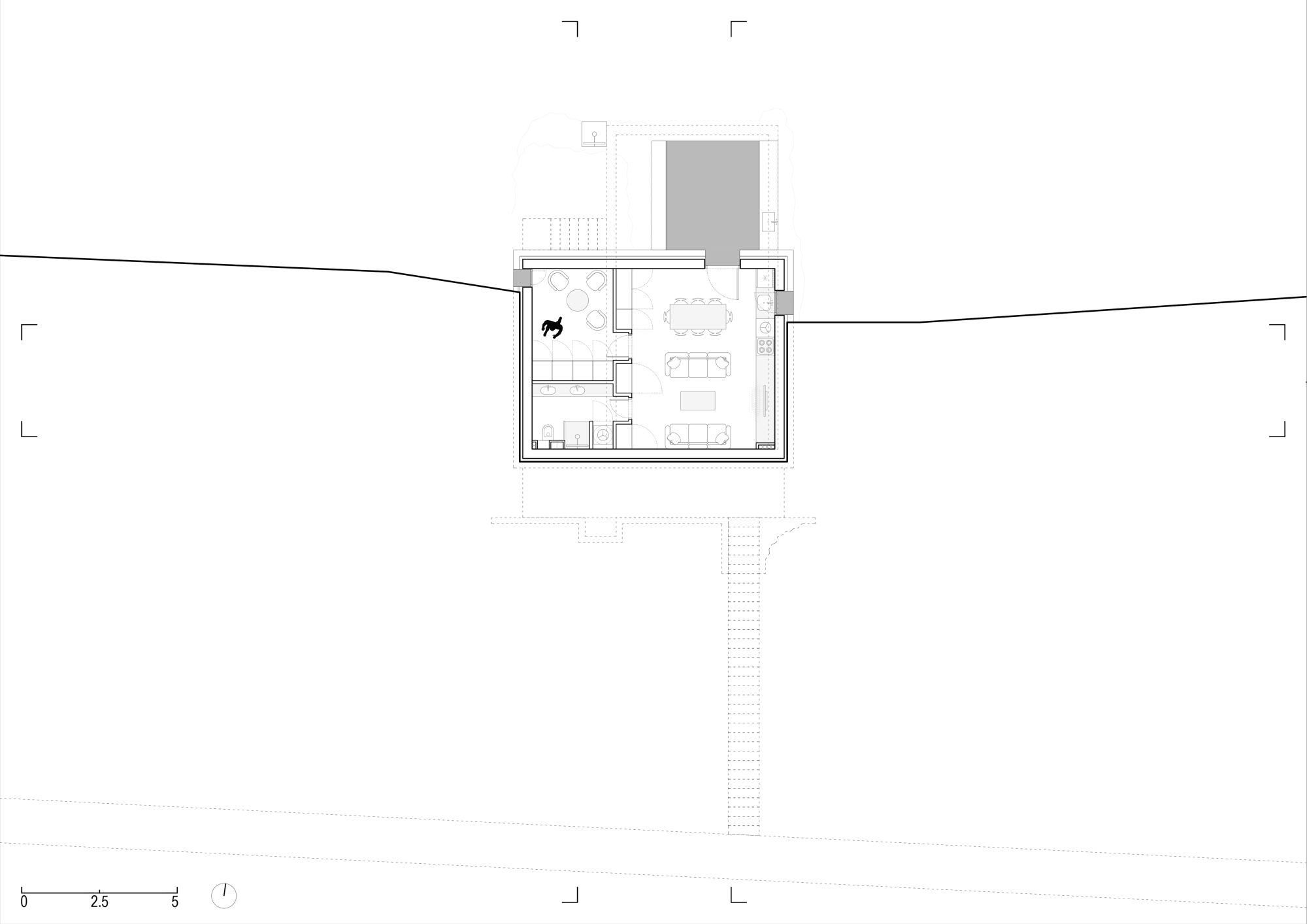
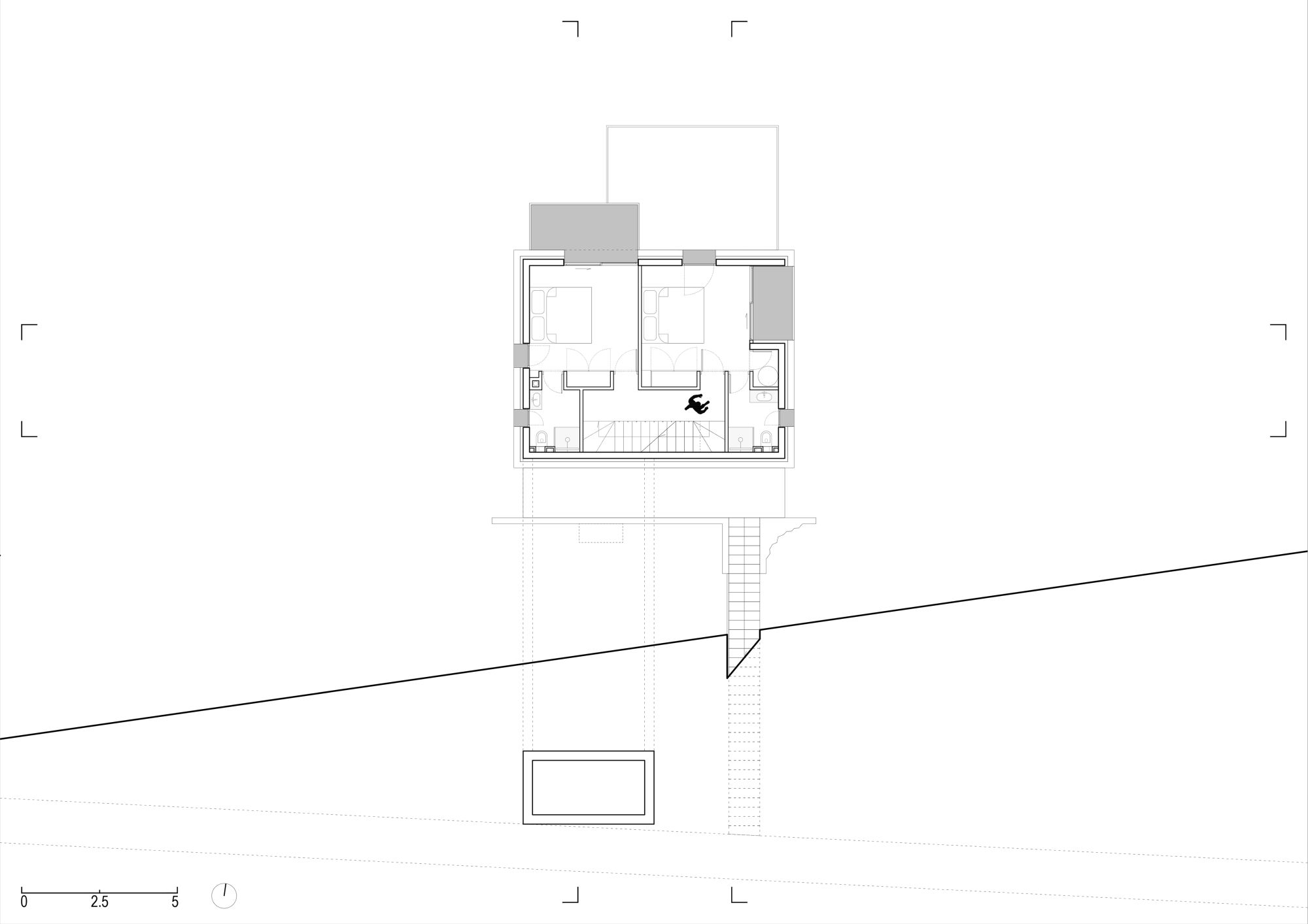
Raspored prostorija
Na najvišem spratu kuće nalazi se glavna spavaća soba sa kupatilom i zaštićenom krovnom terasom, s koje se pruža pogled prema jedinstvenoj viškoj vizuri i srednjodalmatinskim ostrvima. Na istom je spratu je i biciklana pozicionirana kraj ulaza.
Konzolno stepenište s drugog sprata vodi prema donjem, prvom spratu, na kojem su smeštene dve spavaće sobe s kupatilima, kao i zasebnim pristupima balkonu i lođi.
Do „prizemlja“, odnosno sprata dnevnih prostorija na etaži ispod, vodi monovolumen drvenog stepeništa pod kojim su skriveni kupatilo i ostava.
Terasa utopljena u okružujuće zelenilo iskorištava senku i hlad kuće za vrele letnje dane.
Zajednički prostor dnevnog boravka, kuhinje i trpezarije otvara se prema prostranoj konzolnoj terasi kao središnjim zbivanjem letnjih aktivnosti u kući.
Terasa utopljena u okružujuće zelenilo iskorištava senku i hlad kuće za vrele letnje dane, ali i preostale zrake sunca sa istoka i zapada.
Najniža etaža kuće sadrži konobu – prostor za druženje i relaksaciju s vinotekom, otvarajući se na senovitu letnju kuhinju pozicioniranu ispod konzole gornje terase.

Bazen zaštićen od okolnih pogleda
„Ovako projektovan prostor formira zonu intimne vrtne terase, uz koju se nalazi monolitni betonski bazen okružen bogatom vegetacijom rogača i zaštićen od okolnih pogleda“, objašnjavaju iz Studija Archaos.
Nameštaj i stolarija u enterijerima izvedeni su od hrastovine, a zidovi su obrađeni grubljim malterom.
„Završna obrada materijala doprinosi skulpturalnom oblikovanju građevine referišući se na prisutni duh mesta“, navode na kraju splitski arhitekti .

Grafički prilozi
Foto-galerija
Faktografija
- naziv projekta: Kuća Rogač
- lokacija: Grad Vis, ostrvo Vis, Hrvatska
- autori: Studio Archaos
- projektni tim: Srđan Ostojić, Toni Kerum i Krešimir Ćavar
- površina placa: 495 m2
- ukupna površina svih prostorija: 225 m2
- početak projektovanja: 2018.
- početak gradnje: 2019.
- završetak gradnje: 2021.
- izvođač: Jelkon gradnja d.o.o.
- fotografije: Bosnic+Dorotic




















spektakularno
jako lepo