Nacionalni bokserski trening centar sa bazenom gradi se na Novom Beogradu
Bokserski savez Srbije planira izgradnju kompleksa sastavljenog od trenažno-takmičarskog objekta, prenoćišta za takmičare i parkinga sa 99 mesta.
Grad Beograd oglasio je javnu prezentaciju Urbanističkog projekta za izgradnju kompleksa Nacionalnog bokserskog trening centra, spratnosti od P do P+2, u Ulici dr Ivana Ribara na Novom Beogradu.
Nosilac izrade i obrađivač urbanističkog projekta je „Pro.19” d.o.o. iz Beograda, investitor je Republika Srbija – Bokserski savez Srbije, dok je posao odgovornog projektanta idejnog rešenja poveren Aleksandri Božović, mia.
Pročitajte još na Gradnja.rs:
- Na Južnom bulevaru u planu sportski kompleks sa bazenom
- Zakošeni betonski paneli i zeleni agregat dominiraju novom sportskom dvoranom kraj Zagreba

Pristup preko Ulice dr Ivana Ribara
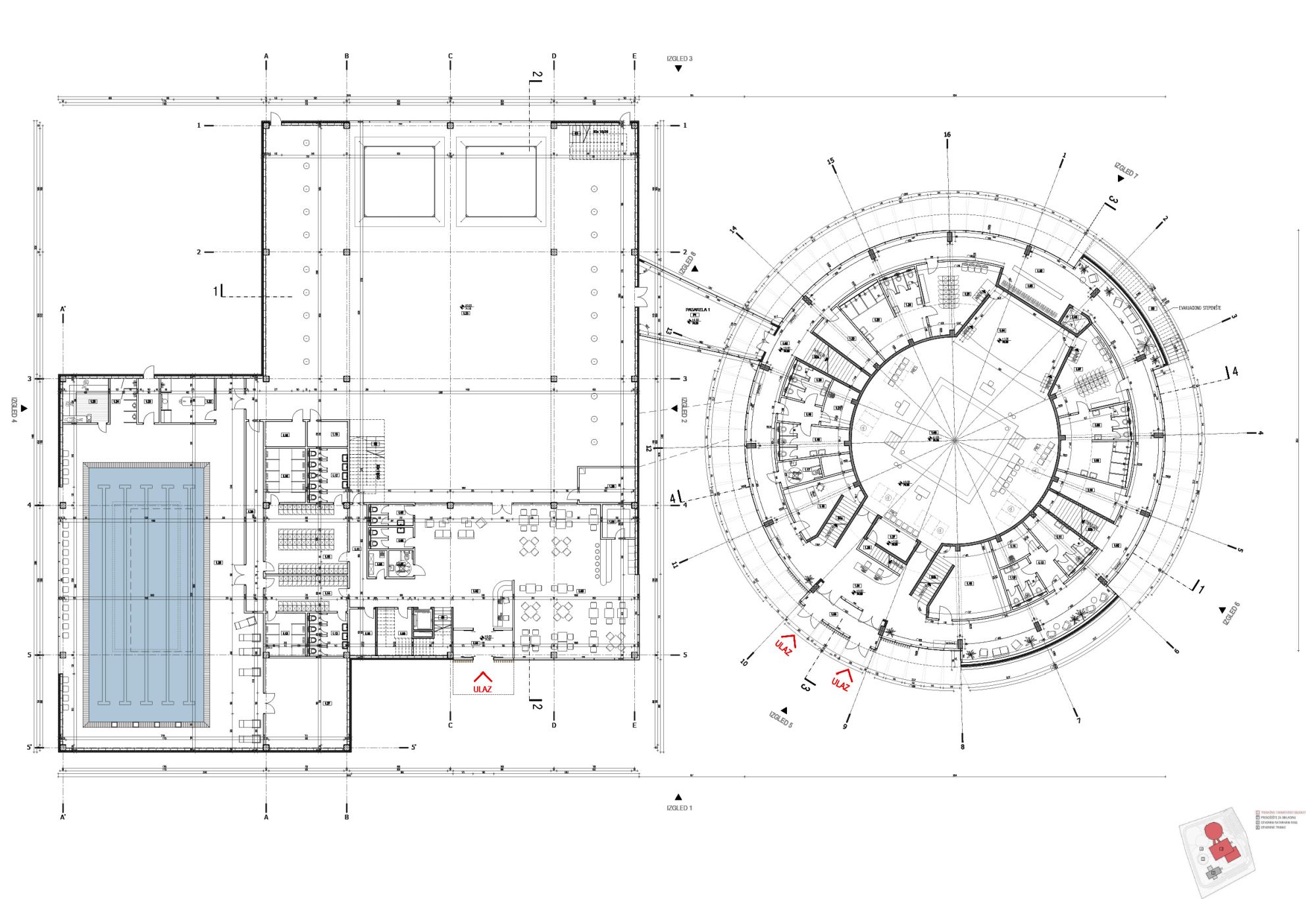
Obuhvat urbanističkog projekta čini 11 katastarskih parcela u KO Novi Beograd, ukupne površine oko 2 hektara. Pristup parceli je omogućen preko Ulice dr Ivana Ribara koja preko Surčinske i Vojvođanske ulice ima izlazak na auto-put E70 i E75.
Lokacija je projektovana kao kompleks objekata sa namenom Nacionalnog bokserskog trening centra. Predviđena je kao jedinstvena funkcionalno-estetska celina sa slobodnostojećim sportskim objektom specijalizovanim za treninge i takmičenja sportista i sportskih ekipa na nacionalnom i međunarodnom nivou i objektom za smeštaj posetilaca-takmičara i njihove pratnje – prenoćištem.

Pristup je omogućen preko Ulice dr Ivana Ribara koja preko Surčinske i Vojvođanske ulice ima izlazak na auto-put E70 i E75.
Objekti će imati ukupnu kvadraturu od 7.257 m², od čega na trenažno-takmičarski objekat sa toplom vezom P+1 otpada 5.569 m², dok će smeštajni objekat P+2 zauzimati 1.688 m² ukupne bruto površine.
Objekti su pozicionirani u centralnom delu buduće građevinske parcele sa novoformiranim parking zonama uz Ulicu dr. Ivana Ribara i u južnom delu uz smeštajni objekat, pri čemu su pešačkim platoima omogućeni prilazi glavnim objektima.
Predviđeno 99 parking mesta
U okviru novoformiranog parking prostora predviđeno je 99 parking mesta namenjenih takmičarsko-sportskom centru, od toga 85 parking mesta grupisanih u zonama na više pozicija u okviru kompleksa, 5 mesta za invalide i 8 VIP parking mesta pozicioniranih u neposrednoj blizini ulaza u trenažni objekat
Planirana su i dva mesta za autobuse i deset mesta za bicikle. Kroz kompleks su predviđene i staze i pešački prilazi objektima.

Park i otvoreni natkriveni ring
U okviru kompleksa predviđen je i park sa potrebnim mobilijarom za sedenje. Takođe, ulazi u objekte su naglašeni uređenim zelenim površinama, gde god je to bilo moguće zbog pristupa.
Predviđene su i otvorene tribine i otvoreni natkriveni ring koji su pozicionirani u zadnjem delu parcele (u zapadnom delu), u okviru ozelenjenog dela kompleksa, izdvojeni od zagađenja i buke javnih površina. Natkriveni ring za boks osim urbanog mobilijara za vežbanje obuhvata trim stazu koja se prostire po obodu kompleksa.
Trenažno-takmičarski objekat sastoji se od dve etaže i dve funkcionalne celine – trenažne i takmičarske.
Trenažno-takmičarski objekat sastoji se od dve etaže i dve funkcionalne celine – trenažne i takmičarske. Dva dela objekta organizovana su tako da funkcionišu nezavisno jedan od drugog. Veza između dve zone ostvarena je preko pasarela koje se nalaze na nivou prizemlja i prvog sprata.
Trenažna zona je namenjena sportu i rekreaciji. Izgradnjom novog trenažnog prostora omogućeno je formiranje sa jasno definisanim zonama i kretanjima posetioca, korisnika i zaposlenih. Trenažni deo ima dve etaže – prizemlje i prvi sprat, koji je projektovan u vidu galerijskog prostora, BRGP iznosi 3.131 m², a spratnost objekta je P+1.

Dva ringa i dupla spratna visina
Prizemlje je podeljeno u tri funkcionalne celine – ulazna zona, trenažna zona i bazen. Trenažna zona zauzima najveću površinu prizemlja. Projektom je definisana adekvatna trenažna zona sa pozicijom dva ringa i duplom spratnom visinom, ne manjom od 9 m.
U okviru zone namenjene ringovima, formiran je i prostor ispod galerije sa bokserskim džakovima. U okviru trenažne zone predviđene su i garderobe koje su definisane prema kapacitetu korisnika, a obuhvataju i prateće sanitarne čvorove i tuševe.

Bazen je predviđen isključivo za korisnike trenažnog centra, u svrhu još jednog vida treninga i rekreacije, dimenzija 10 x 22 m.
Bazen je predviđen isključivo za korisnike trenažnog centra, u svrhu još jednog vida treninga i rekreacije, dimenzija 10 x 22 m. U okviru ove zone predviđene su i propratne prostorije, kao što je sauna.

Prenoćište za omladinu
Prenoćište za omladinu sastoji se od tri etaže i namenjen je privremenom boravku takmičara i članova bokserskog saveza. Objekat je zatvorenog tipa i u funkciji je kompleksa. Funkcionalnom organizacijom objekta definisane su zone, kretanja i unutrašnje vertikalne i horizontalne komunikacije. Objekat je prema nameni podeljen na dnevnu i noćnu zonu.
Primedbe i sugestije do 28. februara
Zainteresovana lica mogu tokom javne prezentacije da izvrše uvid u urbanistički projekat, kao i da svoje primedbe i sugestije na planirana rešenja u pisanoj formi dostave Sekretarijatu za urbanizam i građevinske poslove, preko pisarnice u Ulici kraljice Marije br. 1, najkasnije do 28. februara 2023. godine.
Grafički prilozi










Ludilo kako nam dobro ide, zlatno doba, pa imamo odlične prioritete. Nisu prioriteti raspale škole i bolnice, prioritet je boks. I trobojka na krovu…. e da nju nisu natakli, ne bi vladajuća strankica bila zadovoljna. Ili ovo skreće pažnju sa još nekog novog urbanističkog ludila u Beogradu? Bravo, bravo