Topli minimalizam: Kuća u kojoj dominiraju drvene i kamene površine
Velika količina drveta u kombinaciji s materijalima zemljanih boja, učinila je da prostor svedenog dizajna izgleda toplo i ušuškano.
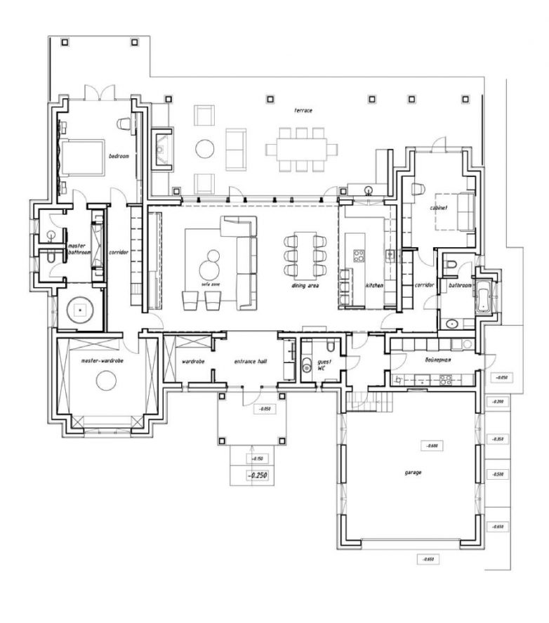
Po projektu arhitektonskog biroa Denrakaev u Kijevu je nikao stambeni objekat od 150 metara kvadratnih nazvan Vila 118 koji ima veoma jasnu kompoziciju organizacije prostora koji je u službi dizajna enterijera.
Centralni deo kuće u potpunosti je organizovan kao otvoren prostor koji uključuje prostran dnevni boravak sa trpezarijom, a u neposrednoj blizini smeštena je i kuhinja. Jednostavno i funkcionalno organizovan prostor, razigran je materijalizacijom odnosno obilnim korišćenjem drvenih površina koje se ne nalaze samo na podu već i na zidovima, nameštaju i detaljima koji su odlično kontrirali osnovnoj, crnoj boji.
Centralni deo kuće, gde je pozicionirana i ulazna zona s toaletom i manjim garderoberom, grana se na levo i desno krilo.
U levom krilu kuće smeštena je prostrana spavaća soba i isto tako komforan garderober.
Iz spavaće sobe direktno se stupa u kupatilo sa zanimljivom kružnom kadom.
Radna soba koja se pretvara u gostinsku
U desnom krilu kuće koje je nešto manje, ukoliko izuzmemo garažu za dva vozila, smeštena je radna soba koja se po potrebi, zahvaljujući rasklopivom ležaju, može pretvoriti u gostinsku sobu, a tu je i još jedno kupatilo.
U ovom delu kuće, preko posebnog izlaza može se stupiti u tehničku prostoriju, još jedno manje gostinsko kupatilo, a tu je i izlaz u garažu.
Kamen na podu i zidu korišćen je da bi se akcentovali pojedini delovi enterijera u kojem dominira drvo.
Ovu zaista prostranu kuću, zbog svog sadržaja i organizacije prostora, arhitektonska firma Denrakaev opravdano je okarakterisala kao vilu, iako tehnički ima samo jednu spavaću sobu.
Znatne količine drveta korišćene su kao podne obloge ali i pri oblikovanju zidova i formiranju nameštaja, dok je kamen na podu i zidu korišćen da bi se akcentovali pojedini delovi enterijera.
Crna kao dobra podloga
Crna boja na zidovima i nameštaju učinila je ovaj prostor pomalo dramatičnim, ali istovremeno poslužila i kao savršena veza između kamena i drveta.
Osnova kuće:
Foto: Andrey Avdeenko, izvor: ArchDaily
Kad ste već ovde…
















