Krug, trougao, kvadrat: Razigrani prostor za zajednički rad inspirisan geometrijskim oblicima
Nedavno je u Šangaju otvoren novi poslovni hub inspirisan futurizmom, pop-artom ali i osnovnim geometrijskim oblicima.
Ipak, ono što Dishan Space svakako odvaja od sličnih modernih prostora za zajednički rad jesu njegove boje. Sve zajedničke prostorije okupane su u pastelnim nijansama i odvojene naizgled jednostavnim panelima kako bi svi korisnici po potrebi mogli da se osame.
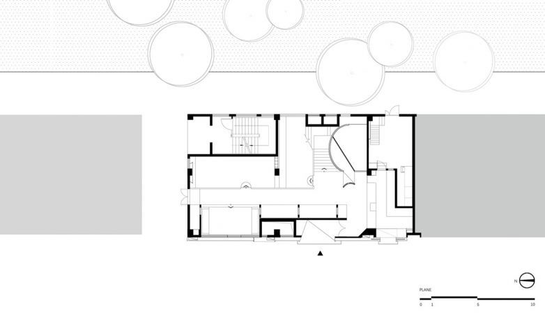
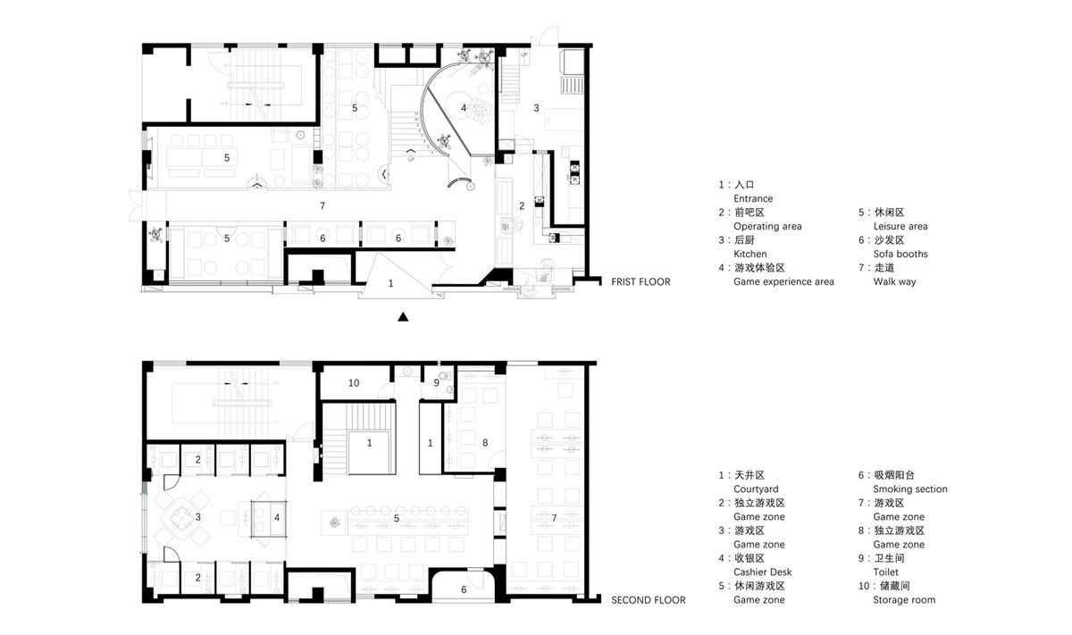
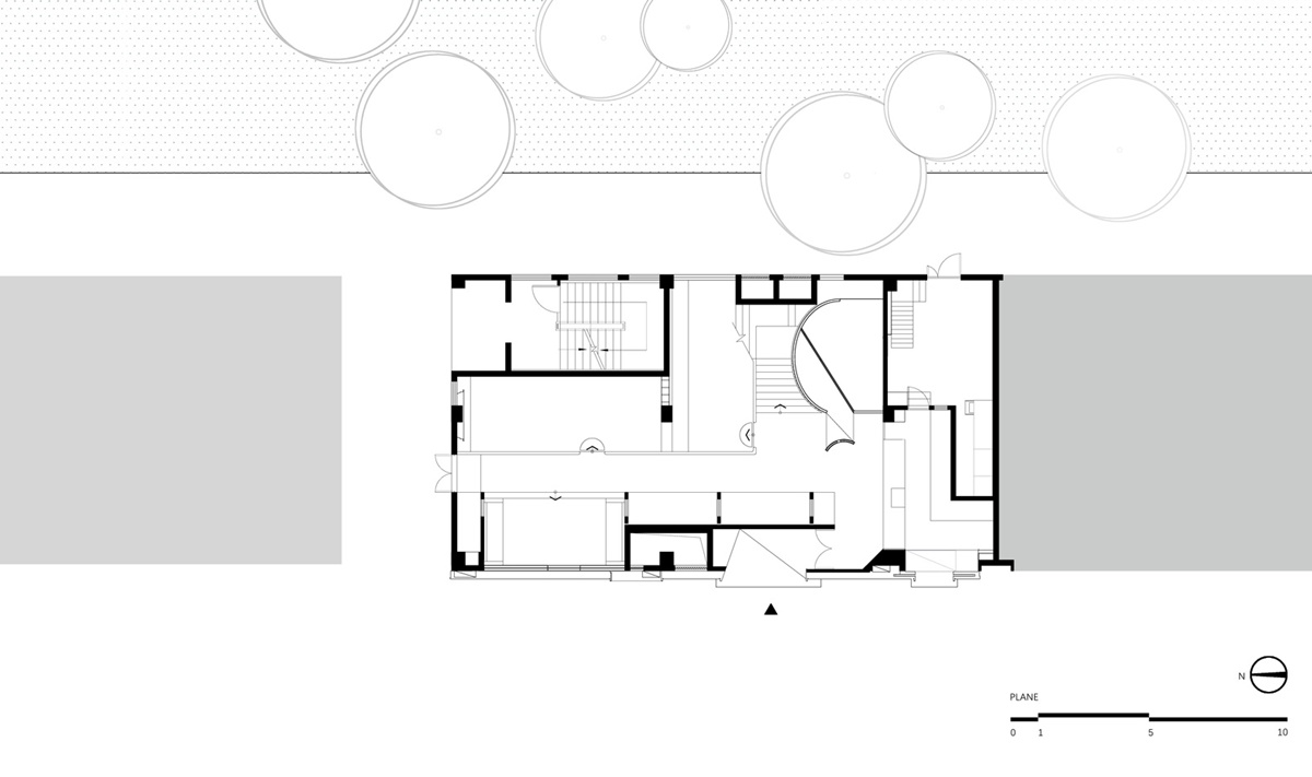
Geometrija je igrala glavnu reč pri dizajnu prostora, tako da su arhitekte iz studija PUJU sve prostore u enterijeru oblikovale po nekom osnovnom geometrijskom obliku. Za razliku od razigranih zajedničkih zona, prostorije za rad su mahom potpuno jednostavne.

Arhitekte iz studija PUJU sve prostore u enterijeru oblikovale po nekom osnovnom geometrijskom obliku.
Dishan Space ima i zanimljiva rešenja rasvete, pa se tako u njemu naći mnogobrojne zidne lampe i lusteri zanimljivih formi. Uz to, zahvaljujući prozorima na plafonu, prirodna svetlost dopire do svih prostorija u kancelariji.


Nesvakidašnji otvori na uličnoj fasadi – uključujući glavna ulazna vrata i prozore u formi kvadrata, trougla i kruga – doprinose tome da svetlost u kancelarije ulazi na neobičan način i svakako privlače pažnju prolaznika.

Burna istorija
Zanimljivo je da je lokacija ovog poslovnog haba nekada bila poprište jakog zemljotresa. Tada je verovatno bilo teško zamislivo da će na ovom mestu nići ovako razigran objekat.

U nastavku pogledajte ostale slike projekta, kao i grafička rešenja.
Ostale fotografije enterijera











Grafičke podloge







Fotografije eksterijera Hao Chen, fotografije enterijera Purel, crteži PUJU architects.
Kad ste već ovde…
