Rad od kuće: Višestrukost stambenog prostora
Kako je Srbija zemlja jeftine radne snage, kreativnost nije najpoželjniji modus postojanja, a to se najdirektnije ogleda u organizaciji stanova u novogradnji.
Svaka istorijska epoha ima svoju ideju poželjnog oblika življenja. Svaka epoha ima svoju viziju idealnog stana. Ali, sudbina svih društva u razvoju jeste život u prošlosti.
Kao društvo u razvoju, mi u Srbiji svoje svakodnevne živote živimo po obrascima, šemama i tokovima koje su neka druga, naprednija društva odavno napustila za sobom. Ma koliko savremeni, zapravo smo anahroni. To je svuda očigledno, pa i u našim stambenim preferencijama, te organizaciji stanova u novogradnji. Oni tako mnogo govore o nama.
Ekonomija je prostorna
Preovlađujući način proizvodnje igra presudnu ulogu u oblikovanju društvenih odnosa. Zamena preovlađujućeg sistema proizvodnje i potrošnje uzrokuje drastične prostorno-programske transformacije kuće i grada, te načina na koji oblikujemo prostor i kako prostor povratno oblikuje nas. Kako proizvodimo i trošimo novac bitno predodređuje naš životni stil, koji posledično reformuliše naše stambene preferencije.
Ova ideja nigde nije očiglednija kao u korenu reči ekonomija, a to je oikos – dom. Ekonomija je tamo i ono što je dom. Primera radi, destrukcija vrednosti domaćice, doma i kuće kao porodičnog staništa bila je ključna i opredeljujuća za trasiranje društva masovne potrošnje. Drugim rečima, da bi bilo koja ekonomska realnost mogla biti moguća, ona prvo mora imati odgovarajući stambeni okvir.
Hertcberger tvrdi da je podela stana na strogo razdvojene prostore za dnevni boravak, obedovanje, kuvanje, pranje i spavanje zapravo nasilje.
„Kuća kao mašina za stanovanje“ bila je velika metafora modernog, mehaničkog i industrijskog društva. Preuzeti iz procesa industrijske proizvodnje vrednosti standardnog, racionalnog i mašinskog postavljeni su kao osnovna merila vrednovanja i organizacije prostora kuće i stana.
Vrednosti savremenog, post-modernog društva, s druge strane, najdirektnije se ogledaju u koncepciji polivalentnosti stambenog prostora kao idealnog organizacionog obrasca.
Složenost i promenljivost
Ana Nikezić u knjizi „Formati za urbani život – Porodična kuća u savremenom gradu“ ukupnost polivalentnosti razlaže na dva principa: princip složenosti i princip promenljivosti. Oba principa, i složenost i promenljivost, rezultat su odgovora na pojavu novih životnih stilova, novih mogućnosti građenja, te novih pristupa materijalizaciji ambijentalno transformisanog prostora.
Složenost kao karakteristika svoje korene nalazi u kući srednjovekovnog grada. Herman Hertcberger tvrdi da je funkcionalistička podela stana na strogo razdvojene prostore za dnevni boravak, obedovanje, kuvanje, pranje i spavanje zapravo nasilje. Oslobođenje Hertcberger vidi u povratku predindustrijskoj normi međusobno povezanih prostorija, koje omogućavaju mnogo slobodniju vezu prostora i aktivnosti.
Princip složenosti očitava se kroz raznovrsnost sadržaja i mogućnost njihovog sažimanja i povezivanja, naglašava Nikezić. Složenost stambenog prostora ogleda se i kroz povezanost dnevne i noćne zone, integraciju rada i stanovanja, te kroz kružno, neprekinuto kretanje. Kao takav, princip složenosti realizuje se kroz prožimanje aktivnosti i otvorenost plana.
Promenljivost, s druge strane, predstavlja najrazvijeniji princip koji otvara vrata korenitim organizacionim i strukturalnim promenama. Dostizanje kvaliteta promenljivosti Nikezić vidi na tri načina. Kroz fleksibilnost, otvaranje i stepenovanje prostora.
Fleksibilnost je potencijal trajne promena strukture, ambijenta i karaktera stambenog okvira, realizovan kroz sistem pokretnih pregrada ili zavesa. Kao princip, fleksibilnost se prvi put najradikalnije realizuje u Kući Šreder holandskog arhitekte Gerit Ritvelda. Kroz sistem pokretnih panela prostor svakodnevnog života rasteže se od potpuno raščlanjenog do potpuno otvorenog.

Otvaranje prostora ostvaruje se kroz njegovu podelu na tehnološko jezgro koncentrisanih servisnih sadržaja i neprekinutu fluidnost horizontalnog plana. Mis van der Roe ovu organizaciju koncepciju dovodi do krajnjih granica u Kući Fansfort, gde posebnu pažnju posvećuje materijalizaciji i detalju.
Stepenovanje prostora realizuje se kroz gradaciju sadržaja i fleksibilnost sekundarne podele prostora. Le Korbizje svoj Atelje apartman u Parizu organizuje upravo rukovodeći se ovim načelima.
Kako postići polivalentnost u stambenom prostoru
U članku „Projektantski principi za postizanje prostornosti u stambenom prostoru“, objavljenom u časopisu Arhitektura i Urbanizam, Đorđe Alfirević i Sanja Simonović-Alfirević otkrivaju projektantske obrasce dostizanja kvaliteta polivalentnosti horizontalne osnove. To su: otvoreni plan, fleksibilnost prostora, anfilada, kružna veza i iluzija prostornosti.
Alfirević i Simonović-Alfirević polaze od pretpostavke „po kojoj se prostornost u stambenom prostoru postiže na tri osnovna načina koja ujedno određuju i njen karakter: izrazitim povećanjem bar jedne od fizičkih dimenzija prostora, pružanjem mogućnosti da se kretanjem kroz prostor, koji nije saglediv iz pojedinačnih vizura, formira pretpostavka o njegovim stvarnim granicama i primenom neke od optičkih iluzija prostornosti u materijalizaciji površina“. Prema efektima koje postižu, principi se mogu podeliti na one koji putem organizacije prostora određuju ili redefinišu njegove granice i one koji kroz vizuelni tretman omogućavaju perceptivni doživljaj njegovog proširenja.
Za razliku od arhitekata iz perioda moderne, koje su stambene prostore organizovali pretežno na osnovama jednog principa, savremeni arhitekti se oslanjaju na njihovu višestrukost. Alfirević i Simonović-Alfirević zaključuju da su najučestalije kombinacije u savremenoj praksi preklapanje otvorenog plana i kružne veze, otvorenog plana i fleksibilnost, te kružne veze i fleksibilnosti. Kombinacija ovih principa pruža mogućnost dostizanja kvaliteta polivalentnosti na način nebrojene primene sa različitim ishodima.
Iskustva iz Srbije
Kako je Srbija zemlja jeftine radne snage, kreativnost nije najpoželjniji modus postojanja. Kako dominantno nismo društvo znanja i inovacija, to se najdirektnije ogleda u organizaciji stanova u novogradnji.
Stanovi u novogradnji nisu skrojeni po meri kreativne klase. Princip složenosti i otvorenosti prostora svedeni su na nivo integracije aktivnosti u dnevnoj zoni na relaciji dnevna soba, trpezarija i kuhinja, pri čemu dolazi do dimenzionalne atrofije svake od njih. Dnevna i noćna zona razdvojene su do granice potpune isključivosti, a integracija rada i stanovanja izoluje se kao opcija. Kružna komunikacija ili fleksibilnost prostora nema ni u naznakama, dok je princip polivalentnosti misaona imenica. Hertcbergerovim rečima, novogradnja u Srbiji zapravo je nasilje.
Kružna komunikacija ili fleksibilnost prostora u novogradnjama nema ni u naznakama, dok je princip polivalentnosti misaona imenica.
S druge strane, u Srbiji je moguće prepoznati nekoliko emancipatorskih praksi koji se odupiru nedostatku smisla i značenja. Upravo kroz koncepciju polivalentnog stambenog prostora ove arhitektonske prakse teže kreiranju odgovarajućeg stambenog okvira za razvoj kreativne ekonomije.
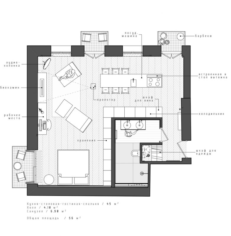
Arhitektura Buđevac kroz projekte Lemon Tree Apartment i Gray Scale Apartment u Nišu kvalitet polivalentnosti realizuje kroz otvorenost plana, složenost sadržaja i kružnu komunikaciju. Iako je materijalnost prostora u oba slučaja na granici minimuma izražajnih sredstava, složenost prostorne organizacije i sadržaja maksimalno su naglašeni, naročito integracija rada i stanovanja.




Arhitektice Teodora Del Canto Stamenković, Milica Lambrin i Aleksandra Praštalo polivalentnost u Stanu sa pogledom na Beograd realizuju kroz otvorenost plana, prostornu fleksibilnost i stepenovanje prostora na liniji privatnosti sadržaja. Udvajanje rada i stanovanja takođe je prisutno.


U projektu Enterijera garsonjere sa zidnim krevetom arhitektica Sonja Brstina polivalentnost realizuje kroz otvorenost plana, prostornu složenost i prostornu fleksibilnost. Dnevna, radna i noćna zona koegzistiraju u istom prostoru, a pomoću sistema rasklopivog kreveta. Iako skroman po dimenzijama, kroz nekoliko gestova ovaj stan dobio je vrednost upotrebne polivalentnosti. Čak je i udvajanje rada i stanovanja našlo svoj kutak.


Polivalentan ili nepolivalentan stambeni prostor?
Svaka epoha razvija se kroz smenu progresivnih i konzervativnih nastojanja. Preovlađujući oblik individualne proizvodnje i potrošnje na opredeljujući način određuje naš životni stil, a posledično organizaciju i materijalizaciju stambenog prostora koji nastanjujemo. Pitanje koje se nameće jeste kako dihotomija ekonomija-dom predodređuje naše stambene preferencije, te konflikte koji nastaju između arhitekata i klijenata?
Po prirodi svog poziva i profesije, arhitekte-projektanti, a naročito arhitekte-autori imaju izrazito razvijenu otvorenost za ideje i nova iskustva. To je u njihovoj suštini. Arhitekte su stvaraoci-inženjeri, skloni eksperimentisanju i istraživanju. Uživaju u umetnosti, zastupaju slobodarske ideje. Zalažu se za uspostavljanje otvorenog plana, fleksibilnosti prostora, kružne komunikacije i njihovih derivata. Preferiraju polivalentne i promenljive prostore koje omogućavaju spontanost i neočekivanost.

Klijenti mogu i ne moraju biti kreativni, odnosno otvoreni za ideje i nova iskustva. Advokati, računovođe i bankari, po prirodi svog poziva i profesije najčešće se oslanjaju na ustaljene obrasce, raspoloživa saznanja i poznate presedane. Višak društvenog proizvoda ostvaruje kroz skalabilnu primenu dobro oprobanih mustri koje sa sigurnošću dovode do pozitivnih rezultata. Teže ka unilateralnim, ustaljenim i dobro oprobanim organizacionim šemama koje podstiču pouzdanost, kontrolu i sigurnost.
Ovu tvrdnju treba uzeti uslovno – kao jednu vrstu hipoteze. U vidu treba imati da su ekonomija i dom usko povezani. Arhitekte u radu sa klijentom mogu posvedočiti o posledicama sudara dijalektičkih i retoričkih, kreativnih i nekreativnih svetova. Umesto rasprave koja vodi jedino do još većih raskola, neophodno je suštinski razumeti ljudsku prirodu. Na osnovama karakternih crta klijenata i korisnika prostora potrebno je prepoznati i primeniti poželjne obrasce materijalizacije i organizacije. Svaka stambena preferencija teži svom idealnom stambenom obliku, bio on savremen, kreativan ili ne.
Literatura:
- Alfirević, Đ. i Simonović-Alfirević, S. (2019). „Projektantski principi za postizanje prostornosti u stambenom prostoru“. Arhitektura i Urbanizam, br. 48, str. 37-53.
- Frempton, K. (2004). Moderna arhitektura – Kritička istorija. Beograd: Orion Art.
- Nikezić, A. (2018). Formati za urbani život – Porodična kuća u savremenom gradu. Beograd: Arhitektonski fakultet.
Kad ste već ovde…


