Ova zgrada je tako osmišljenja da najveći broj stanova ima pogled na crkvu Svetog Antuna
Domaći projekti

Zgrada u Dravskoj na Vračaru koja poštuje istorijsko nasleđe

Oblikovanje ovog objekta u novogradnji proizašlo je iz činjenice da se nalazi preko puta crkve Svetog Antuna. Upravo iz tog razloga, arhitekte su se opredelile za dekorativnu opeku na fasadi.

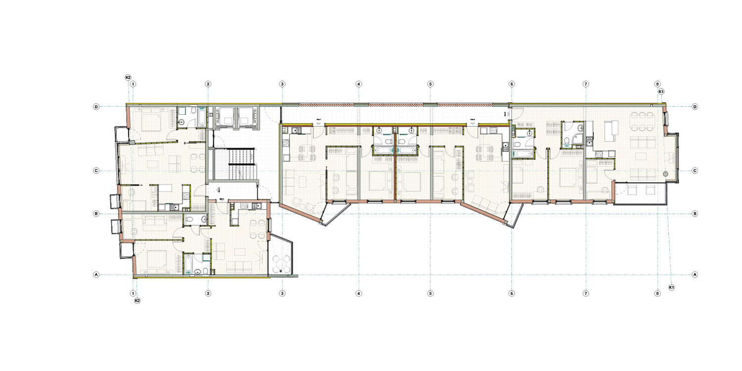
Prodaja stanova na Vračaru, zbog svoje ekskluzivnosti, privlači pažnju investitora, arhitekata i kupaca. Kako se novoprojektovani objekat nalazi u neposrednoj blizini zdanja čuvenog Jože Plečnika, oblikovan je u obliku latiničnog slova „L“. Na ovaj način je omogućeno da se dnevne sobe četiri od pet stanova tipske etaže orijentišu ka crkvi Svetog Antuna.

ABM Art Property gradiće u Dravskoj ulici stambeno-poslovni objekat (3Po+P+6+Ps) sa 32 stana, pet lokala i tri podzemne etaže. Struktura stanova je raznovrsna, pa se njihova površina kreće u rasponu od 59 do 168 metara kvadratnih.

Svojom materijalizacijom zgrada se uklapa u istorijski kontekst

Pristup iz Dravske ulice

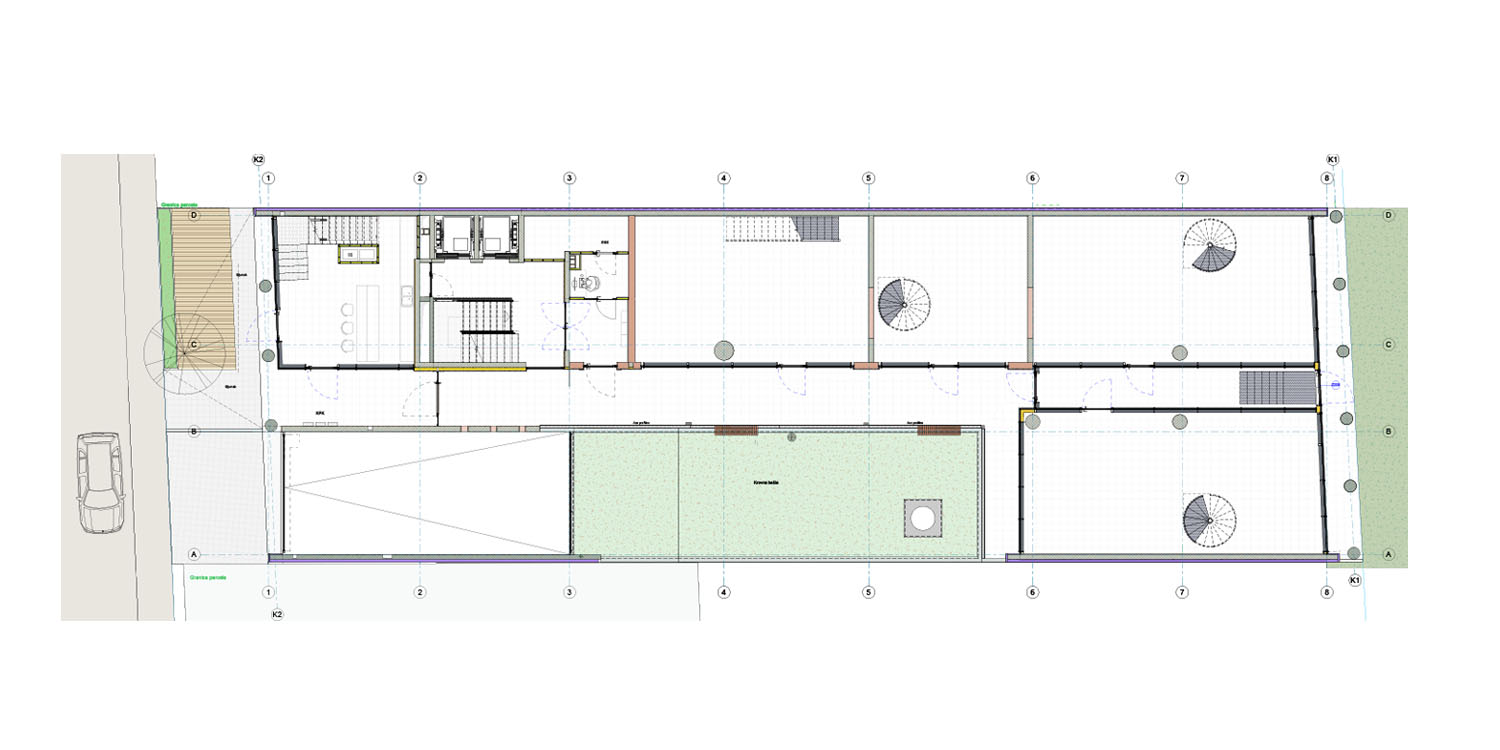
Stanovima, poslovnom prostoru i garažama se pristupa iz Dravske ulice. U neograđenom prostoru između regulacione i građevinske linije planirana su kolsko-pešačka komunikacija i zelena površina.

Garaža ima 36 parking mesta, od kojih su 14 na uređajima za parkiranje. Predviđena je instalacija lift sistema za nezavisno parkiranje, dok su u podzemnim etažama smeštene stanarske ostave i tehničke prostorije.

Stepenište je prirodno osvetljeno preko prozora na svakoj nadzemnoj etaži, a ima i lanternu za izlazak na krov. Predviđena je mogućnost odvajanja hodnika sa ulazima u stanove vratima s interfonskom instalacijom. Projektovana su dva lifta od 630kg, sa kabinama koje zadovoljavaju uslove pristupačnosti osobama sa posebnim potrebama.

Izgled unutrašnjeg dvorišta

U ponudi su 32 stana površine od 59 do 168 metara kvadratnih. Garaža ima 36 parking mesta.

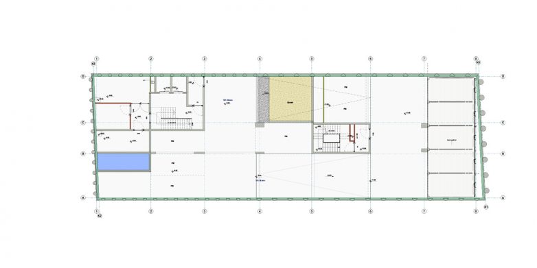
Osnova tipične etaže

Materijalizacija objekta

Konstrukcija objekta je armiranobetonska, sa kalkanskim zidovima, stepenišnim jezgrom i stubovima oslonjenim na masivnu AB temeljnu ploču debljine 60cm. Šipovi i AB konstrukcija temeljne jame iskorišćeni su kao podzemna konstrukcija objekta.

Konstrukcija galerije poslovnog prostora je projektovana pretežno kao čelična, od valjanih nosača, sa ispunom od TR lima, preko koga se postavlja zvučna izolacija i suvi estrih. Na taj način se veličina i oblik galerije, kao i pozicija stepenica mogu prilagoditi potrebama budućeg korisnika.

Fasadni zidovi su od Porotherm blokova ispunjenih mineralnom vunom i obloženih pločicama od opeke ili SiSi završnom fasadnom oblogom preko armirajućeg sloja. Na kalkanskim zidovima planirana je ETICS fasada sa mineralnom vunom, odnosno profilisanim Simprolit pločama u nivou prizemlja.

Reprezentativni ulaz u zgradu

Projektovane su krovne bašte sa odgovarajućim izolacionim i drenažnim slojevima.

Krovni pokrivač je UV hidroizolacioni premaz preko lakog termobetona za pad. Isti premaz je planiran i kao hidroizolacija terasa. U nivou prizemlja, prvog sprata i povučenog sprata, projektovane su krovne bašte sa odgovarajućim izolacionim i drenažnim slojevima.

Krovne bašte delimično su podaščane dekingom i natkrivene pergolama od ariša, oslonjene na Fe kružne stubove i  konstrukciju obodnih zidova bašti obloženih četkanim daskama (20mm) od ariša. Drvo je zaštićeno lazurnim premazima. Do krovnih bašta vode čelične, pocinkovane, epoksidnom bojom zaštićene, spiralne stepenice sa rešetkastim gazištima.

Stanovi od 98 m2 imaju najbolji pogled na crkvu

Energetski razred C

Unutrašnji zidovi su kombinacija zidova od opeke, suvomontažnih zidova i obloga od gipskartonskih ploča.

Prozori su od plastificiranih aluminijumskih profila s termoprekidom u sistemu, opremljeni različitim sistemima spoljne zaštite od sunca. Na povučenom spratu, kao zaštita od sunca i privatnosti, projektovane su spoljne AL vetrostabilne žaluzine, sa elektromotornim pogonom i podešavanjem nagiba lamela.

Svi elementi omotača zgrade ispunjavaju važeće zahteve iz Pravilnika o energetskoj efikasnosti zgrada. Zgrada kao celina pripada razredu C, ali će se zbog odvojenog sistema grejanja i različite namene prostora uraditi posebni energetski pasoši za stambeni i poslovni deo zgrade.

Presek kroz zgradu ukazuje na svu složenost ovog projekta

Vrata, zidovi i plafoni

Ulazna vrata su sigurnosna, protivprovalne otpornosti klase 4, zvučne otpornosti klase 1 (30-34db), i protivpožarne otpornosti F30. Izrađena su od čeličnih kutija obloženih limom debljine 2mm i završnom oblogom krila i pervajza od vodootpornog furniranog medijapana. Furnir je bajcovan u boju Fundermax Barrique Oak i lakiran vodenim mat lakom.

Unutrašnja vrata u stanovima se sastoje od štelujućeg štoka, ravnih pervajz lajsni širine 80mm i ravno rezanog vratnog krila sa ispunom od perforirane iverice, prilagođenog za prolazne brodske šarke. Vrata su obložena dekorativnom zaštitnom folijom, otpornom na UV, grebanje i habanje, mikroorganizme, parazite, vlagu i buđ.

Zbog bolje termičke i zvučne izolacije, plutafasom se malterišu zidovi prema stepeništu i zidovi između stanova.

Sve površine zidova iznad prizemlja se malterišu gipsanim malterom, osim zidova kupatila koja se malterišu krečno cementnim malterom. Zbog bolje termičke i zvučne izolacije plutafasom se malterišu zidovi prema stepeništu, zidovi između stanova, kao i kalkanski zidovi koji su obloženi simprolit pločama sa spoljašnje strane.

Malterisane površine i plafoni se boje disperzionom bojom, a u kupatilima i kuhinjama oblažu keramičkim pločicama. Suvomontažni zidovi se, pre polaganja pločica, premazuju odgovarajućim temeljnim premazima ili i hidroizolacionim premazima.

Plafoni od gipskartonskih ploča na potkonstrukciji omogućavaju nesmetan razvod elektroinstalacija, a u velikim stanovima i razvod vazdušnih kanala kanalskih klima uređaja.

Fasadni zidovi su od Porotherm blokova ispunjenih mineralnom vunom

Granitna keramika i prirodni kamen

Podovi stambeno-poslovnog dela objekta postavljaju se preko cementne košuljice izlivene kao plivajući pod, preko PE folije sa zaptivenim spojnicama, koja štiti zvučnu izolaciju od tvrdo presovane mineralne vune (Knauf Natur Board pod standard) i obodne zvučno izolacione penaste trake (Roefix). Za spravljanje cementne košuljice planirano je normalno vezujuće brzosušeće (4 dana) hidrauličko vezivo Mapei Topcem.

Zajednički unutrašnji komunikacioni prostori popločani su granitnom keramikom boje natur betona, protivklizne klase R10. Stepenici i podesti su od kamena Visočica Antico debljine 3cm. U stambenim prostorijama je projektovan parket sa obodnom soklom, a u lokalima i kupatilima granitna keramika.

Svi podovi u stanovi imaju zvučnu izolaciju od tvrdo presovane mineralne vune

Faktografija:

naziv objekta: Stambeno-poslovni objekat u Dravskoj 6
mesto: Beograd, Vračar
investitor: ABM Art Property
autori projekta: Studio Gedeon
godina projektovanja: 2019-2020.
godina izgradnje: 2020-2021.
bruto površina: 6.224 (nadzemno bruto 4.320, podzemno bruto 1.904)
spratnost:
3 Po + P + 6 + Ps
broj stanova: 32
broj parking mesta: 36
renderi: Đuro Zmajević
izvođači: Trio-Gradnja

Grafički prilozi:

Osnova etaža -3
Osnova etaža -3
Osnova prizemlja
Osnova prizemlja
Osnova tipične etaže
Osnova tipične etaže

3D modeli stanova:

Kada sta već ovde…

Postani deo Gradnja zajednice

Najnovije vesti s našeg portala svakog petka u vašem sandučetu.

Dizajn enterijera

Srodni tekstovi

2 komentara

  1. Arhi bgd

    Kakav crni kontekst… kontekst ovog kraja sa jednosmernim uličicama su bile prizemne i jednospratne porodične kuće sa baštama i dosta zelenila. Jaka stvar da li se ponavlja opeka crkve u ulici pored… prodavanje magle, uz članak koji je čista reklama.

    1. Dragan Marković

      Zanimljivo zapažanje. Hvala vam na komentaru.

Ostavite odgovor

Obavezna polja *